«Wrighthouse» Glattpark, Opfikon

Kategorie
Städtebau
Wohnen
Mixed Use
Ort
Opfikon
Auftragsart
Studien
Projektierung
Ausführung
Jahr
2010–2014
Status
Gebautes
Glattpark anstadt
Der Glattpark wurde gleich in mehrfacher Hinsicht zum Neuland. Das «Wrighthouse» überzeugte eine Baugenossenschaft so, dass sie einen Teil davon als fertiges Wohnprojekt vom TU erwarb.

New Zurich findet statt. Stadtentwicklung auf Opfiker Boden, von der Gemeinde und Privaten angetrieben. Aktuell formiert sich in der einstigen Peripherie ein ganzer Stadtteil. Und zugleich ein Experimentierfeld für neuartige urbane Qualitäten, das die Vorzüge städtischer und ländlicher Lebenswelten vereint. Zumindest war dies der Anspruch von Züst Gübeli Gambetti, als sie mit «Wrighthouse» das städtische Modell des Blockrands neu interpretierten – um einen starken Ort zu schaffen.

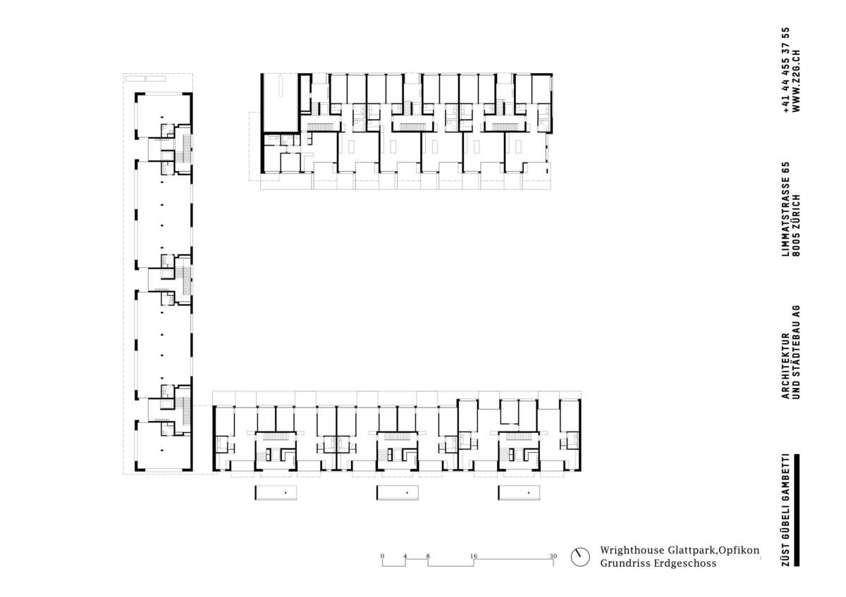
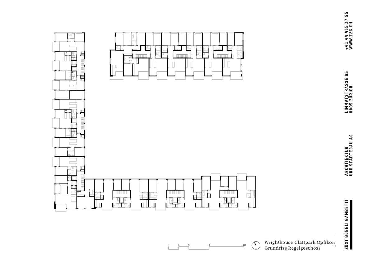
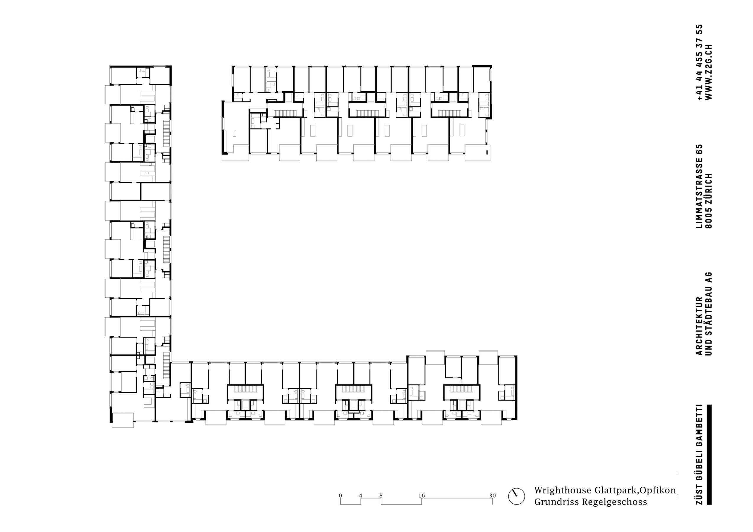
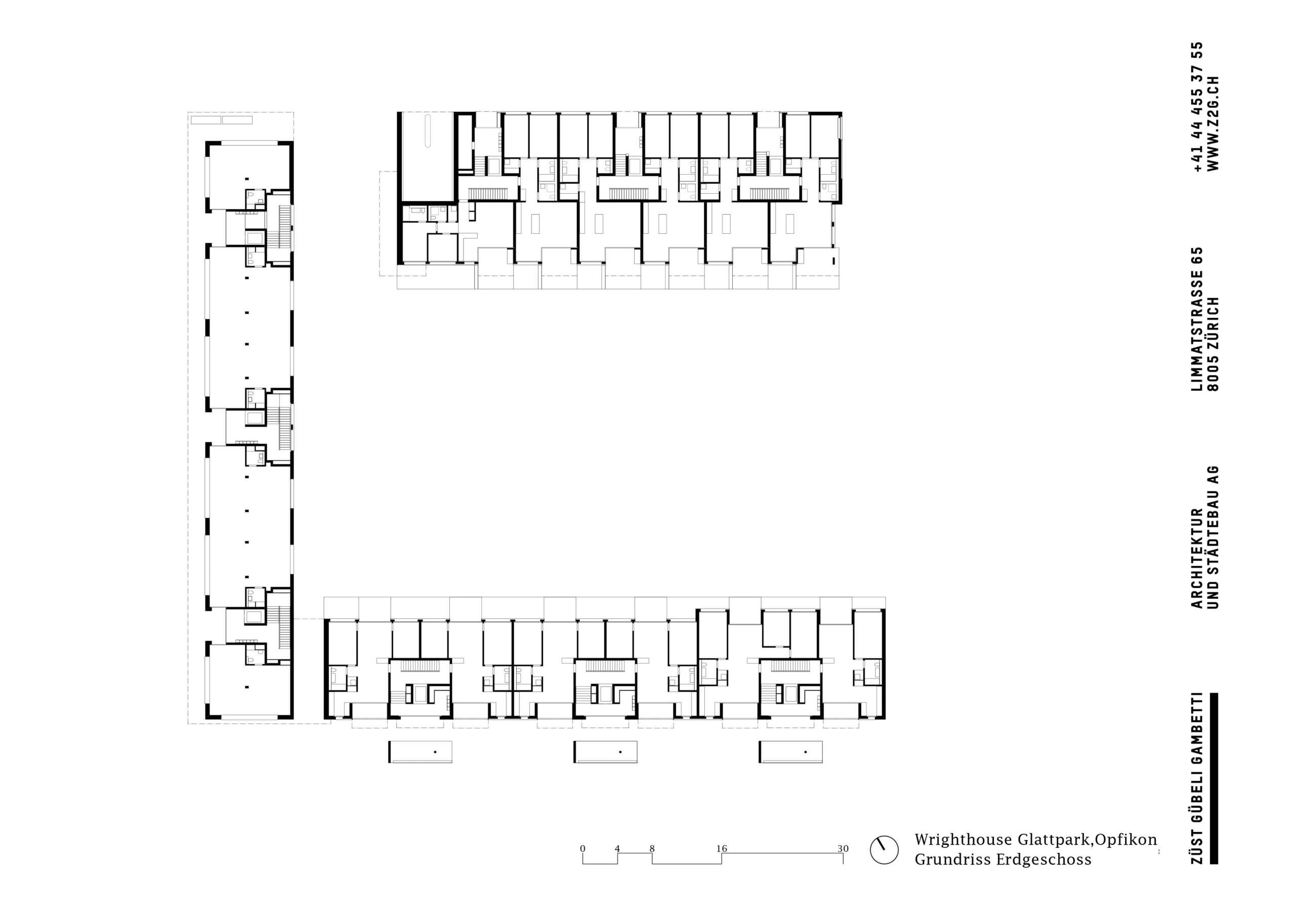
Baumasse und Höhenentwicklung der städtebaulichen Komposition markieren den Auftakt zum zentralen Boulevard Lilienthal. Die U-förmige Anlage fügt sich aus einem Längs- und Winkelbau. In ihrer Mitte fassen sie einen erhöhten Hof, der sich zum nahen Grün hin öffnet. Stadtseitig angenehm abgeschirmt, etabliert dieser intim gestaltete kollektive Binnenraum ein Kontrastprogramm zur Aussenwelt. Der Mix aus Gewerbe, Miet- und Eigentumswohnungen sorgt insgesamt für eine vitale Durchmischung. Und er erfüllt die Bedürfnisse einer urbanen Bewohnerschaft, die städtisches Flair mit Grünanschluss sucht.

Besondere Aufmerksamkeit erfuhr deshalb auch das Erdgeschoss. Entlang des Boulevards ermöglicht der rückspringende Sockel mit seiner Überhöhe vielfältige Nutzungen und beschirmtes Flanieren. Die Seiten antworten mit Hochparterrewohnungen und vermittelnden Übergängen zwischen Privat und Öffentlich. Räumliche Qualitäten und Wohnungsspiegel weckten deshalb auch das Interesse einer lokalen Baugenossenschaft. Mit dem Winkelbau erwarben sie entgegen ihrer Maxime ein fertiges Projekt, um sich neue Mietersegmente zu erschliessen. (mc)

Daten
Bauherrschaft
Implenia Development AG, BGZ Baugenossenschaft Glattal Zürich
Auftragsart
Studien, Direktauftrag, Neubau
Planungsdauer
04/2010-04/2014
Fertigstellung
11/2014
Adresse
Genossenschaftswohnungen: Boulevard Lilienthal 61-65 / Glattparkstrasse 31-35, 8152 Opfikon Stockwerkeigentum: Wright-Strasse 32-36, 8152 Opfikon
Nutzungen
Wohnen, Gewerbe, Einstellhalle
Grundstücksfläche
6'842 m2
Geschossfläche
21'200 m2
Bauvolumen
69'751 m2
Wohnungen
81 Mietwohnungen | 41 Eigentumswohnungen
Gewerbe
449 m2
Baumanagement
Implenia Schweiz AG
Generalunternehmer
Implenia Schweiz AG
Landschaft
Hager Partner AG
Statik
Henauer Gugler AG
Bauphysik
Kopitsis Bauphysik
Elektro
Meyer + Partner AG
HLKS
Getec Zürich AG
Farbkonzept
Thomas Rutherfoord
Fotografie
Roger Frei
0260