Wohn- und Gewerbeensemble «COSMOS», Dübendorf

Kategorie
Städtebau
Wohnen
Arbeiten
Mixed Use
1. Rang
Ort
Dübendorf
Auftragsart
Studienauftrag 1. Rang
Generalplanung
Projektierung
Ausführung
Jahr
2018—2024
Status
Gebautes
Richtig angedichtet
Ein neues Ensemble will Dübendorfs Stadtumbau unterstützen. Beim Entwurf lag das Augenmerk weniger auf der überbauten Fläche als auf dem benachbarten Park – und der Idee der Suffizienz.

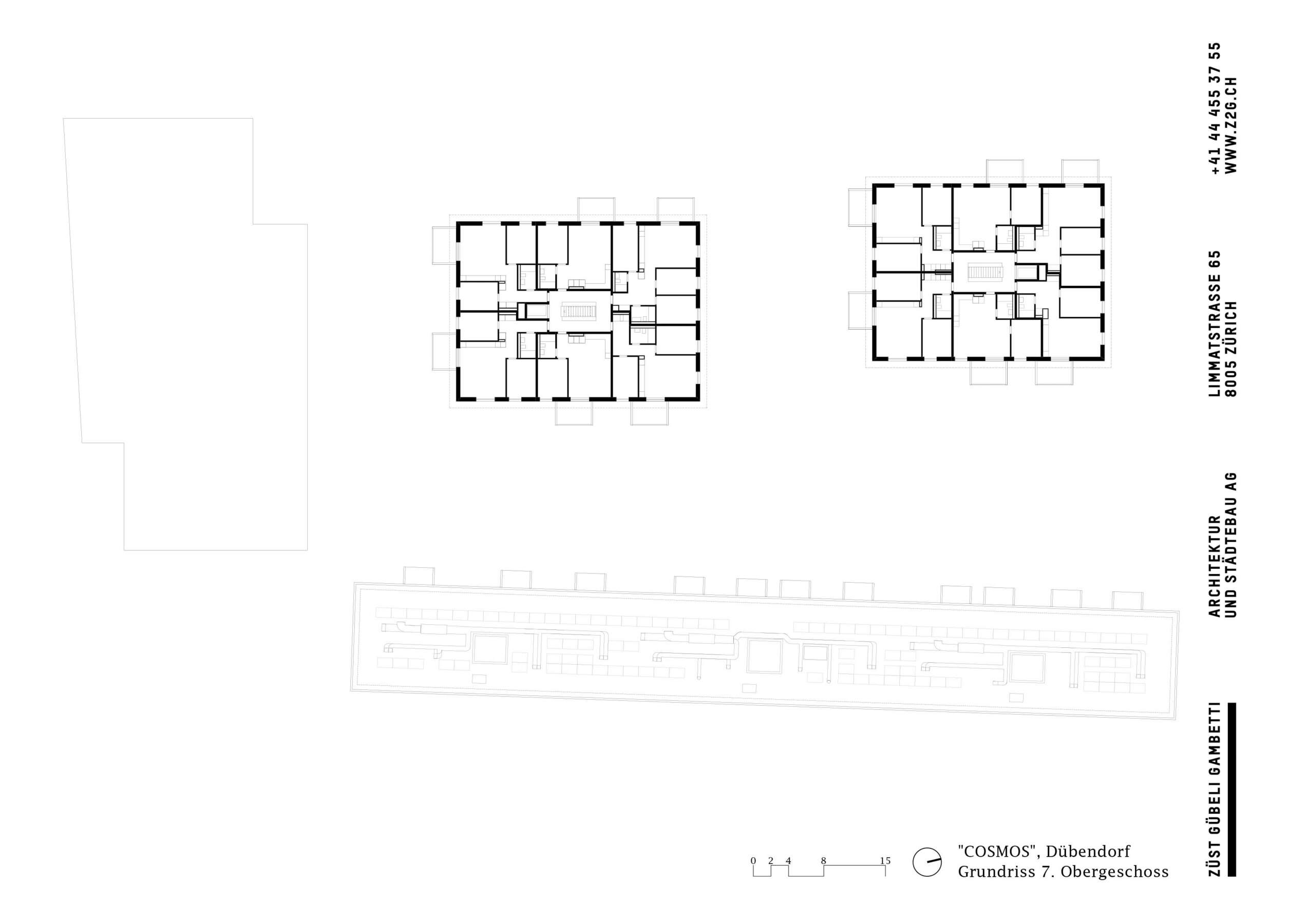
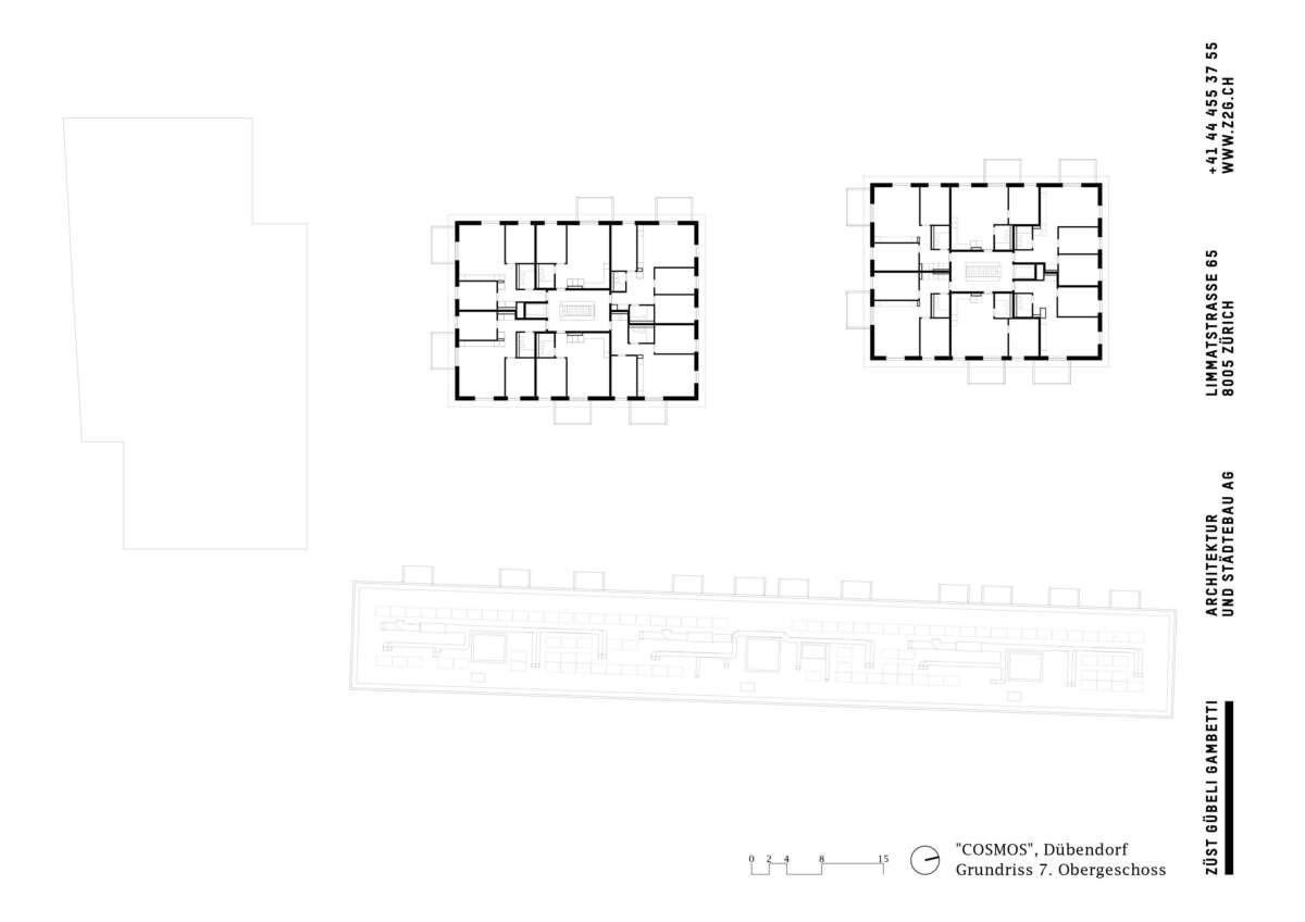
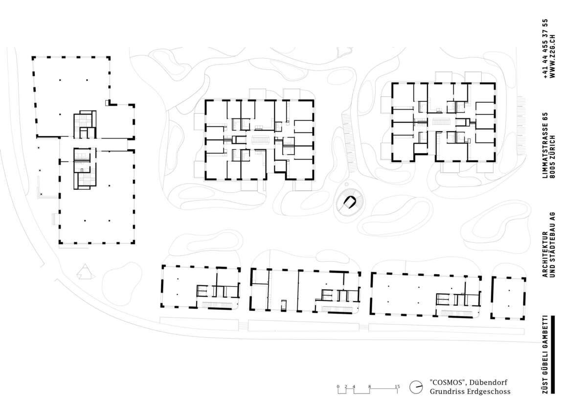
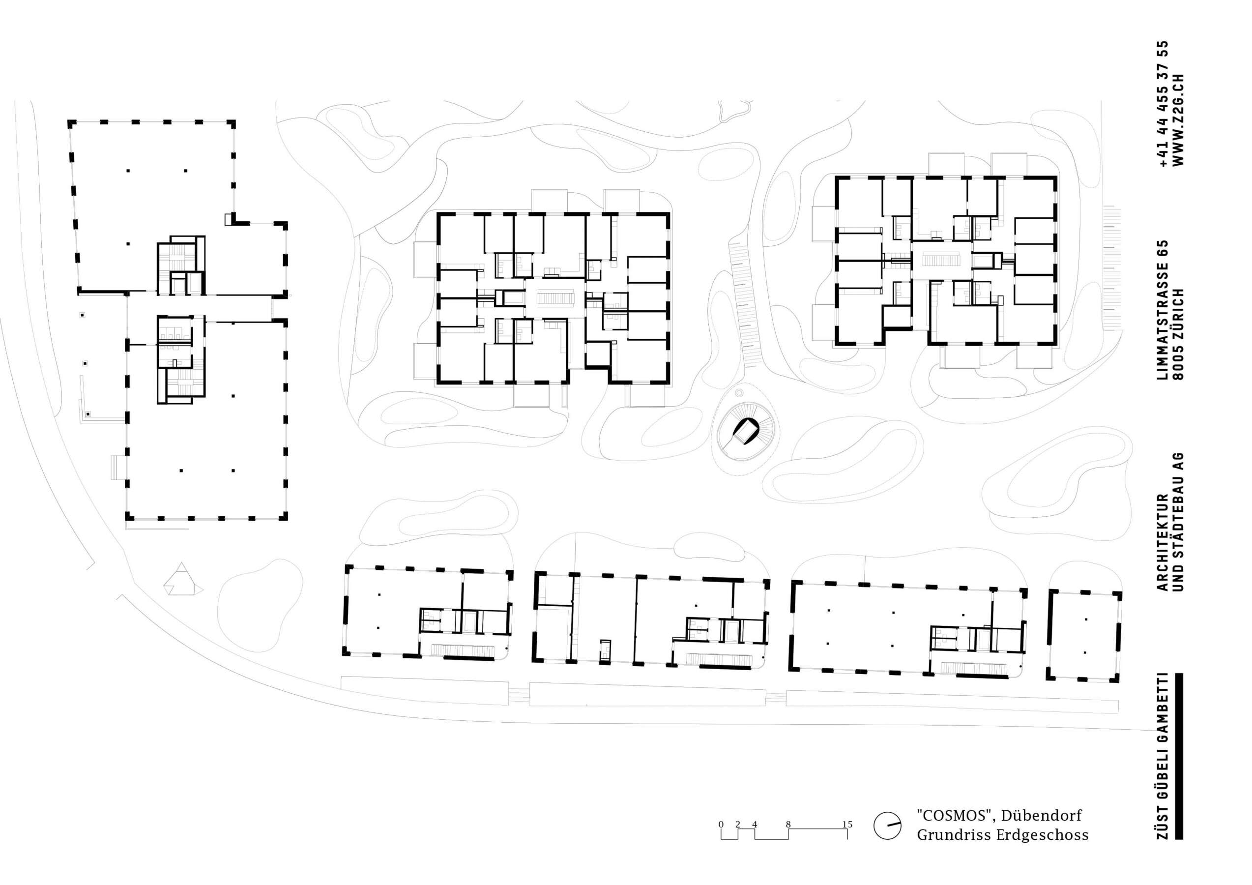
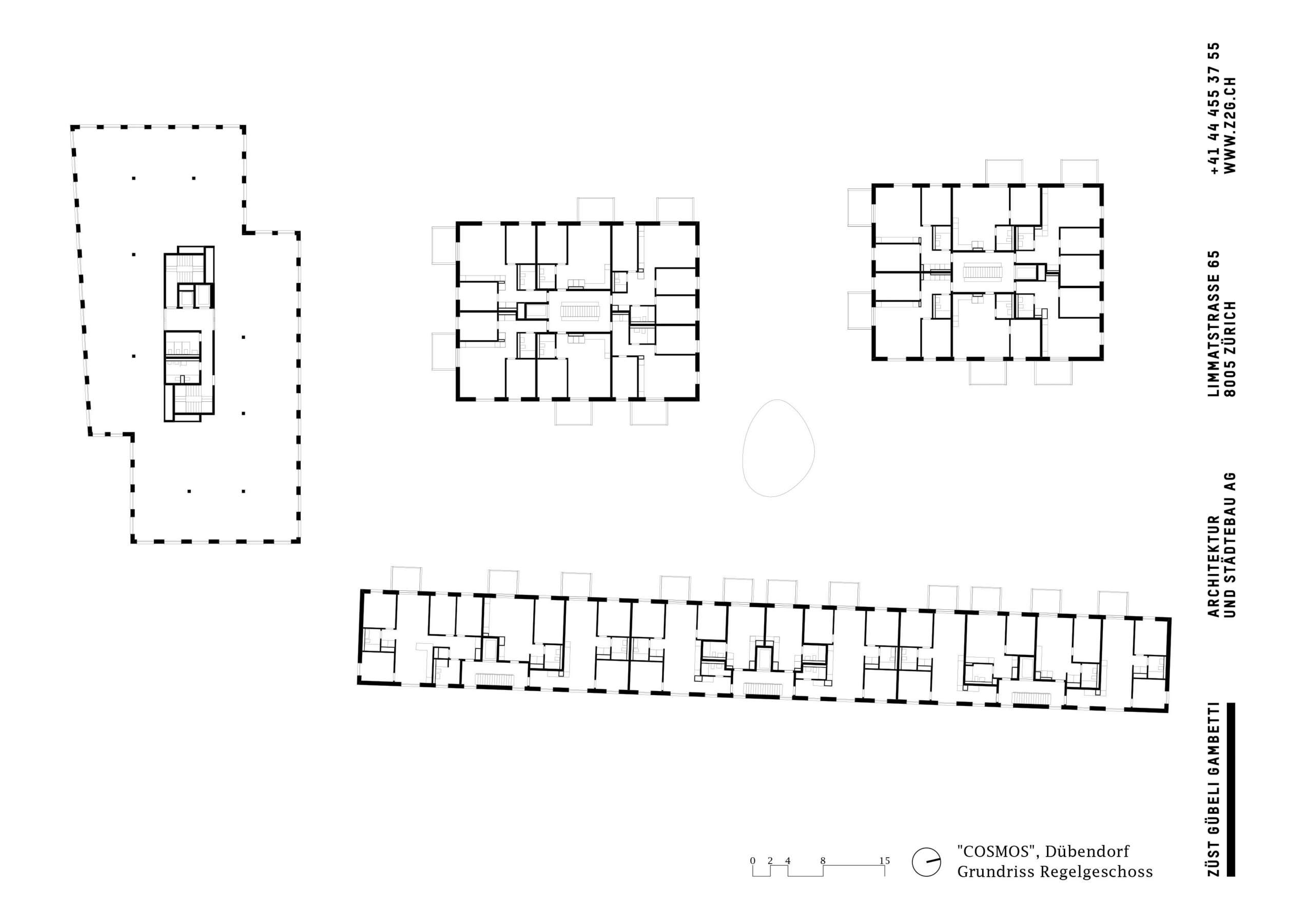
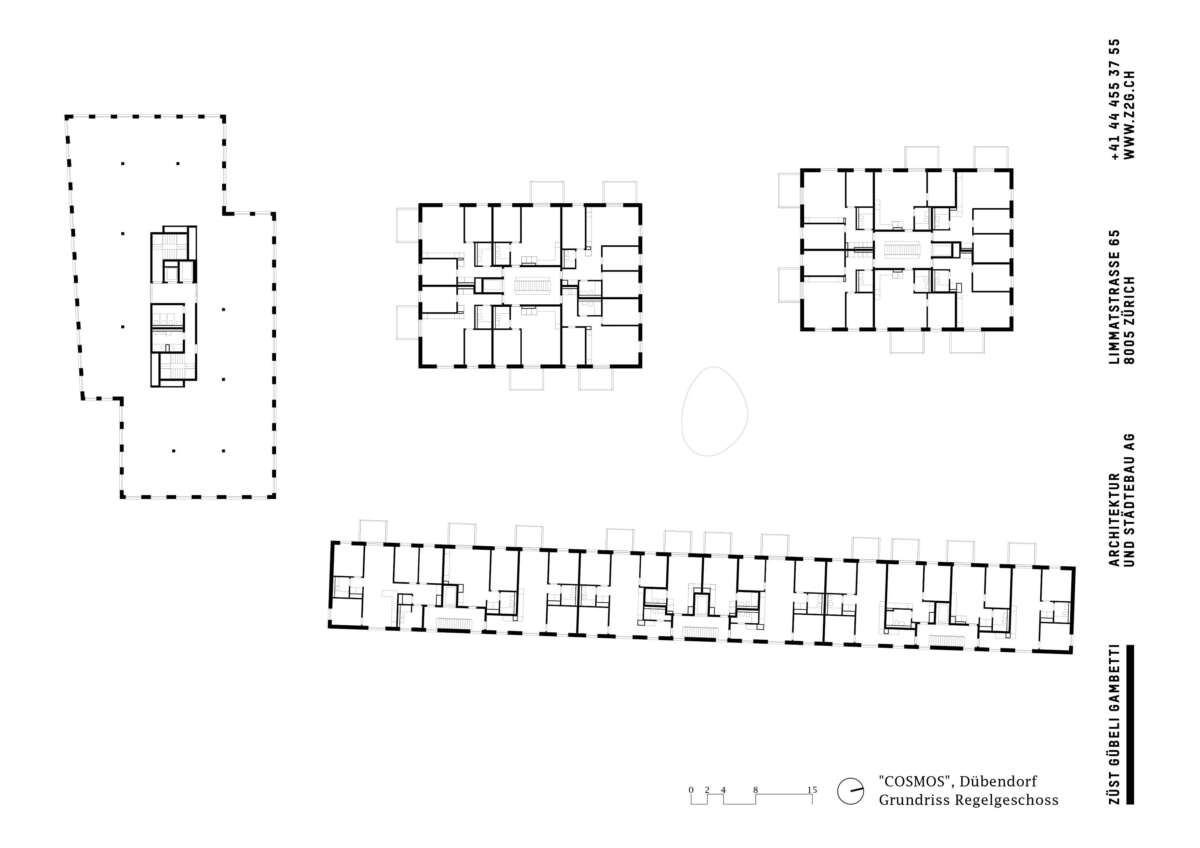
Das Hochbord-Quartier an Zürichs Stadtrand will sich zum vielfältigen Zentrum mausern. Mit dem COSMOS ist in prominenter Ecklage ein Ensemble aus Wohnen und Arbeiten entstanden, das im Südwesten das Einfallstor markiert. Dabei bot der direkt angrenzende Park eine einmalige Lagegunst, an die die Bebauung anknüpft. Inmitten inselhafter Investments und hochschiessender Solitäre sollte ein Ort entstehen, der das Boom-Quartier mit hochwertigem, bezahlbarem Wohnraum versorgt. Und zugleich belebende Impulse verschafft. So will die präzise Setzung vor allem eins: Verbindungen schaffen – zum Park, zwischen den Häusern und auch zum Kontext.

 

Das Ensemble umarmt eine sorgfältig zonierte Mitte. Nach Aussen zu den Hauptstrassen fungieren ein gewichtiger Kopf- und Riegel als Auftakt – oder rahmender Abschluss – des Arealgevierts. Ihre dezidierte Übereck-Öffnung spricht die Einladung aus, den Hof zu betreten. Überhaupt fehlt den Bauten an der Strasse trotz Lärmabwehr das Hermetische. In kleinteilige Gewerbe- und Kitaräume segmentiert sowie mit Durchgängen versehen, zielt die Porosität der Erdgeschosse auf Belebung. Zum Park lockert sich die Überbauung in zwei Punktbauten auf. Sie agieren als Einlenker ins Grün, wobei die Anordnung fast allen Wohnungen Parkblick offeriert.

 

Ob Wohnen oder Arbeiten, die Fassaden dominiert ein strenges Raster aus nur sechs Fenstertypen. Etagenweise versetzt, alternieren sie mit in den Hof ausgreifenden Balkon-Schubladen. Sie überspielen die innere Variabilität der 162 Wohnungen. Daraus spricht der Spagat zwischen Wirtschaftlich- und Nachhaltigkeit: Alles ist möglichst einfach gehalten, das Material dafür am richtigen Ort investiert. Der Betoneinsatz erfolgte in sorgfältiger Abwägung von Umweltbelastung und Leistungsfähigkeit wie Dauerhaftigkeit und Masse (Schallschutz!). Dies ermöglichte 18 cm starke Decken, was bei vertikal geführter Haustechnik die Planung verkomplizierte. Insgesamt entsteht so trotz stattlicher Masse der Eindruck eines geräumigen Ganzen, das mit dem städtischen Weichbild verschmilzt. (mc)

Daten
Bauherrschaft
Credit Suisse Asset Management (Schweiz) AG, Zürich
Auftragsart
Studienauftrag, 1. Preis, Neubau
Planungsdauer
06/2018-08/2023
Ausführung
09/2021-05/2024
Adresse
Zürichstrasse 98 / Sonnentalstrasse 9, 11 / Ringstrasse 26, 28, 30 / 8600 Dübendorf
Nutzungen
Wohnen, Gemeinschaftsraum, Gewerbe, Büro, Einstellhalle
Grundstück m2
9'810 m2
Geschoss m2
22'168 m2 (o.i.) | 8'406 m2 (u.i.)
Wohnungen
162 Mietwohnungen
Gewerbe
6‘740 m2
Nachhaltigkeit
SNBS Silber / Minergie nicht zertifiziert
Generalplanung
Züst Gübeli Gambetti Generalplanung AG
Bauherrenvertretung
Brandenberger+Ruosch AG
Totalunternehmer
HRS Real Estate AG
Baumanagement
HRS Real Estate AG
Landschaft
Noa Landschaftsarchitektur
Statik
Urech Bärtschi Maurer AG
Bauphysik
Kopitsis Bauphysik AG
Elektro
Hefti Hess Martignoni St. Gallen AG
HLKS
Hefti Hess Martignoni St. Gallen AG
Brandschutz
Hefti Hess Martignoni Aarau AG
Fassade
GKP Fassadentechnik AG
Verkehr
TEAMverkehr.zug AG
Beleuchtung
Gottschalk Ash International Design Consultants
Kunst am Bau
Claudia Comte
Fotografie
Roger Frei / René Dürr
4110