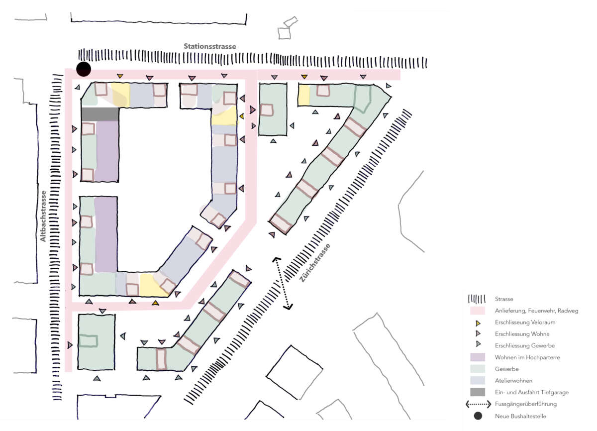
Wohn- und Geschäftsüberbauung ERNI-Areal, Wangen-Brüttisellen

Kategorie
Städtebau
Ort
Wangen-Brüttisellen
Auftragsart
Studienauftrag
Jahr
2022
Status
Wettbewerb