Ersatzneubau Löwenstrasse, Zürich

Kategorie
Wohnen
Arbeiten
Mixed Use
1. Rang
Ort
Zürich
Auftragsart
Studienauftrag 1. Rang
Projektierung
Ausführung
Jahr
2012—2014
Status
Gebautes
Beziehungsreicher Rahmen
Ornamentales Gitterwerk verleiht einem Ersatzneubau im Gründerzeit-Quartier eine zusätzliche ebenso spielerische wie sinnreiche Bedeutung. Dabei ist alles nur den Vorschriften geschuldet.

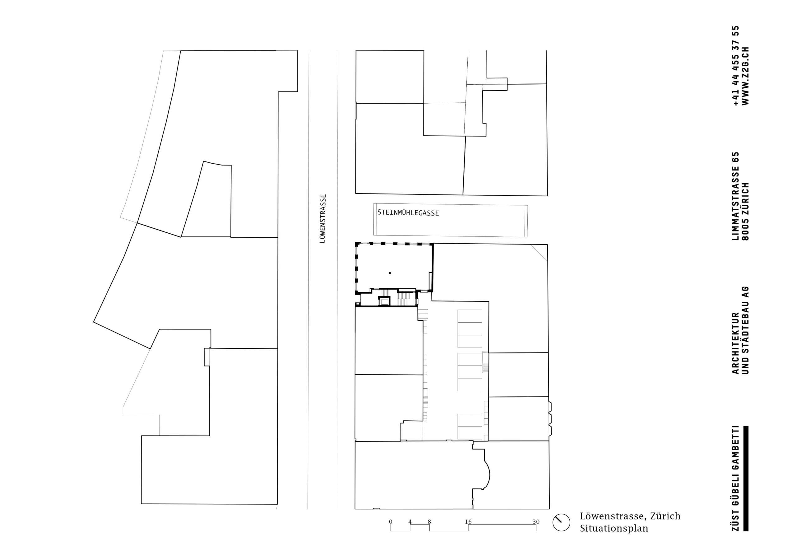
Ein Ort ist eine Erzählung, die sich nicht festschreiben lässt. Einen Ort gibt es nur im Moment – dann schreibt die Zeit seine Geschichte um. Umso mehr, wenn wie im vorliegenden Fall eine marode Bausubstanz im Herzen der Stadt einen Ersatzneubau notwendig macht. Züst Gübeli Gambetti hat sich eine maßgeschneiderte Lösung einfallen lassen, um für das kleine Grundstück in Ecklage den Nutz- und Gebrauchswert zu erhöhen. Und mittels einiger Variationen des Vorgefundenen vergangenen Zeiten Reverenz zu erweisen.

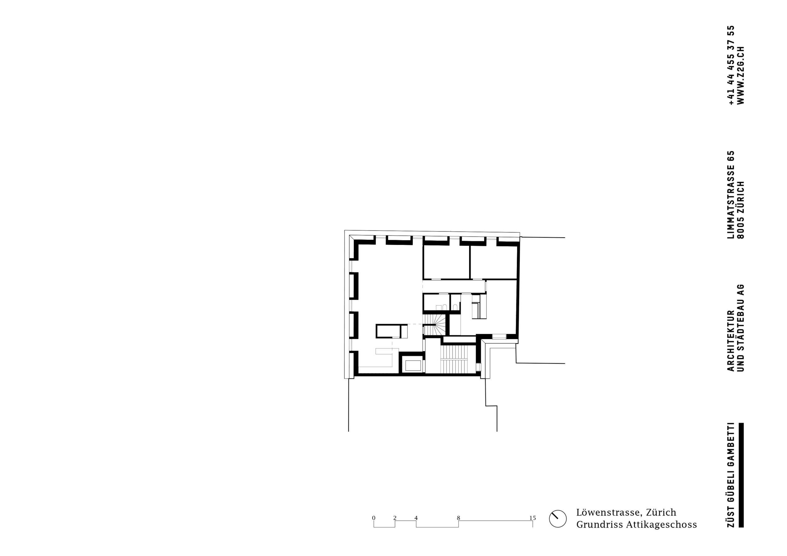
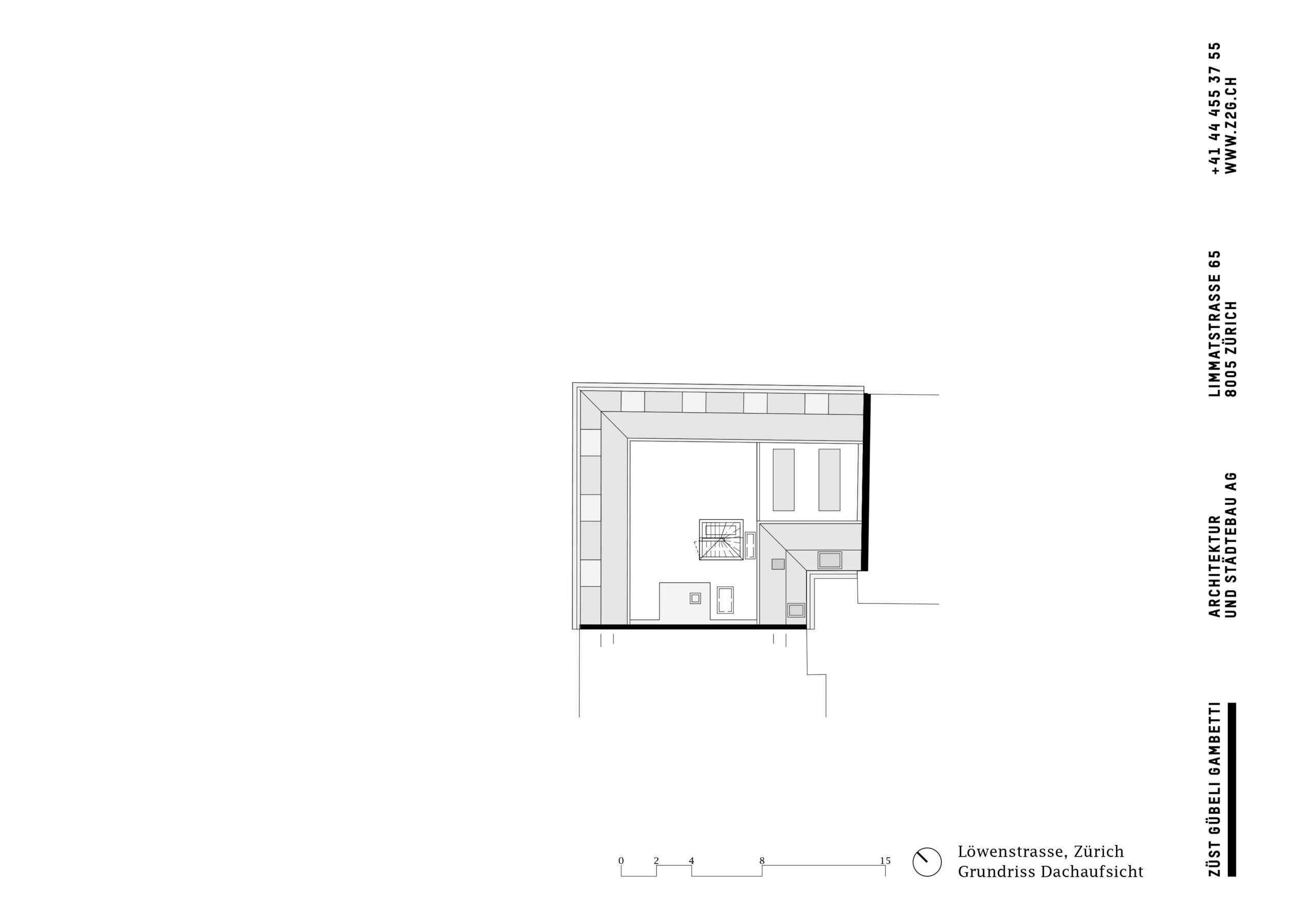
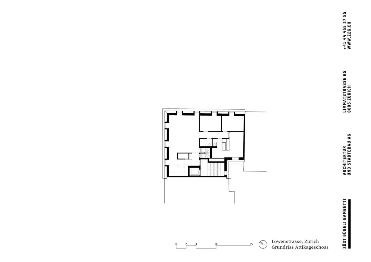
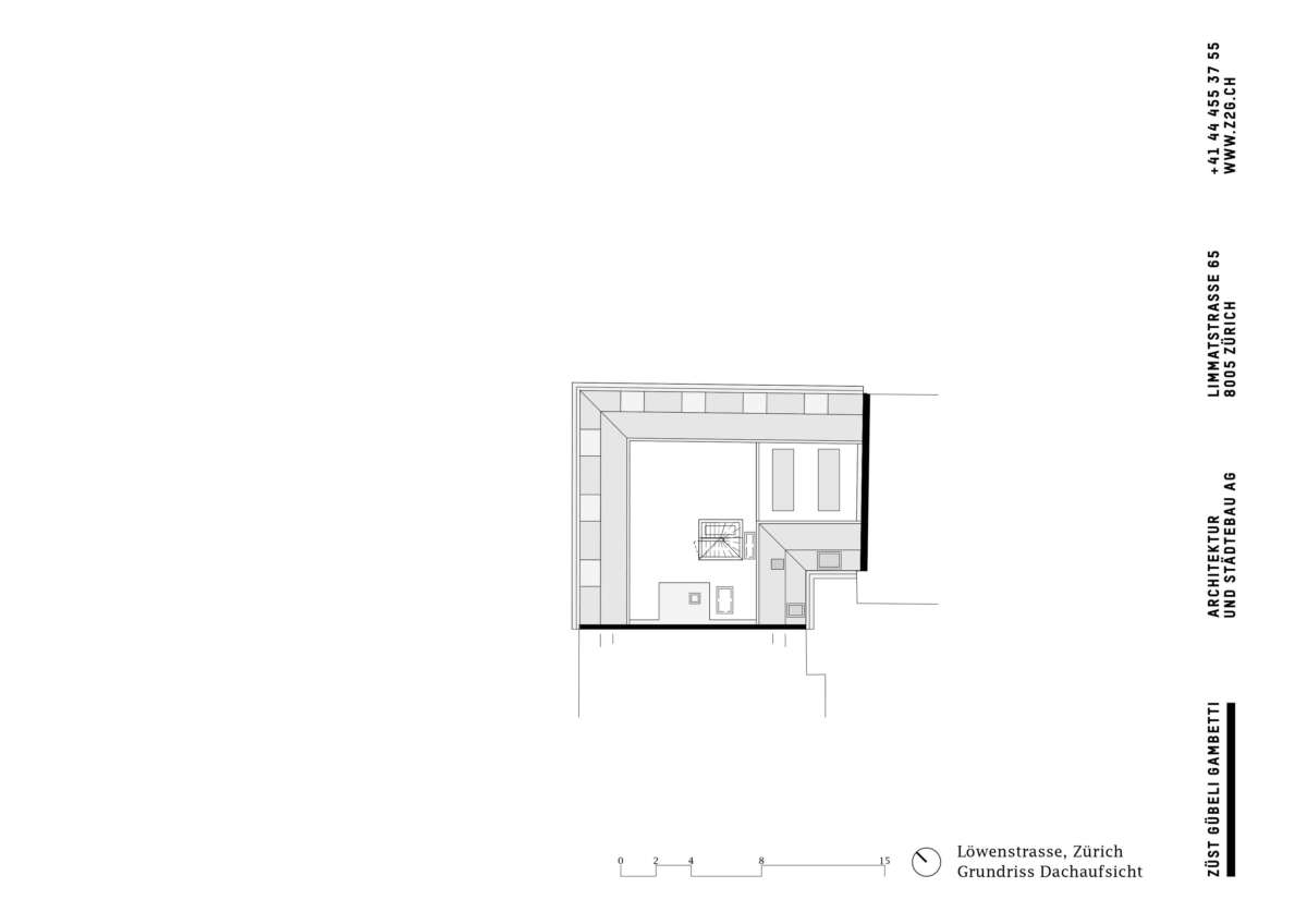
Das flüchtige Auge des Passanten nimmt die klassisch-solide Erscheinung einer stattlichen Stadtfassade wahr, die sich bestens in den Kontext repräsentativer Bauten reiht. Die Volumetrie des Stadtbausteins ergibt sich aus einer geschickten Auslegung baugesetzlicher Bestimmungen. Die Architekten realisierten neu ein steiles Mansardendach, was die Unterbringung eines hochwertigen Wohngeschosses mit eigener Dachzinne ermöglichte. Mit seiner klassischen Abfolge von Sockel, Mittelpartie und Dach und der umlaufenden Reihung stehender Fenster vermittelt der Bau einen Hauch revitalisierter Gründerzeit.

Der genaue Blick offenbart die Subtilität des baulichen Eingriffs. Ein ornamentales Gitterwerk, das jedes Fenster rahmt, bestimmt mit weiteren Details die feine Tonart der Fassade. Das schmückende Element hat einen höchst funktionalen Zweck: Es dient als Absturzsicherung der raumhohen Fenster und ist den Vorschriften geschuldet. Pate für das Motiv waren im Vorgängerbau vorgefundene Butzenscheiben. Ihr Abbild erscheint so in abstrahierter Form und heutiger, digitalisierter Herstellungstechnik. Ein Motiv, das in lustvoller Anpassung auch als Geländer im Hausinneren gute Dienste tut. (mc)

Daten
Bauherrschaft
PSP Properties AG
Auftragsart
Studienauftrag 1. Platz, Ersatzneubau
Planungsdauer
01/2012-05/2013
Fertigstellung
11/2014
Adresse
Löwenstrasse 16, 8001 Zürich
Nutzungen
Gewerbe, Büro, Wohnen
Grundstücksfläche
206 m2
Geschossfläche
1'024 m2 (o.i.) | 205 m2 (u.i.)
Bauvolumen
4'308 m3
Wohnungen
1 Mietwohnung
Gewerbe
Verkauf: 160 m2 | Lager & Technik: 205 m2 | Büro: 660 m2
Nachhaltigkeit
Minergie (nicht zertifiziert)
Baumanagement
Coneco AG
Statik
Urech Bärtschi Maurer AG
Bauphysik
Kopitsis Bauphysik AG
Elektro
Thomas Lüem Partner AG
HLKS
Meierhans und Partner AG
Fotografie
Valentin Jeck
1110