Wohn- und Geschäftshaus Bankstrasse, Uster

Kategorie
Mixed Use
Wohnen
Ort
Uster
Auftragsart
Ausführung
Projektierung
Studien
Jahr
2017–2025
Status
Gebautes
Um die Ecke gedacht
Dank eines neuen Wohn-und Geschäftshauses erfährt Usters öffentlicher Raum eine Aufwertung und Belebung. Kurzum, das Gebäude macht aus dem Bahnhofsbereich ein attraktives Stadt-Entrée.

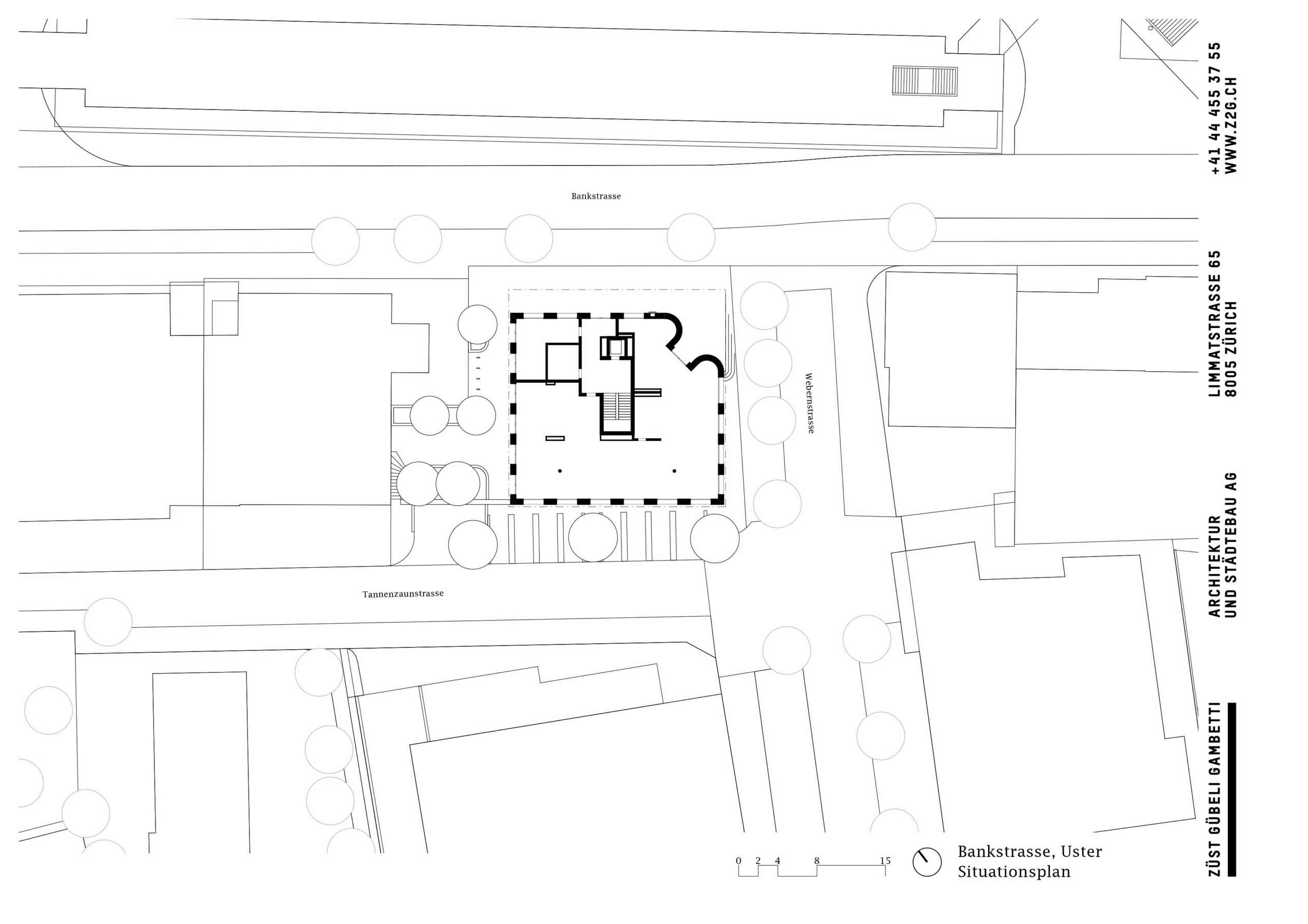
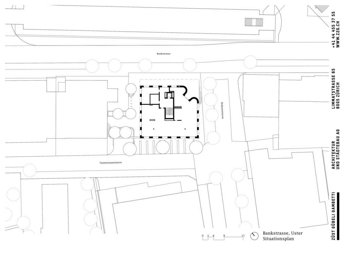
Aufbruchstimmung in Uster, die neue Skyline zeichnet das klare Bekenntnis zur Geschäfts- und Wohnstadt. Auch rund um den Bahnhof stehen diverse städtebauliche Projekte an. Nach mehreren Studien und wechselnder Bauherrschaft wurde Züst Gübeli Gambetti für einen Ersatzneubau direkt vis-à-vis mandatiert. Angrenzend an die Kernzone sowie eingereiht in eine Häuserzeile, entwickelten sie einen Solitär, der Durchlässigkeit und Mehrwert für die Öffentlichkeit schafft. Dabei werden auch Themen des Vorgängerbaus aufgegriffen.

Das neue Haus am Platz besetzt ebenso selbstbewusst wie freundlich die Strassenecke. Seine angenehme Präsenz hat mit der kraftvollen Wirkung – je nach Blickwinkel als lange Strassenfront oder Turm – und der dynamischen Rundung des Übereckeingangs zu tun. Letzterer lädt ein, das Erdgeschoss-Lokal zu betreten. Überhaupt erfährt der öffentliche Raum eine Aufwertung: Zum einen, weil die Stadt mit dem Gebäude ein attraktives Entrée erhält. Zum anderen, weil dank der hohen, eingezogenen Sockelpartie ein geschützter Ort entsteht, der die Grenze zum öffentlichen Raum aufweicht. Darüber hinaus profitiert der Stadtraum von einem neuen Platz zwischen Neubau und benachbarter Bibliothek.

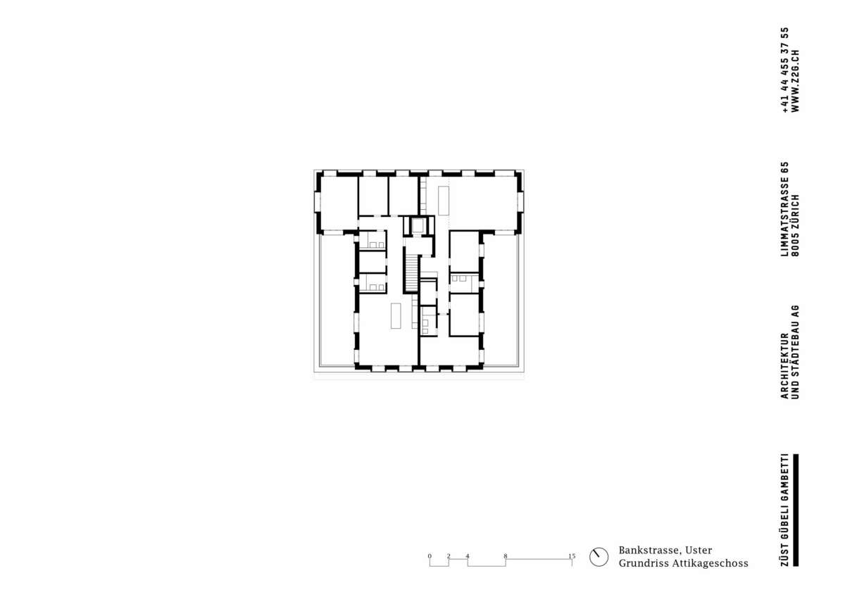
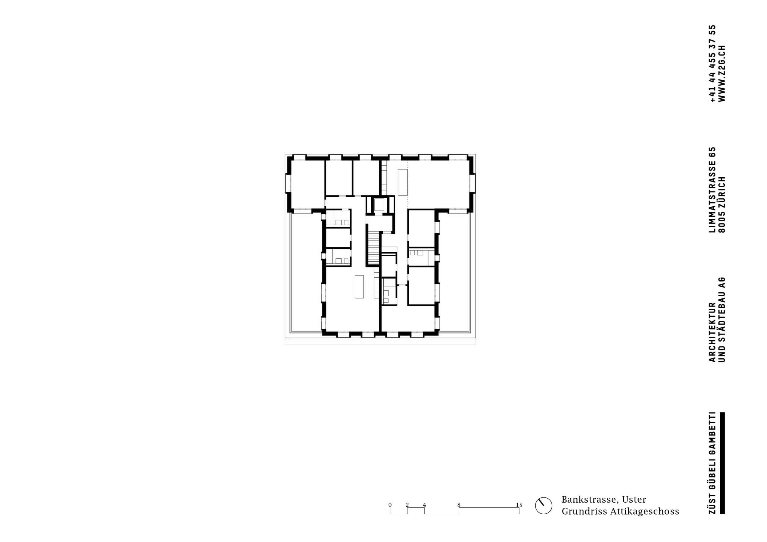
Die prominente Ecke an der Webernstrasse wird nebst skulpturalem Eingang mit einem Attikaakzent bedacht – auch als Reminiszenz an den Vorgänger. Zudem erweist sich das dank des Geländesprungs freigespülte Untergeschoss als Raumgeschenk, das zusammen mit dem Erdgeschoss eine Zäsur zur Strasse bewirkt. Die Obergeschosse teilen sich je vier zweiseitig orientierte Wohnungen mit Eckloggien. Das Attika wird je hälftig von einer grossen Wohnung besetzt, wobei eine vom überhohen Eck-Raum profitiert. Gekleidet ist alles in städtische Angemessenheit: Über dem elegant gerillten Betonsockel alternieren – getrennt von einem kräftigen Gurt – markante Fenstergewände mit konkaven Keramikpartien. (mc)

Daten
Auftragsart
Studien, Ersatzneubau
Planungsdauer
06/2017–2025
Ausführung
03/2023–08/2025
Adresse
Bankstrasse 11, 8610 Uster
Nutzungen
Wohnen, Gewerbe
Grundstückfläche
960 m2
Geschossfläche
2'311 m2 (o.i.) | 1‘059 m2 (u.i.)
Bauvolumen
11‘369 m3
Wohnungen
17 Mietwohnungen
Arbeitsplätze
12
Bauherrschaft
Immoturicum AG
Baumanagement
Venzin Baumanangement AG | Pfenninger Baumanagement AG
Landschaft
ryffel & ryffel ag
Statik
Baukonstrukt AG
Bauphysik
BAKUS Bauphysik & Akustik GmbH
Elektro
Faisst + Partner AG
HLKS
SWT-Gebäudetechnik GmbH
Fotografie
Roland Bernath
3940