«Villa Centrum», Zollikon

Kategorie
Wohnen
Ort
Zollikon
Auftragsart
Machbarkeitsstudie
Projektierung
Ausführung
Jahr
2010–2013
Status
Gebautes
Gebrochene Eleganz
Das changierende Fassadenspiel zweier eleganter wie robuster Stadtvillen macht in der Goldküstengemeinde einen Brückenschlag zwischen Land- und Nachbarschaft

Mitten in der gewachsenen Dorfstruktur von Zollikon lag ein langgezogenes Grundstück – eines der letzten unbebauten im Zentrum der Goldküstengemeinde. Von der Zumikerstrasse gut abgeschirmt, befindet es sich in bester Nachbarschaft. Züst Gübeli Gambetti interpretierten den Typus der Stadtvilla neu, wobei sie mit der Ambivalenz einer modernen wie klassischen Gestik spielten. Die beiden kubischen Baukörper sind durch plastische Vor- und Rücksprünge gebrochen. Eine Massnahme, die differenzierende Individualität schafft und die Grösse nimmt.

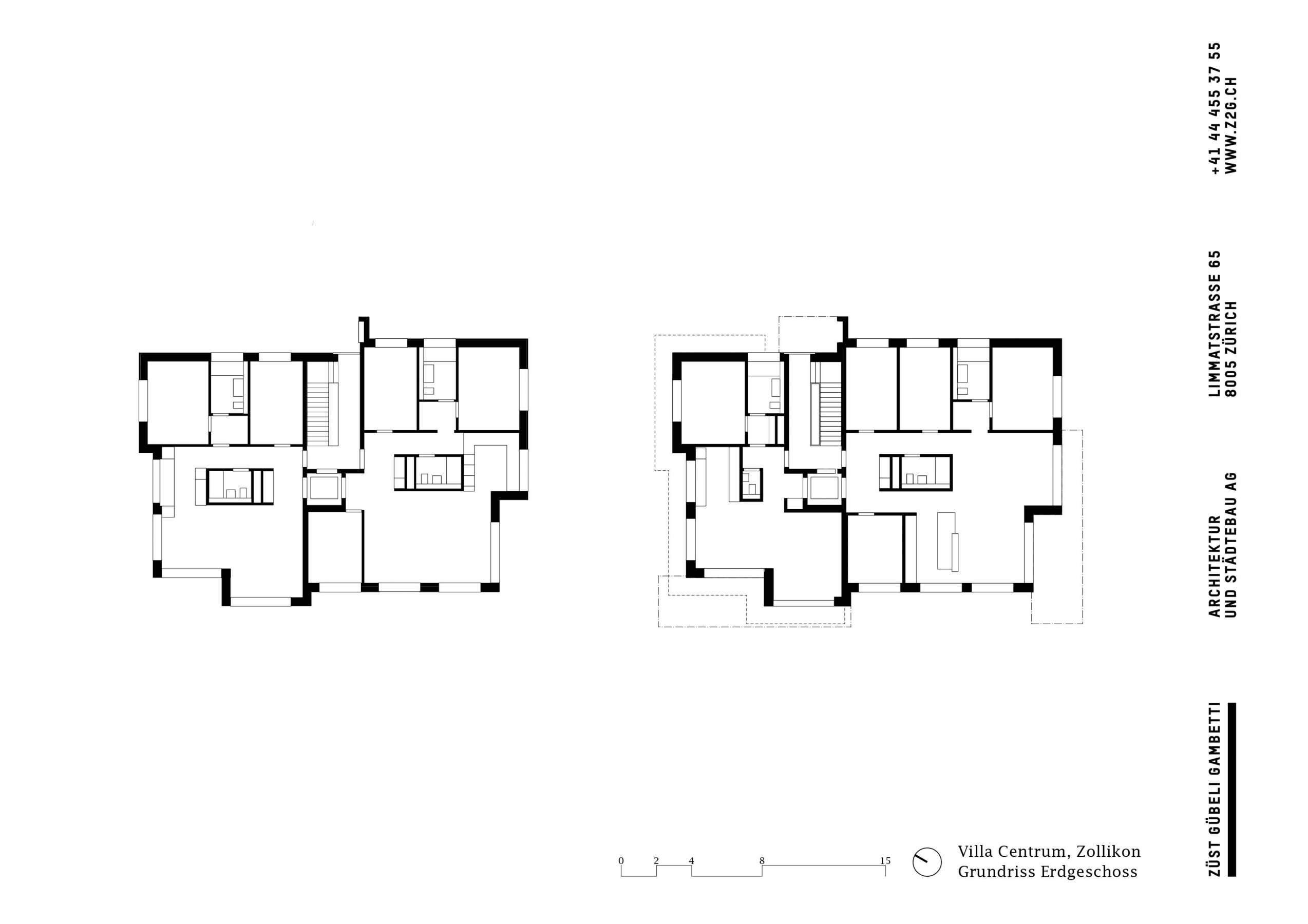
Im Ergebnis fügen sich die Häuser wie selbstverständlich in die Umgebung ein, während jede Wohnung ganztägige Besonnung erfährt. Ihre Grundrisstypologie mit einem in der Mitte situierten Nasszellenkern sowie frei darum herum fliessenden Wohnbereichen zoniert die Wohnungen in geräumige Flächen und Nischen. Der Wohnraum mit integrierter Küche öffnet sich zu je zwei Seiten, um sich auf eine grosszügige Terrasse zu erweitern. Richtung Norden liegt ein aufgereihter Schlaftrakt, der in seiner Mitte eine tagesbelichtete Nasszelle fasst. Das zurückspringende Attikageschoss nimmt je eine grosse Wohnung in sich auf.

Von Aussen strukturieren umlaufende Bänder die Häuser: Zum einen goldfarbene Alubänder, die die Deckenstirnen samtig-matt akzentuieren. Sie kontrastieren mit lebendig changierenden Glaspaneel-Flächen, deren Rückseiten in warmer Bronze emailliert wurden. Der alternierende Aufbau sowie präzise gesetzte Öffnungen überführen die Baukörper in die Horizontale betonende Schichten, während leichte Verschiebungen der Fenster die Geschosse zusätzlich auszeichnen. Im Wesentlichen aber besteht die Fassade aus dem Geschehen im Inneren und den Fassadenspiegelungen der umliegenden Bäume, Bauten und des Himmels – was die Plastizität der Baukörper untergräbt und ihre klassisch-edle Anmutung befördert. (mc)

Daten
Bauherrschaft
Generalica AG
Auftragsart
Studien, Neubauten
Planungsdauer
12/2010-12/2012
Fertigstellung
05/2013
Adresse
Friedhofstrasse 2+4, 8702 Zollikon
Nutzungen
Wohnen, Einstellhalle
Grundstückfläche
2'136 m2
Geschossfläche
1'494 o.i. | 978 m2 u.i.
Bauvolumen
7'748 m2
Wohnungen
10 Eigentumswohnungen
Nachhaltigkeit
Minergie
Generalunternehmer
Generalica AG
Baumanagement
Generalica AG
Landschaft
asp Landschaftsarchitekten AG
Statik
Buchmann Partner AG
Bauphysik
Bauphysik Meier AG
Elektro
Edelmann Ingenieurbüro AG
HLKS
Kolb Co AG
Beleuchtung
Edelmann Ingenieurbüro AG
Fotografie
Valentin Jeck
0440