Umnutzung Geschäftshaus Zurlindenstrasse, Zürich

Kategorie
Wohnen
Umbau & Sanierung
Ort
Zürich
Auftragsart
Machbarkeitsstudie
Projektierung
Ausführung
Jahr
2017—2025
Status
Gebautes
Wohnen statt Arbeiten
Mitten in der Kernzone sind aus einem Bürohaus Wohnungen entstanden. Dabei wurden Potenziale ausgelotet, Perlen des Bestands genutzt und die Vorhangfassade neu interpretiert.

An der Zurlindenstrasse drängen sich die Häuser dicht an dicht zum Block. Dass das Grösste in der Strassenzeile umgebaut wurde, verrät auf die Schnelle nur der zweite Blick. In längerem Prozess und diversen Studien wurde untersucht, wie sich das Ziel, das Bürohaus anno 1970 einer Wohnnutzung zuzuführen, mit vertretbarem Aufwand erreichen liesse. Im Austausch mit der Stadt wurden sämtliche Potenziale ausgelotet (Dach anheben: nein, Vorhangfassade ersetzen: ja), um Anpassungen an Wohnbedürfnisse vorzunehmen. Für letztere erwiesen sich die Raumhöhen von bis zu 2.75 m als spezieller «Luxus», der sich bei einem Neubau so kaum mehr verwirklichen liesse.

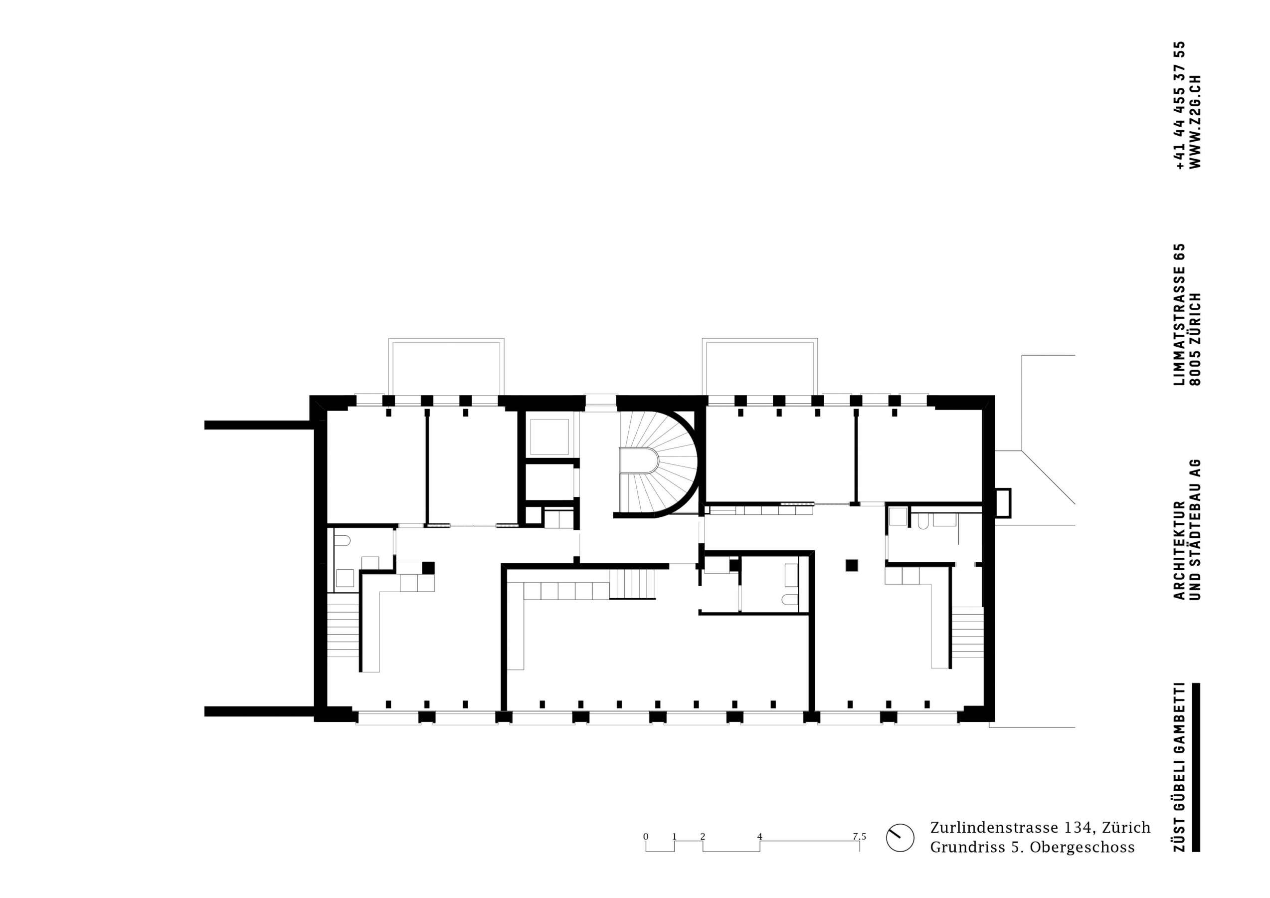
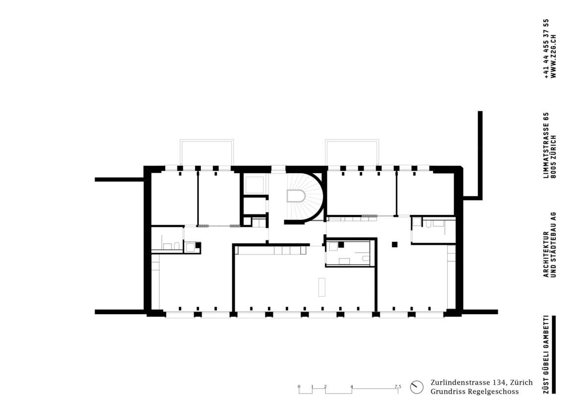
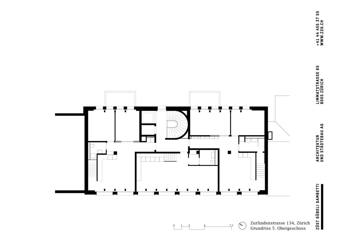
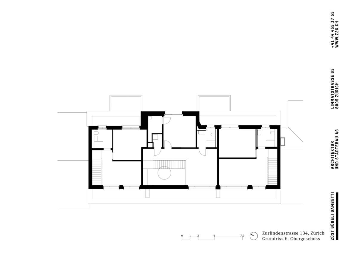
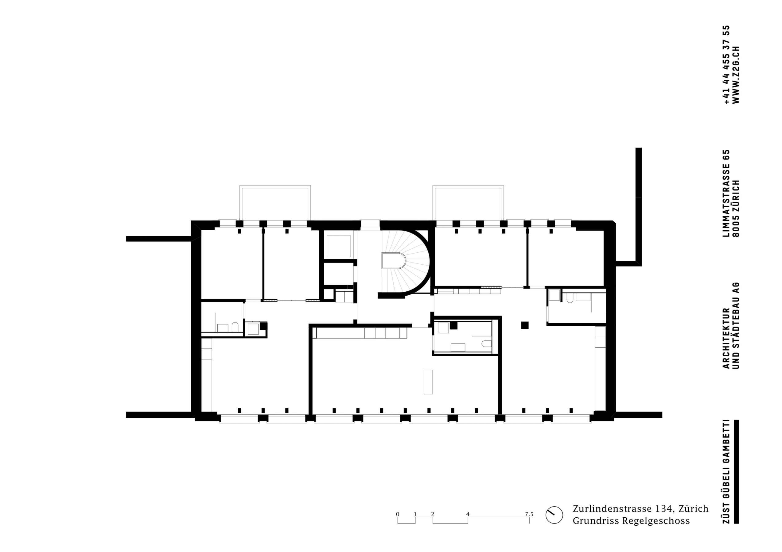
Ebenso erlaubte die dem Bürohaus zugrundeliegende Rasterstruktur mit drei mittigen Stützen eine freie Grundrisseinteilung. Im schönen Bestandstreppenhaus ermöglichte der Versatz einer Wand einen grösseren Lift sowie Flächenoptimierungen, womit der Kern wieder zur Visitenkarte wird. Während das Parterre mit grossen Schaufenstern nun als Yogastudio genutzt wird, sind darüber 15 Wohnungen entstanden. Es galt, dem Raster ein Maximum an gut ausgelegten Räumen abzuringen. Pro Etage gibt es zwei durchgestreckte Wohnungen mit Balkonen und ein Studio-Loft. Gipsständerwände teilen die Räume, die Betonstützen bleiben sichtbar und die Haustechnik wurde über Bäder- und Gangdecken geführt.

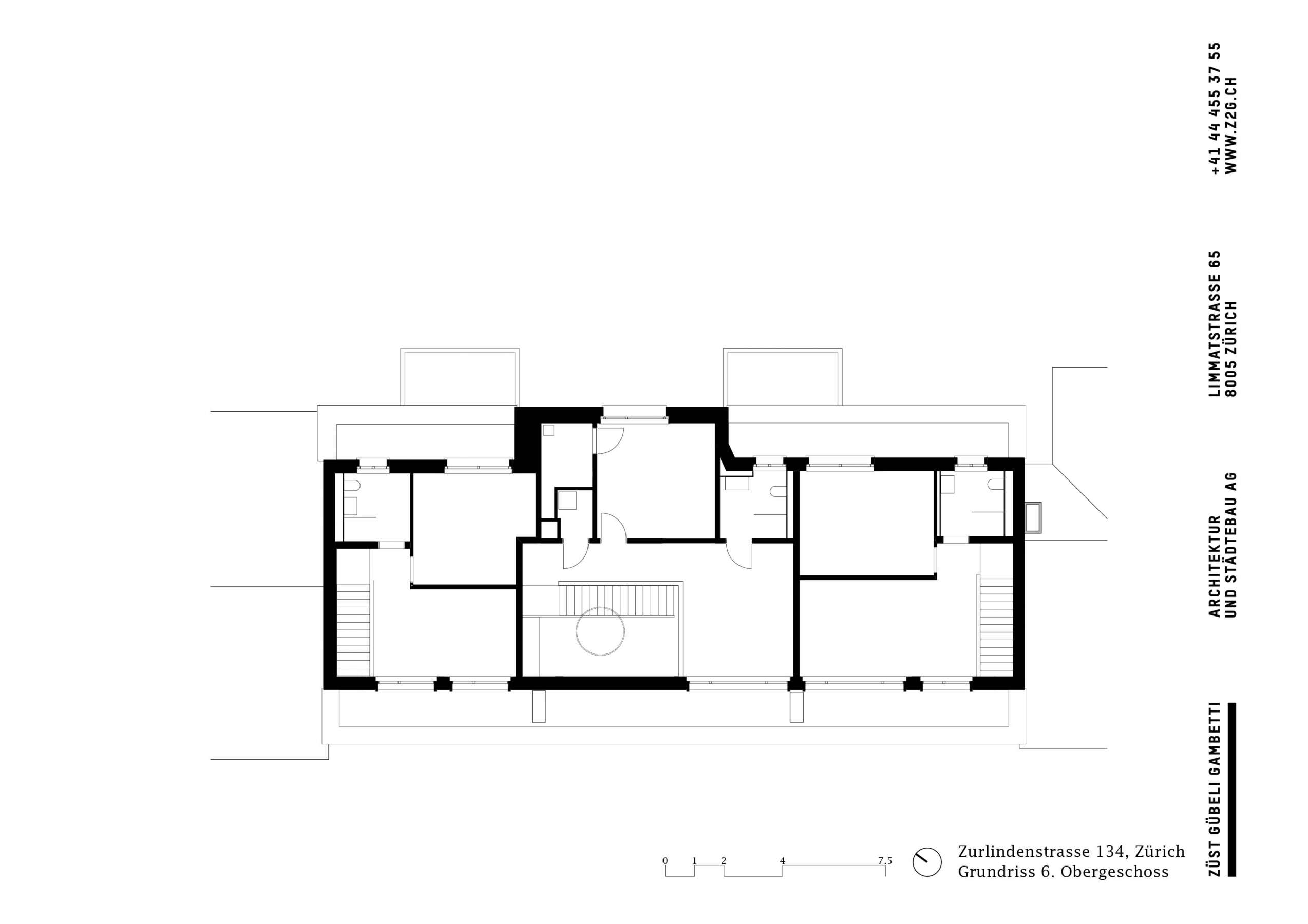
Die obersten zwei Etagen sind zu drei Maisonette-Wohnungen zusammengefasst. Von aussen zeigen sich die neuen Fassaden in zeitloser Gestalt. Dahinter stand lange die Frage, was auf die bestehende Vorhangfassade folgen sollte: Der Entscheid, die Hülle in gleicher Manier zu errichten, führte zu einer Holzelementkonstruktion – und Flächengewinnen. So zeigt sich das einstige Bürohaus an der Strasse in einer wohntypischen Lochfassade, ohne seine Raster-Herkunft zu negieren. Zudem versucht eine visuelle Klammer die obersten zwei Geschosse zu ducken, um zu den tieferen Nachbarn zu vermitteln. Die Hofseite ist mit Einzelfenstern und Balkonen in würdevoller Strenge maskiert. (mc)

Daten
Bauherrschaft
Zürich Anlagestiftung
Auftragsart
Machbarkeitsstudien, Sanierung, Umbau
Bauaufgabe
Umbau Bürohaus zu Wohnen
Planungsdauer
09/21 – 07/25
Ausführung
03/24 –07/25
Adresse
Zurlindenstrasse 134, 8003 Zürich
Nutzungen
Wohnen | Büro im EG
Grundstücksfl.
487 m2
Geschossfläche
1'663 m2 o.i. | 347 m2 u.i.
Bauvolumen
7'425 m3
Wohnungen
15 Mietwohnungen
Arbeitsplätze
1 Yogastudio
Generaluntern.
BAUKLA Generalunternehmung AG, Zürich
Statik
Marti Dietschweiler AG, Männedorf
HLKS
3-Plan Haustechnik, Winterthur
Elektro
3-Plan Haustechnik, Winterthur
Bauphysik
Gartenmann Engeneering, Zürich
Brandschutz
ProteQ GmbH, Schaffhausen
Fotografie
Roger Frei / Z2G Archiv
4160