Umbau Café-Bar «Pause», Zürich

Kategorie
Hotel & Gastronomie
Umbau & Sanierung
Innenarchitektur
Ort
Zürich
Auftragsart
Direktauftrag
Projektierung
Ausführung
Jahr
2017—2018
Status
Gebautes
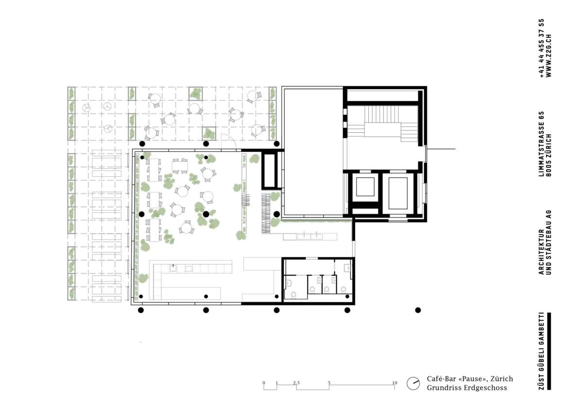
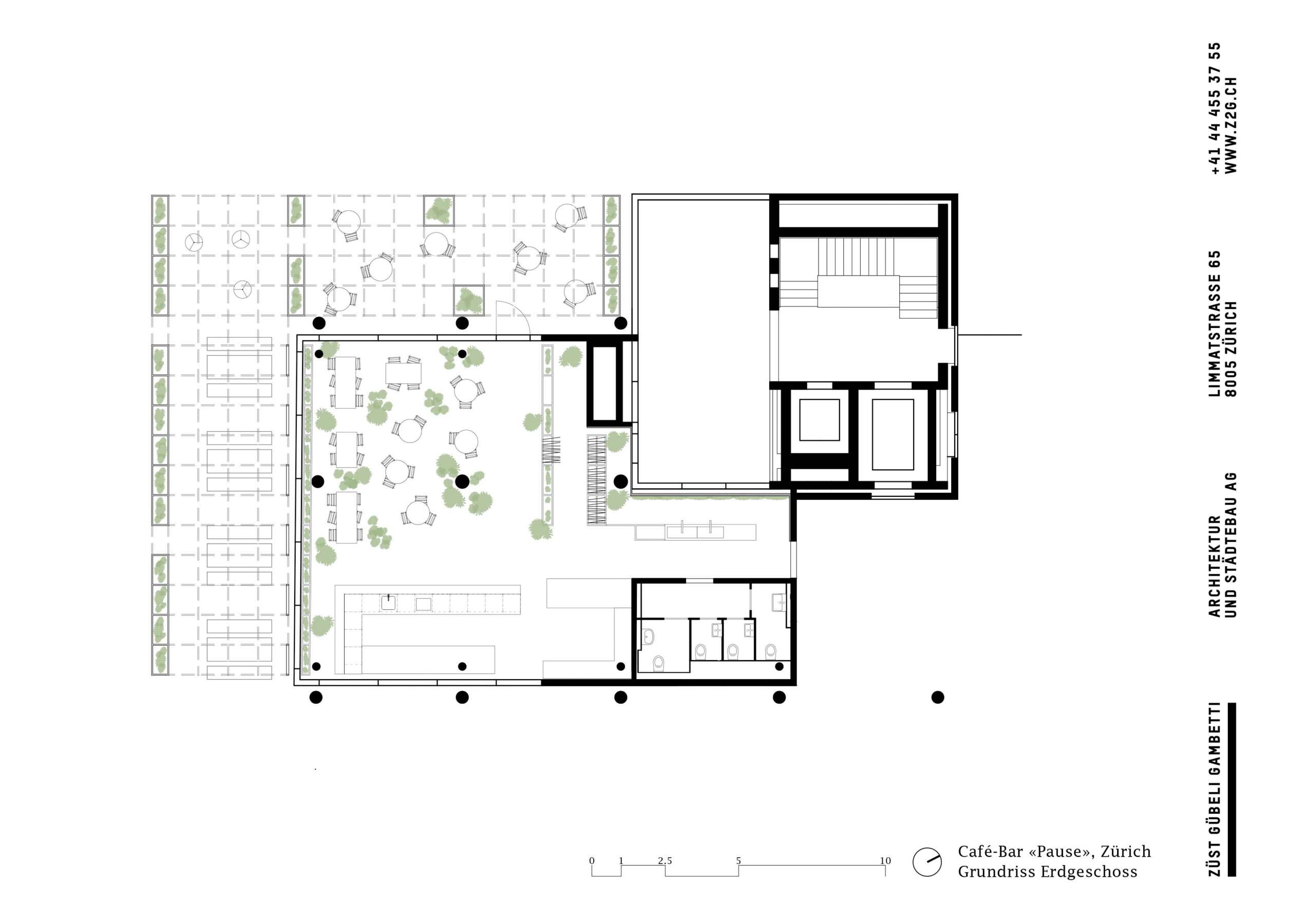
Oase im Asphaltdschungel
Nicht nur die virtuelle Warenhaus-Galaxie von digitec wächst. Das als vertikaler Garten gestaltete «Kafi Pause» will Pflanzen, Gedanken und Kreativität freien Lauf lassen. Und eine Transitachse beleben.

2017 konnte Galaxus im Gebäudekomplex com.West nahe der Headquarters neue Büros beziehen. Da es in der Umgebung kein gemütliches Café gab, wurde kurzerhand ein leerstehendes Lokal im Erdgeschoss dazu gemietet. An einer stark befahrenen Transitachse gelegen, sollte es als Rückzugsoase und Schaufenster für die innovative Firma dienen, so die Auftraggeber. In vergnüglicher Zusammenarbeit mit Gastronom Miguel Ledesma und Kraut + Quer konzipiert, hat Züst Gübeli Gambetti die Transformation mit minimalem Umbauaufwand realisiert.

Ziel war ein vertikaler Garten, der dem grauen Asphaltdschungel Züri West eine grüne Grossstadtoase entgegensetzt. Ein Klima, in dem nicht nur das Naturwerk wächst, sondern auch Gedanken und Kreativität spriessen. In erster Linie für Mitarbeiter als Arbeitsbiotop, Rückzugsenklave oder Keimzelle für neue Ideen gedacht, will die «Pause» auch externen Besuchern offenstehen und den Vorplatz beleben. Mit der reizvollen Vorstellung im Kopf, dass die Natur das Kommando übernimmt, wurde ein modulares Gerüst gestaltet, das künftig auch den Strassenraum erobert und innen und aussen verschmelzen lässt.

Die freundliche Übernahme nimmt ihren Ausgang in Töpfen, von wo aus sich das Grün über Gitter ausbreitet. Zum Eyecatcher wird eine üppig bepflanzte Wand. Das Grün der Pflanzen kontrastiert aufs Schönste mit dem Blau, Pink und Orange von Decken und Wänden. Üppig und farbenfroh – der ganze Ausbau treibt seine Blüten. Auch das Galaxus-Mobiliar unterstreicht das Feeling, denn die «Pause» soll zugleich Showroom sein, in dem Kunden die Produkte begutachten können. Insgesamt ist der Ausbau bewusst sehr flexibel gehalten. Er ist explizit als «work in progress» zu sehen, der sich jederzeit an geänderte Ansprüche und Nutzungsbedürfnisse adaptieren lässt. (mc)

Daten
Bauherrschaft
Digitec Galaxus AG
Auftragsart
Direktauftrag, Umbau
Planungsdauer
07/2017-10/2017
Fertigstellung
12/2017
Adresse
Förrlibuckstrasse 70, 8005 Zürich
Nutzungen
Gastronomie, Showroom, Pergola
Geschossfläche
160 m2 (o.i.) | 50 m2 (u.i.)
Bauvolumen
480 m3
Baumanagement
Planraum GmbH
Gastronomie
Miguel Ledesma
Landschaft
Kraut + Quer
Stahlbau
Schlosserei Walterstahl
Statik
MWV Bauingenieure AG
Sanitär
Thomas Posanz
Küchenbau
Mettler Gastrotechnik AG
Fotografie
Roger Frei
4030