Ersatzneubauten Schlösslistrasse, Zürich

Kategorie
Wohnen
Ort
Zürich
Auftragsart
Machbarkeitsstudie
Projektierung
Ausführung
Jahr
2014—2019
Status
Gebautes
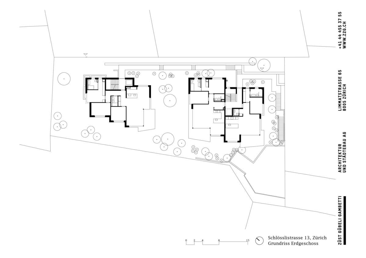
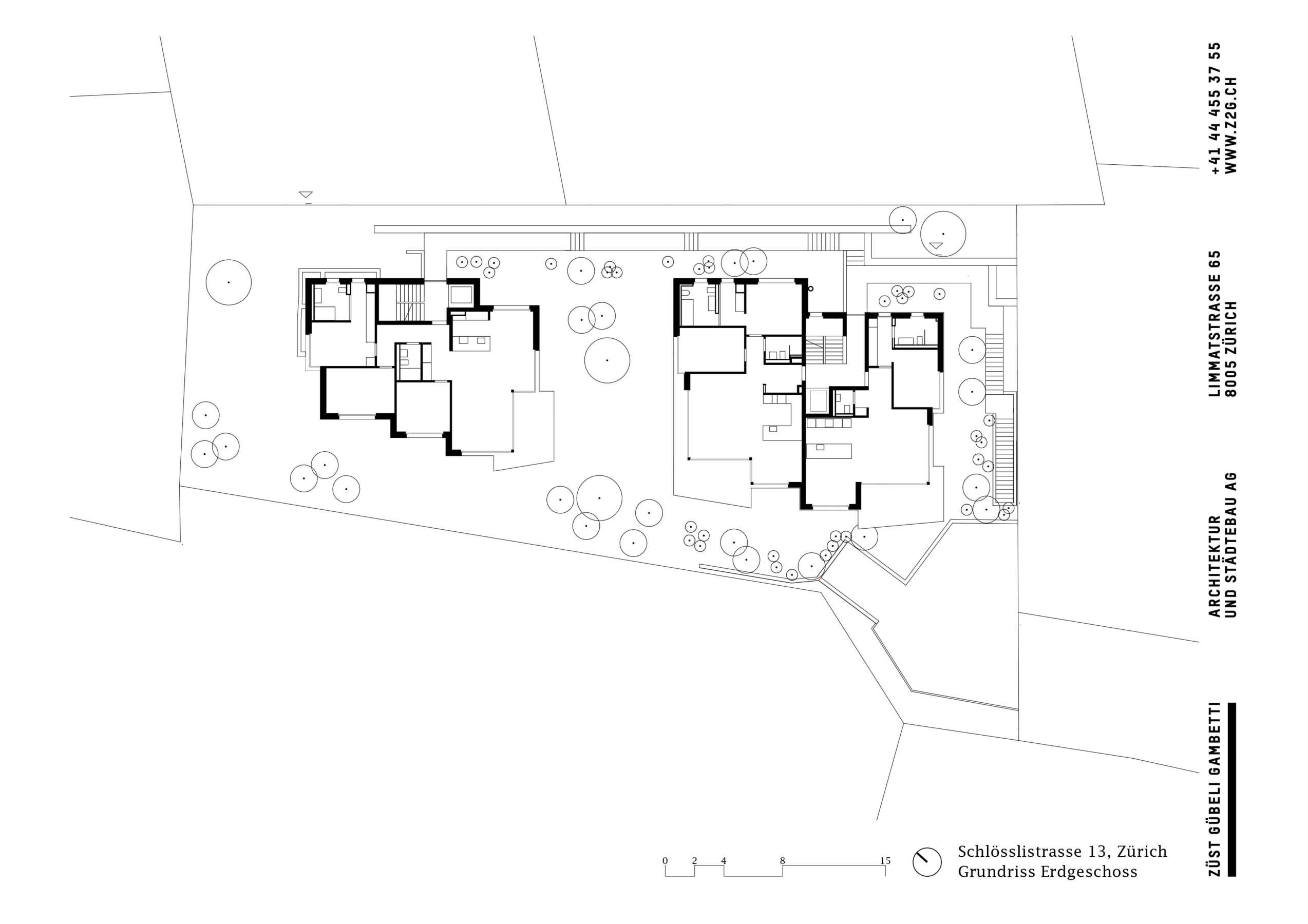
Zwei statt eins
Unter Auslotung des Baurechts und terrestrischer Gegebenheiten gelingt es, anstelle eines 1960er-Mehrfamilienhauses gleich zwei Ersatzneubauten im Villenquartier massstäblich zu verankern.

Am Ende einer Privatstrasse, eingebettet in ein Konglomerat aus Gründerzeitvillen und Mehrfamilienhaushäuser der Nachkriegszeit, zu Füssen die Stadt, im Rücken ein äusserst steiler Hang: So präsentierte sich Züst Gübeli Gambetti die Ausgangslage für den Entwurf eines Ersatzneubaus, bei dem man sich anstelle von nur einem Gebäude bewusst für deren zwei entschied. Dabei gingen baurechtlich relevante Betrachtungen mit entwurflichen einher. So ragen nun zwei Baukörper klar umrissen und extrovertiert auf die Umgebung bezogen in die Höhe.

Die angenehme Erscheinung der Häuser trotz stattlichen Volumens hat auch damit zu tun, dass ihnen beinahe schon etwas Skulpturales anhaftet. Während die scharfkantigen Abstufungen eine dem Wohnen an dieser Lage gerechte massstäbliche Verankerung im Quartier bewirken, ermöglichen sie ebenso die Einhaltung und Auslotung des Baurechtes. Leicht zurückversetzt, thronen die Bauten über einem sockelartigen Plateau, das die Garagenzufahrt und Garagenboxen der Nachbarschaft beherbergt. Die neue Adresse wird durch einen Aufgang markiert, der über eine kaskadenartige Aussentreppe die Hauszugänge hangseitig als «promenade architecturale» inszeniert.

Obwohl als Ein- bzw. Zweispänner konzipiert, herrscht offenkundige Verwandtschaft: Gemein ist beiden Häusern eine Fassade aus umlaufenden Deckenstirnen, die sie visuell zusammenbindet. Zusammen mit dem Relief der Wandpartien in grauschimmernder Keramik verströmen sie eine edel-heitere Anmutung. Während sich die Gebäude zum Hang zugeknöpfter geben, zeigen sie sich Richtung Stadt und See offenherzig. Innen dominiert ein angedeutetes Kammersystem: Hangseitig nimmt eine Raumschicht Bäder und Schlafkammern auf, die Mittelzone beherbergt Vertikalerschliessungen. Drumherum schieben sich die Wohn- und Tagesräume, um, wo baurechtlich möglich, als Erker und Balkone auszukragen. (mc)

Daten
Bauherrschaft
ibc Innova Baumanagement & Consulting AG / Lark Hill AG
Auftragsart
Machbarkeitsstudie, Ersatzneubau
Planungsdauer
02/2014-02/2018
Fertigstellung
07/2019
Adresse
Schlösslistrasse, 13a+13b, 8044 Zürich
Nutzungen
Wohnen, Einstellhalle
Grundstücksfläche
1'440 m2
Geschossfläche
1‘326 m2 o.i. | 1‘027 m2 o.i.
Bauvolumen
7'307 m3
Wohnungen
10 Eigentumswohnungen
Nachhaltigkeit
Minergie
Bauherrenvertretung
ibc Innova Baumanagement & Consulting AG
Baumanagement
LBM Partner AG
Landschaft
GGZ Gartenbau-Genossenschaft / Hauser Gärten AG
Statik
Gruner Wepf AG
Bauphysik
Kugucak Bauphysik
Elektro
Elektro Design + Partner AG / En.con-energie.consulting AG
HLKS
Tomaschett + Cioce AG
Fotografie
Roger Frei
2120