Nachverdichtung Siedlung «Im Grund», Embrach

Kategorie
Städtebau
Wohnen
Umbau & Sanierung
Ort
Embrach
Auftragsart
Projektentwicklung
Machbarkeitsstudie
Projektierung
Ausführung
Jahr
2016–2020
Status
Gebautes
Emotionalität statt Neutralität
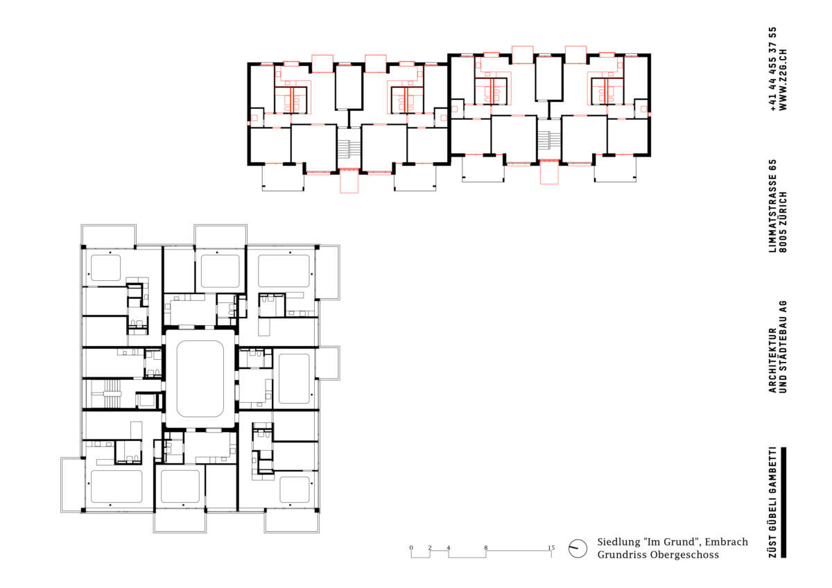
Bei einer Siedlungsverdichtung in Embrach kommen Gestaltungswille, Handwerkskunst und Spielfreude zusammen. Trotz grosser Detailarbeit geht auch der Blick fürs Gesamte nicht verloren.

Der Erneuerungsbedarf einer 1980er-Siedlung sowie das Verdichtungsgebot der Stunde erforderten eine kluge Strategie: Statt alles der Abrissbirne preiszugeben, entwickelten Züst Gübeli Gambetti in einem inspirierenden Prozess mit dem Bauherrn ein Projekt, bei dem punktuelle Interventionen den Bestand aufwerten. Anders als das oft austauschbare Bild ewiggleicher Wohnblöcke kündet die neu sanierte Siedlung von grossem Beziehungs- und Detailreichtum, während ein absoluter Gestaltungswille Alt und Neu zur kommunikativen Gestalt zusammenbindet.

Bereits mit wenigen Eingriffen an den Eingangsfronten der Bestandszeilen wird das Versprechen eingelöst: Neu gibt es kein Vorne oder Hinten mehr und auch das Abstandsgrün ist einem Gemeinschaftshof gewichen. An den Enden setzen zwei Ersatzneubauten je einen Punkt: Mit Kleinwohnungen und Lift bestückt, ergänzen sie das Wohnangebot. Je ein Betonpfeiler – elementar und verfeinert zugleich – schultert die neuen Häuser. Darüber betonen geschuppte Brüstungsbänder und ausgreifende Balkone allseitige Zugewandtheit. In ihrem Innern wirkt ein Atrium – gekleidet in heitere Farbigkeit und mit Durchblicken in die Wohnungen – als kommunikatives Bindeglied zwischen den Sphären.

Die neuen Wohnungen basieren auf einer Kammerstruktur zunehmender Privatheit. Es sind Räume, in denen man sich auch ohne Möbel eingerichtet fühlt: Fensterbegleitende Holzbänke, sechseckige Stützen, Böden mit Intarsien und Schreinerarbeiten vermitteln Liebe zum Detail und das Gefühl, «zuhause» zu sein. Beim Bestand blieb es bei kleinen, hochwertigen Eingriffen. In den Küchen dominiert neu ein grosses Kastenfenster, das auch als Sitzbank dient. Die Küchenzeile wurde ins Esszimmer verlängert, welches sich via Flügeltüre in den Wohnbereich erweitert. Und statt der «Abfallsack-Balkone» sorgen nun Logenplätze für lustvolle Frühstücks-Momente. (mc)

Daten
Bauherrschaft
Specogna Immobilien AG
Auftragsart
Machbarkeitsstudien, Projektentwicklung, Sanierung & Ersatzneubau
Planungsdauer
Sanierung: 07/2017-06/2019
Teilersatz: 09/2015-06/2020
Fertigstellung
Sanierung: 09/2019 | Teilersatz: 12/2020
Adresse
Im Grund 5-21, 8424 Embrach
Nutzungen
Wohnen, Gemeinschaftsräume, Büro, Einstellhalle
Grundstücksfläche
17'414 m2
Geschossfläche
Sanierung: 5‘826 m2 o.i. | 3‘400 m2 u.i.
Teilersatz: 4‘820 m2 o.i. | 2‘244 m2 u.i.
Bauvolumen
Teilersatz: 18'572 m3
Wohnungen
Teilersatz: 49 | Sanierung: 44
Nachhaltigkeit
Teilersatz: Minergie-P-Eco
Baumanagement
Specogna Immobilien AG
Landschaft
Hager Partner AG
Bauphysik
EK Energiekonzepte AG
Statik
Eichenberger AG
Elektro
PBP AG Engineering
HLKS
Frei+Partner GmbH
Brandschutz
ProteQ GmbH
Fotografie
Roger Frei
3130