Stadtbaustein «KlotenMilano», Kloten

Kategorie
Städtebau
Wohnen
Mixed Use
Ort
Kloten
Auftragsart
Machbarkeitsstudie
Richtprojekt
Gestaltungsplan
Projektierung
Ausführung
Jahr
2013–2019
Status
Gebautes
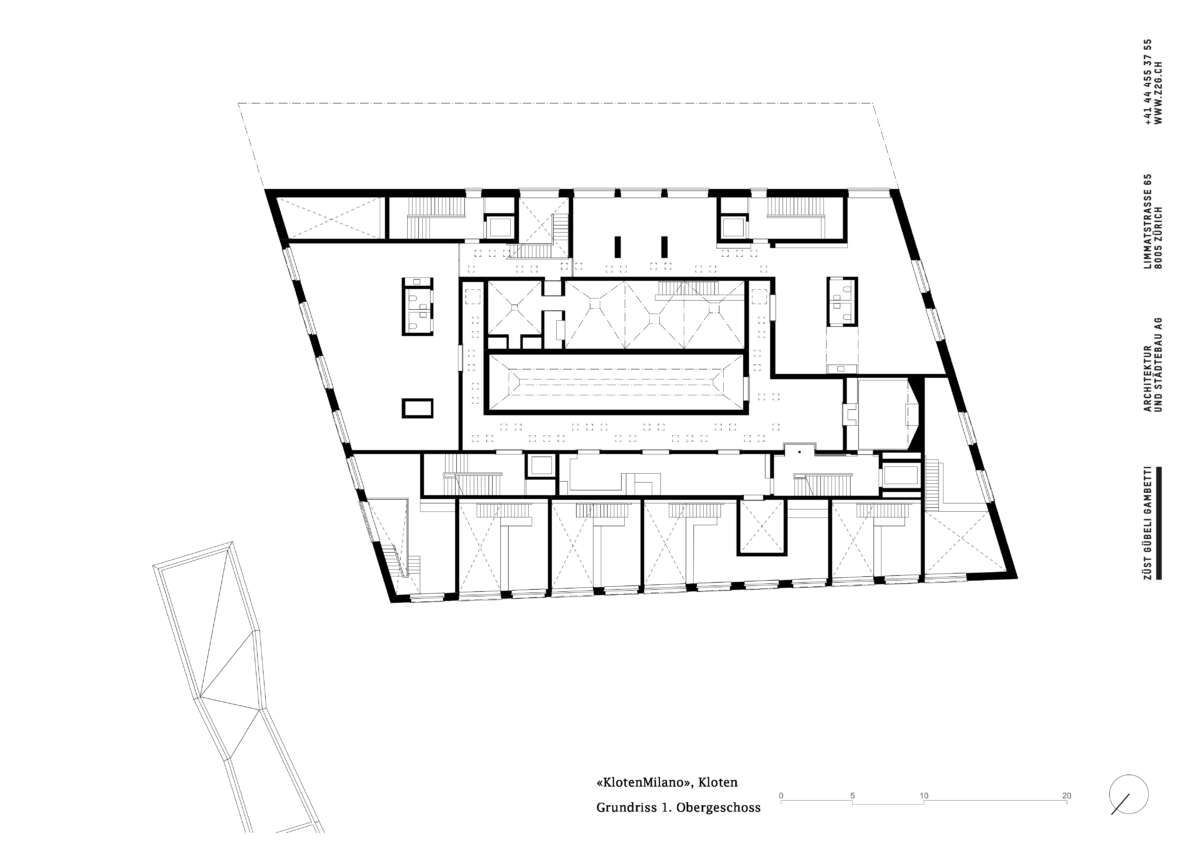
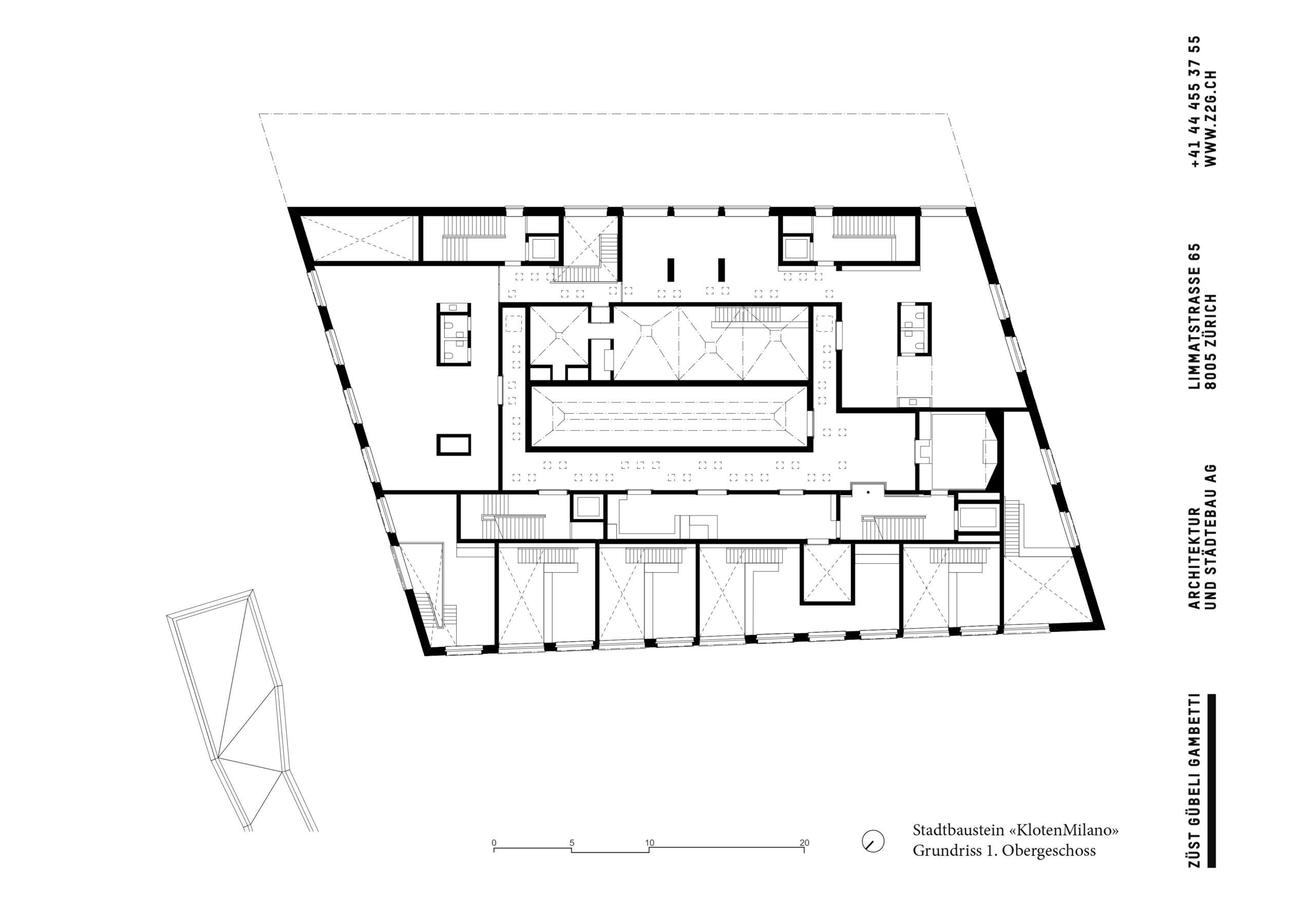
Die Stadt im Haus
Am Rande Klotens ist im kooperativen Verfahren ein kühnes Mietshaus entstanden. Auf acht Etagen destilliert es die Stadt in ein einziges Haus - für ein Mehr an Miteinander.

In Kloten spielt sich der Transformationsprozess zur Stadt mit neuer Identität in rasantem Tempo ab. Während der Dienstleistungsriese The Circle beim Flughafen das andere Ende der Stadt markiert, kristallisiert sich am Gewerbestandort Balsberg ein weiterer komplementärer Pol zum Zentrum heraus. Hier an städtebaulich brisanter Lage steht nun ein kühnes Gebäude, das dem Ortseingang im Süden ein markiges Gesicht verleiht. KlotenMilano ist eine Hommage an das Mailand der fünfziger Jahre und die Nachkriegsmoderne. Es ist ein Synonym für die Aufbruchsstimmung, die auch in Kloten herrscht. Und ähnlich wie die norditalienische Metropole zeigt es seine wahre Schönheit erst beim Blick hinter die Fassade.

Züst Gübeli Gambettis Ersatzneubau für einen sanierungsfälligen 1970er-Wohnblock ist als ein Haus der Begegnung und des Zusammenlebens konzipiert, das mit einem facettenreichen Innenleben lockt. Direkt auf die Trottoir-Kante gesetzt, ruht es auf einem Sockel, der entlang der Hauptstrasse einen vitalen Nutzungsmix entfaltet. In seinem Inneren aber packt KlotenMilano die italienische Stadt in ein einziges Haus. Herzschlagader ist eine doppelstöckige Piazza mit zahlreichen Fenstern und Durchblicken, von der man über Treppen und Rampen ins geschäftige Innere gelangt.

Auf acht Etagen wird hier nicht nur gewohnt und gearbeitet, sondern auch geschwommen, Fitness betrieben, Squash gespielt, gemeinsam gewaschen, gelesen und das Dach zum Relaxen, Handwerkern, Grillieren oder kollektiven Gärtnern genutzt. Mit seinen vielen Gemeinschaftsräumen und Begegnungszonen bietet der kompakte, auf Ökologie getrimmte Nutzungsstapel nicht nur erhebliche bauliche, sondern auch funktionale Verdichtung. Das Prinzip des Miteinanders war im Übrigen auch für seinen siebenjährigen Entstehungsprozess bezeichnend. KlotenMilano ist im engen Austausch mit einem innovativen Bauherrn und der Stadt Kloten entstanden. (mc)

Daten
Bauherrschaft
Specogna Immobilien AG
Auftragsart
Machbarkeitsstudien, Richtprojekt, Gestaltungsplan, Ersatzneubau
Planungsdauer
04/2013–04/2019
Fertigstellung
04/2019
Adresse
Waldeggweg 2, 8302 Kloten
Nutzungen
Wohnen, Gewerbe, Gemeinschaftsräume (Pool mit Jacuzzi, Fitnessraum, Squash-Halle, Bibliothek, Kaminzimmer, Dachgarten mit DIY-Ateliers, Waschsalon)
Grundstücksfläche
3'619 m2
Geschossfläche
9'700 m2 o.i. | 2‘000 m2 u.i.
Bauvolumen
42'500 m3
Wohnungen
65 Mietwohnungen
Gewerberäume
6 Einheiten auf 640 m2
Nachhaltigkeit
Minergie P, Photovoltaik, Mobilitätskonzept
Baumanagement
Specogna Immobilien AG
Landschaft
Eberhard Gartenbau AG (Entwurf Studio Vulkan)
Bauingenieur
Eichenberger AG
Bauphysik
EK Energiekonzepte AG
Elektro
pbp ag engineering
HLKS
Balzer Ingenieure AG
Beleuchtung
Lillarosso GmbH
Fotografie
Roger Frei
1870