«SETA Park», Wetzikon

Kategorie
Städtebau
Mixed Use
Umbau & Sanierung
Ort
Wetzikon
Auftragsart
Studienauftrag
Jahr
2023
Status
Wettbewerb
Triade der Transformation
Punktuelle Einschnitte, Aufstockungen und Neubauten sorgen für vielseitige Aussenräume und Wohnerlebnisse am postindustriellen Areal – sowie die Auferstehung eines historischen Trios

Wetzikon ist ein dynamischer Wirtschaftsstandort der Region. Das 10’000 m2-Areal liegt direkt am Bahnhof, der als wichtige Drehscheibe gilt. Seit Generationen im Familienbesitz, erzählt es die Geschichte von der Sägeblattfabrik zur Seidenweberei bis hin zur heutigen Gewerbenutzung. Künftig soll es als «Seta-Park» zum vitalen Stadtbaustein mit 70%-Wohnanteil werden – unter Wahrung seines Charakters. Zudem soll eine geeignete Personenquerung einen Zusammenhang zwischen dem Dies- und Jenseits der Geleise schaffen.

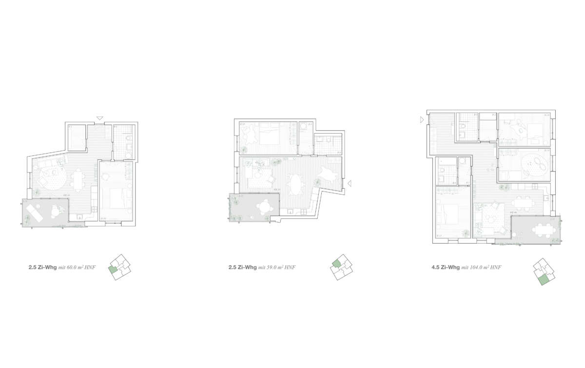
Der städtebauliche Entwurf zeigt sich als stimmiges Ensemble. Die Fabrikhallen werden gleisseits mit einem viergeschossigen Riegel aufgestockt, der auch als «Kopf» wirkt. Der wohlkalkulierte Abbruch einiger Erweiterungen spielt die Villa frei und schafft Raum. Im Anschluss nutzen drei Punktbauten die Grundstückstiefe. Ihre Vermählung verschiedener Geometrien sorgt für eine Höhenstaffelung, die zwischen Gleis- und Stadtraum vermittelt. Ebenso entsteht eine angemessene Porosität. Kurzum, der Entwurf extrahiert, schärft und kombiniert bestehende mit neuen Qualitäten und schafft so einen Ort, an dem Fabrik, Villa und Blutbuche ein identitätsstiftendes Trio bilden. Und ebenso garantiert er vielseitige Aussenräume und Wohnerlebnisse.

Die Fabrikaufstockung erfolgt als Holzbau. Eine Rue intérieure schafft Effizienz und Wohnvielfalt, wobei Bewohner auch von einem Dachgarten auf dem alten Fabrikdach profitieren. Von aussen kontrastiert der Bau in filigraner Metalloptik mit seinem massiven Träger. Sodann macht eine Passerelle den Brückenschlag über die Geleise – ausgehend vom neuen Seta-Platz, der die Buche inszeniert und eine Sitztreppe anbietet. Die drei allseits zugewandten Wohnbauten offerieren gute Besonnung und Weitsicht. Innen trägt die Geometrie zum speziellen Wohnungsmix bei. Im akzentuierten Sockel suchen flexible Ateliers mit Galerie die Strasse zu beleben. Sie setzen der Öffentlichkeit ein robustes Antlitz entgegen.

Daten
Bauherrschaft
Bosshard-Bühler & Co. AG
Veranstalterin
DMEN Development AG
Auftragsart
Anonymer Wettbewerb auf Einladung, Arealentwicklung, Aufstockung, Sanierung, Neubau
Planungsdauer
03/2023-06/2023
Adresse
Guyer-Zeller-Strasse 2-6, 8620 Wetzikon ZH
Nutzungen
Wohnen, Gewerbe, Kultur, Einstellhalle
Grundstückfläche
10'000 m2
Geschossfläche
25‘185 m2
Bauvolumen
83‘970 m3
Wohnungen
130 Wohnungen
Landschaft
BÖE Studio
Verkehr
urbanista.ch AG