«Wohnen Plus» Saurer-Areal WerkZwei, Arbon

Kategorie
Städtebau
Wohnen
Ort
Arbon
Auftragsart
Testplanung
Projektierung
Ausführung
Jahr
2013—2016
Status
Gebautes
Zugkraft für den Stadtumbau
Das einstige Fabrikgelände von Saurer bot Platz, die Stadt neu zu denken: Zwei Neubauten werden im Zusammenspiel mit dem Bestand zum Motor für die schrittweise Transformation des Areals.

In Arbon entsteht zwischen Bahnhof und Altstadt ein ganz neuer Stadtteil: Mit dem Rückzug der Schweizer Traditionsfirma Saurer ergab sich auf dem 200’000 m2-Areal die Chance, anstelle der einst «verbotenen Stadt» ein möglichst vitales Durcheinander von Wohnen, Gewerbe und Freizeit zu realisieren. Das von Züst Gübeli Gambetti bearbeitete Baufeld A liegt dabei an vorderster Front, gleich vis-à-vis des identitätsträchtigen Hamel-Gebäudes. Ihre zwei Neubauten markieren im Zusammenspiel mit dem historischen Bestand das Eingangstor zum neuen Quartier.

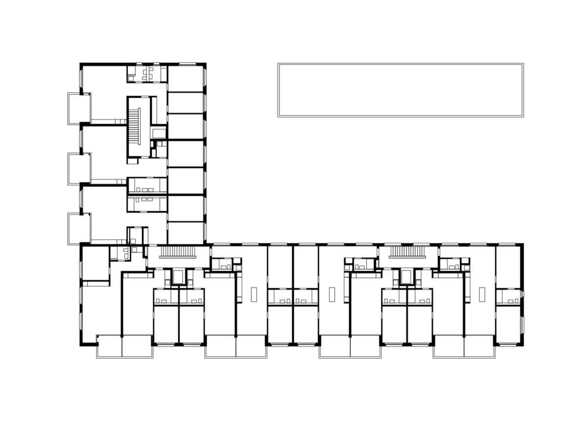
Der Entwurf setzt alles daran, das vormals abgeschottete Areal an die Stadt anzubinden. Die beiden mit Bedacht an das denkmalgeschützte «Presswerk» angedockten Bausteine «Wohnen am Hamelplatz» und «Wohnen Plus» wirken autonom und zugleich als Dreiergespann. Wie eine Zugkomposition schieben sich die Bauten über das langgezogene Baufeld. Dank vielgestaltiger Freiräume und Erdgeschossnutzungen verfügen sie über mobilisierende Kräfte fürs Quartier. Dafür werden an den richtigen Stellen Gassen und Passagen ausgebildet und ebenso die Binnenräume der Neubauten fürs Publikum geöffnet.

Den Auftakt am Hamel-Platz macht ein sorgsam modellierter Backsteinbau, der genossenschaftliches Wohnen beherbergt. Aus seinem Körper erwächst ein gewichtiger Kopf, der im Dialog mit dem Hamel-Gebäude die Skyline am Bahnhof bestimmt. Als abgestufter Blockrand fasst er in seiner Mitte einen Innenhof, dessen gewerbliche wie gemeinschaftliche Einrichtungen im Erdgeschoss für Belebung sorgen. Das nachfolgende, völlig ausgeweidete «Presswerk» dient als Kulturzentrum. Im Westen zum Park schafft so dann der Winkelbau «Wohnen Plus» eine öffnende Geste und soziale Durchmischung, die auch älteren Menschen ein angenehmes Umfeld bieten will. (mc)

Daten
Bauherrschaft
HRS Real Estate AG / Basler Versicherung AG
Auftragsart
Neubau (Teil von Baufeld A mit Umnutzung "Presswerk" / Ersatzneubau "Wohnen am Hamelplatz" im begleiteten Verfahren
Planungsdauer
08/2013-07/2015
Fertigstellung
01/2017
Adresse
Hamelstrassse 17-21, 9320 Arbon
Nutzungen
Wohnen, Einstellhalle
Grundstücksfläche
2'204 m2
Geschossfläche
5'034 m2 o.i. | 1'943 m2 u.i.
Bauvolumen
22'026 m3
Wohnungen
51 Mietwohnungen
Nachhaltigkeit
Minergie (ohne Zertifizierung)
Baumanagement
HRS Real Estate AG
Totalunternehmer
HRS Real Estate AG
Landschaft
ASP Landschaftsarchitekten AG
Statik
Wälli AG Ingenieure
Bauphysik
Kopitsis Bauphysik AG
Elektro
IBG Engineering AG
HLKS
Kempter + Partner AG
Geotechnik
Andres Geotechnik AG
Brandschutz
Wälli AG Ingenieure
Fotografie
Roger Frei
1760