«Wohnen am Hamelplatz» Saurer-Areal WerkZwei, Arbon

Kategorie
Städtebau
Wohnen
Mixed Use
Ort
Arbon
Auftragsart
Testplanung
Projektierung
Ausführung
Jahr
2014—2021
Status
Gebautes
Zugkraft für den Stadtumbau
Das einstige Fabrikgelände von Saurer bot Platz, die Stadt neu zu denken: Zwei Neubauten werden im Zusammenspiel mit dem Bestand zum Motor für die schrittweise Transformation des Areals.

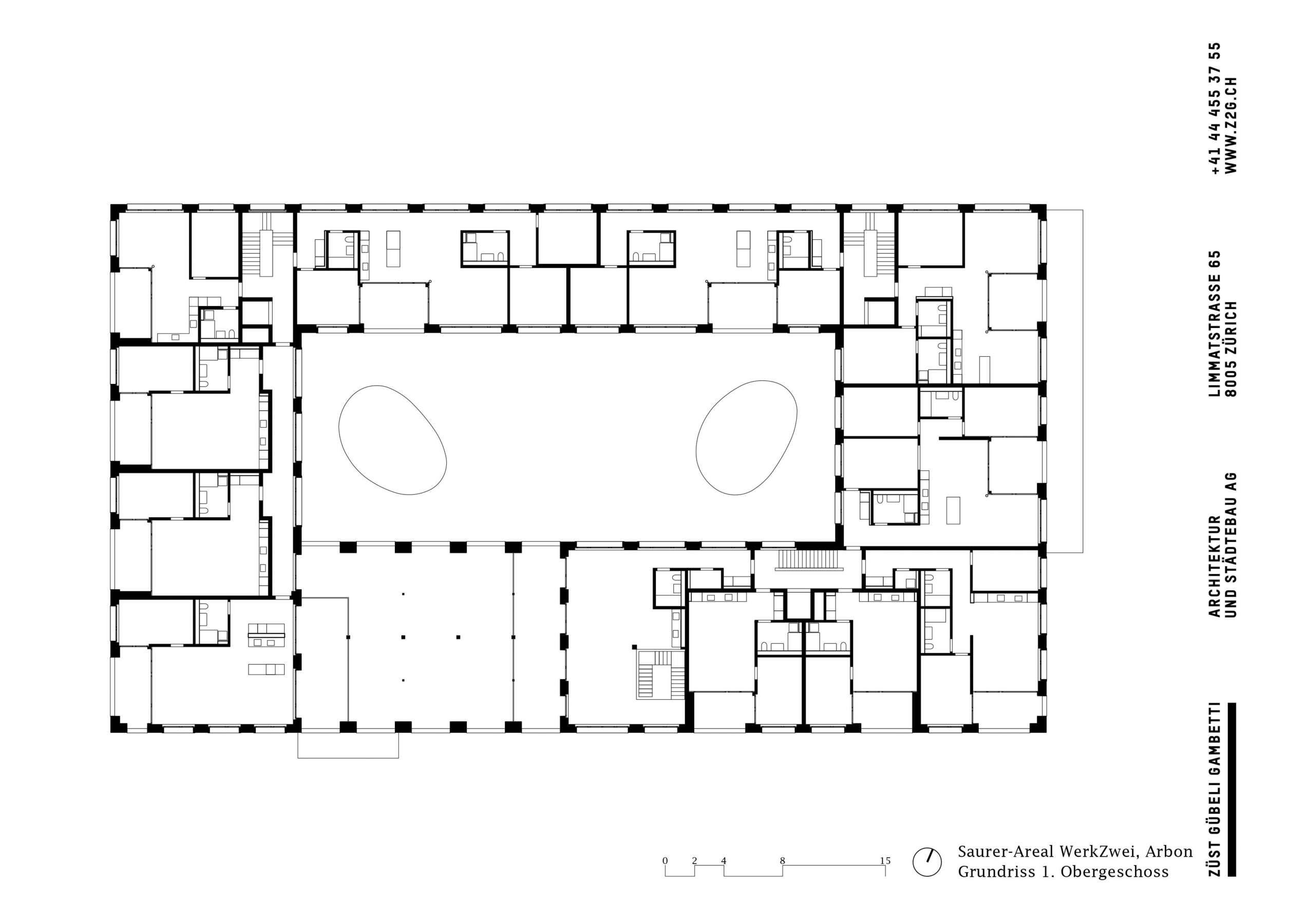
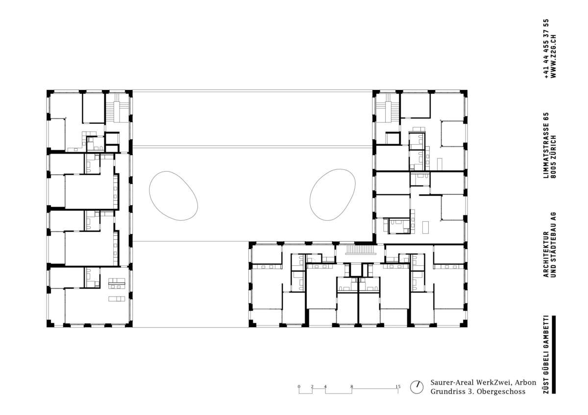
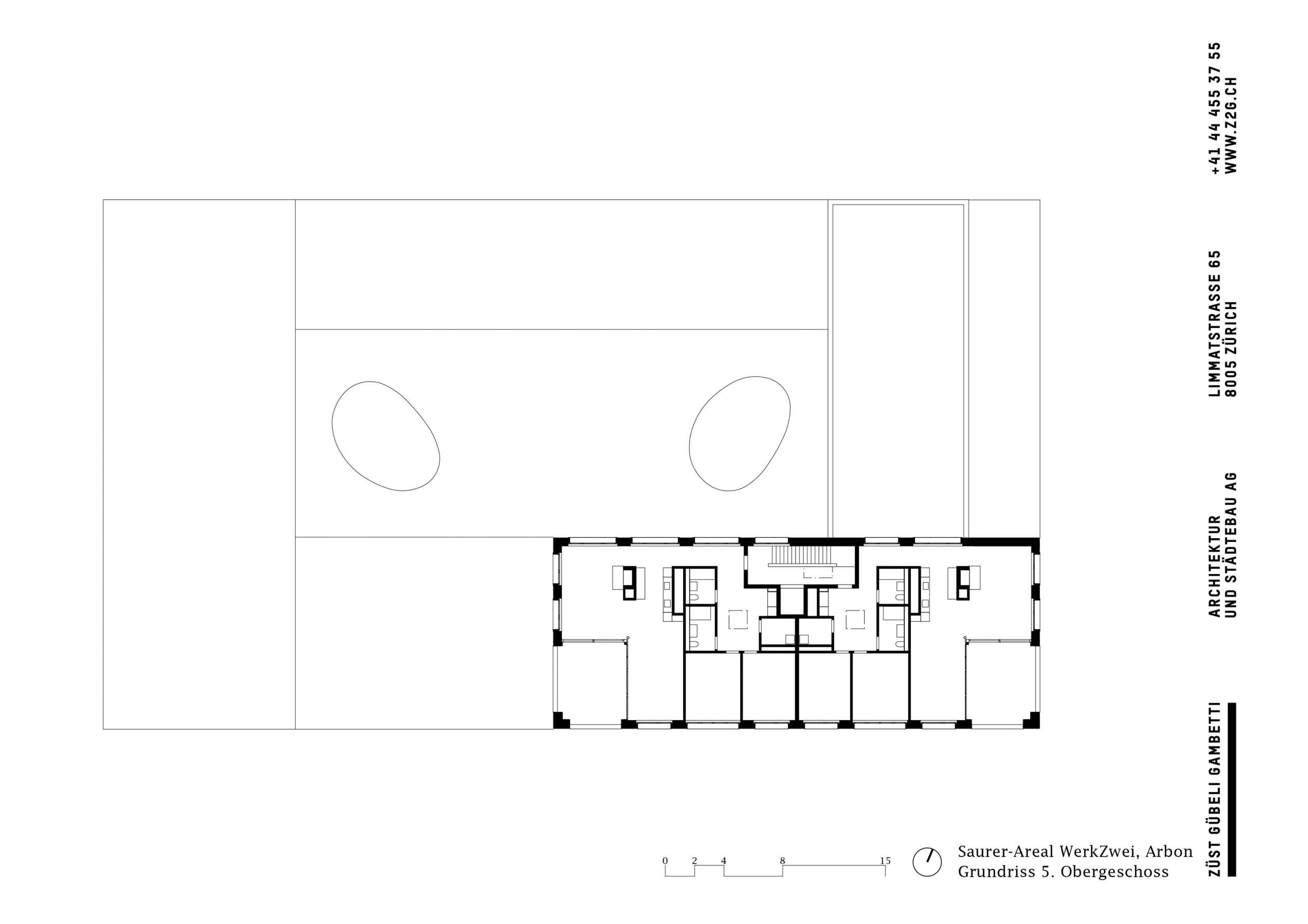
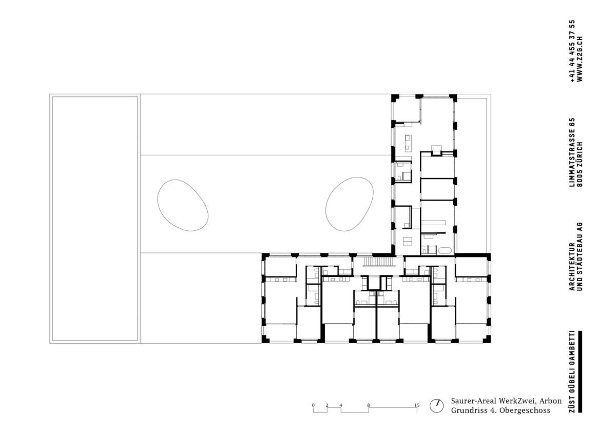
In Arbon entsteht zwischen Bahnhof und Altstadt ein ganz neuer Stadtteil: Mit dem Rückzug der Schweizer Traditionsfirma Saurer ergab sich auf dem 200’000 m2-Areal die Chance, anstelle der einst «verbotenen Stadt» ein möglichst vitales Durcheinander von Wohnen, Gewerbe und Freizeit zu realisieren. Das von Züst Gübeli Gambetti bearbeitete Baufeld A liegt dabei an vorderster Front, gleich vis-à-vis des identitätsträchtigen Hamel-Gebäudes. Ihre zwei Neubauten markieren im Zusammenspiel mit dem historischen Bestand das Eingangstor zum neuen Quartier.

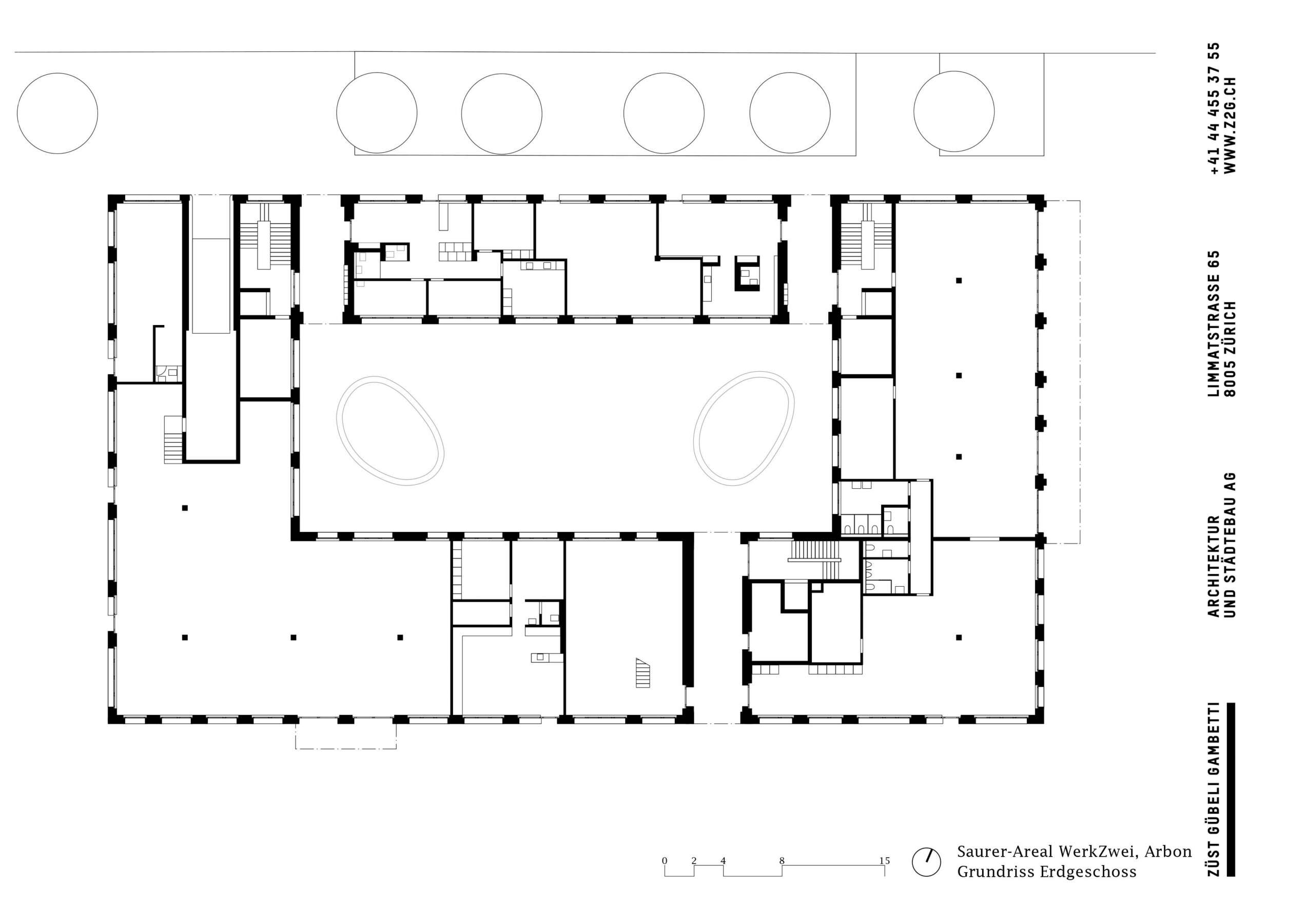
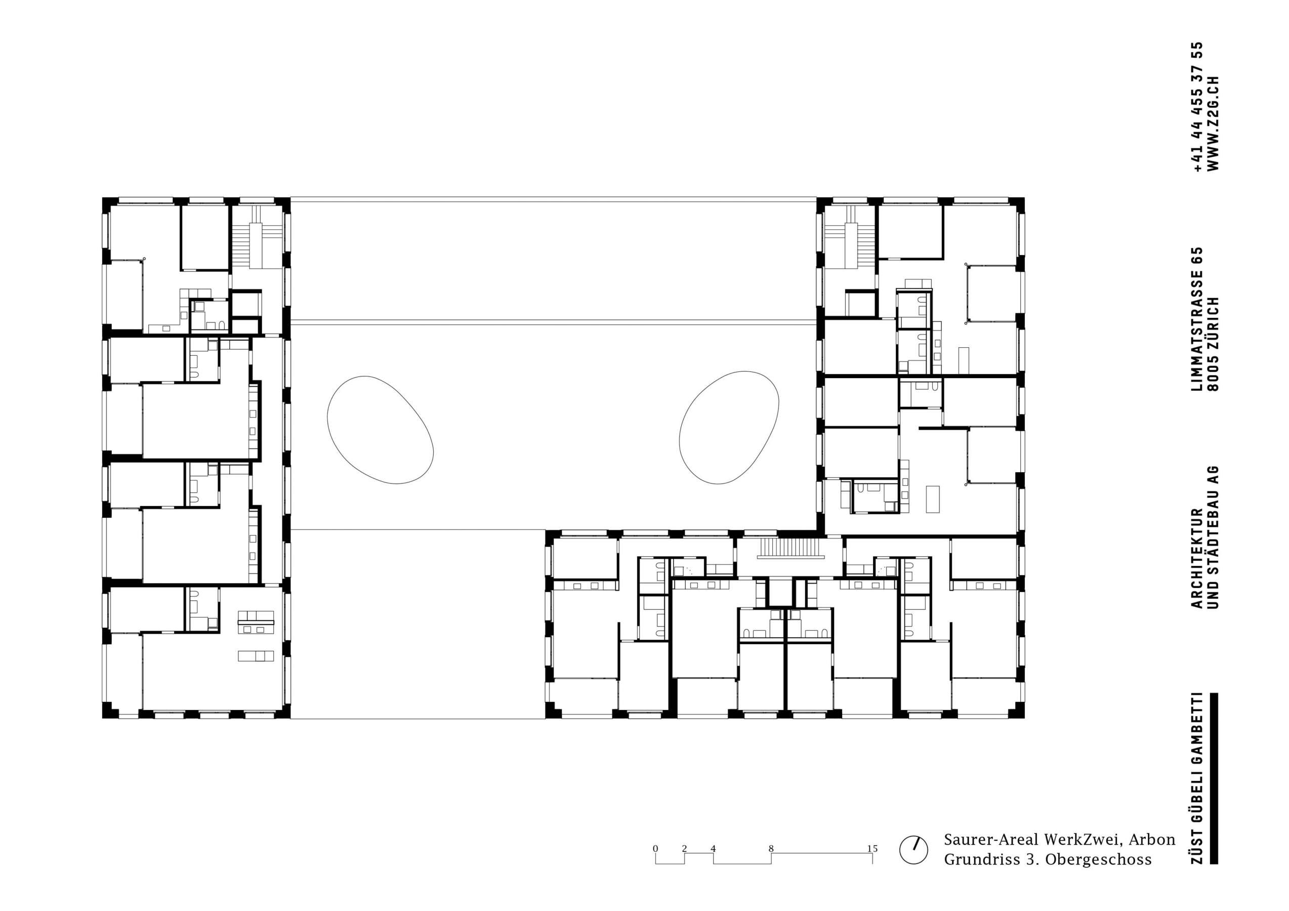
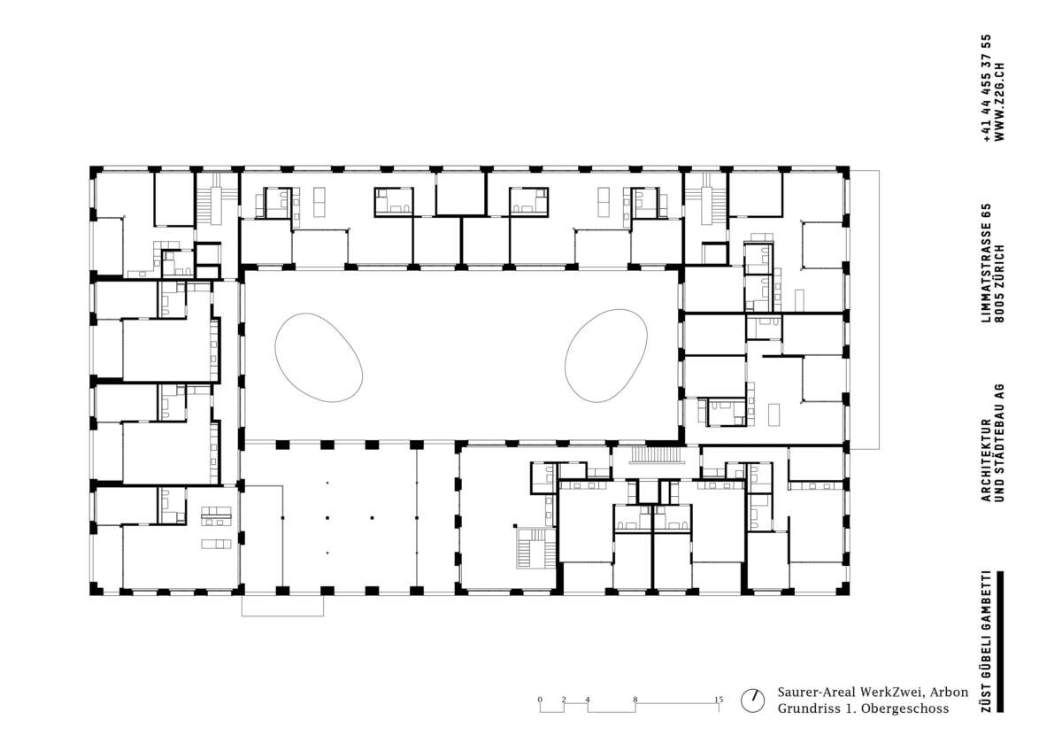
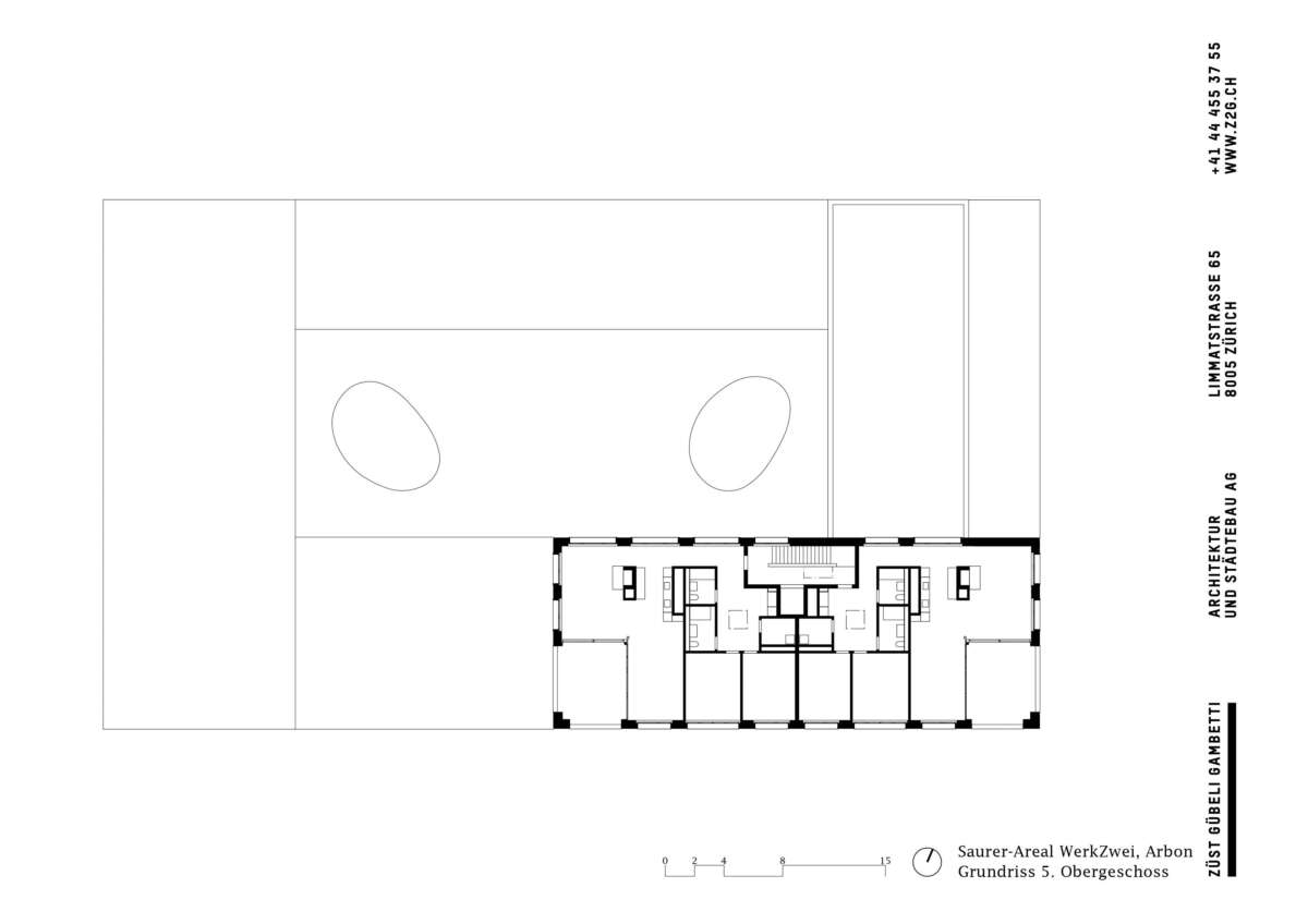
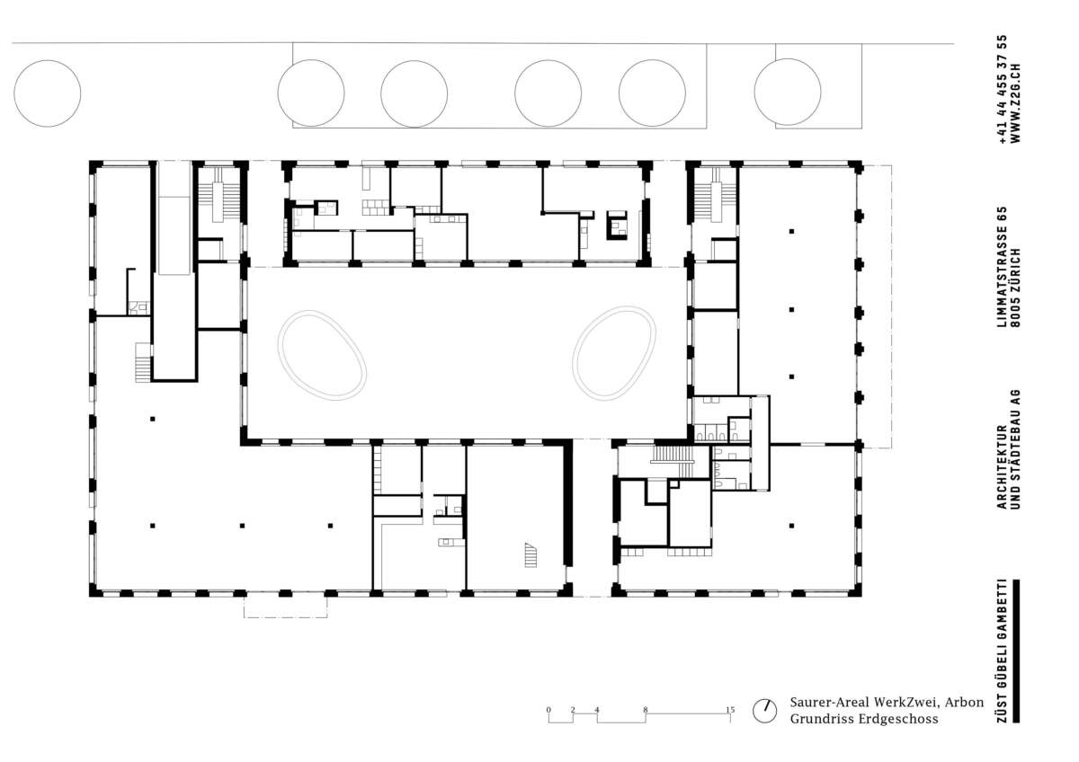
Der Entwurf setzt alles daran, das vormals abgeschottete Areal an die Stadt anzubinden. Die beiden mit Bedacht an das denkmalgeschützte «Presswerk» angedockten Bausteine «Wohnen am Hamelplatz» und «Wohnen Plus» wirken autonom und zugleich als Dreiergespann. Wie eine Zugkomposition schieben sich die Bauten über das langgezogene Baufeld. Dank vielgestaltiger Freiräume und Erdgeschossnutzungen verfügen sie über mobilisierende Kräfte fürs Quartier. Dafür werden an den richtigen Stellen Gassen und Passagen ausgebildet und ebenso die Binnenräume der Neubauten fürs Publikum geöffnet.

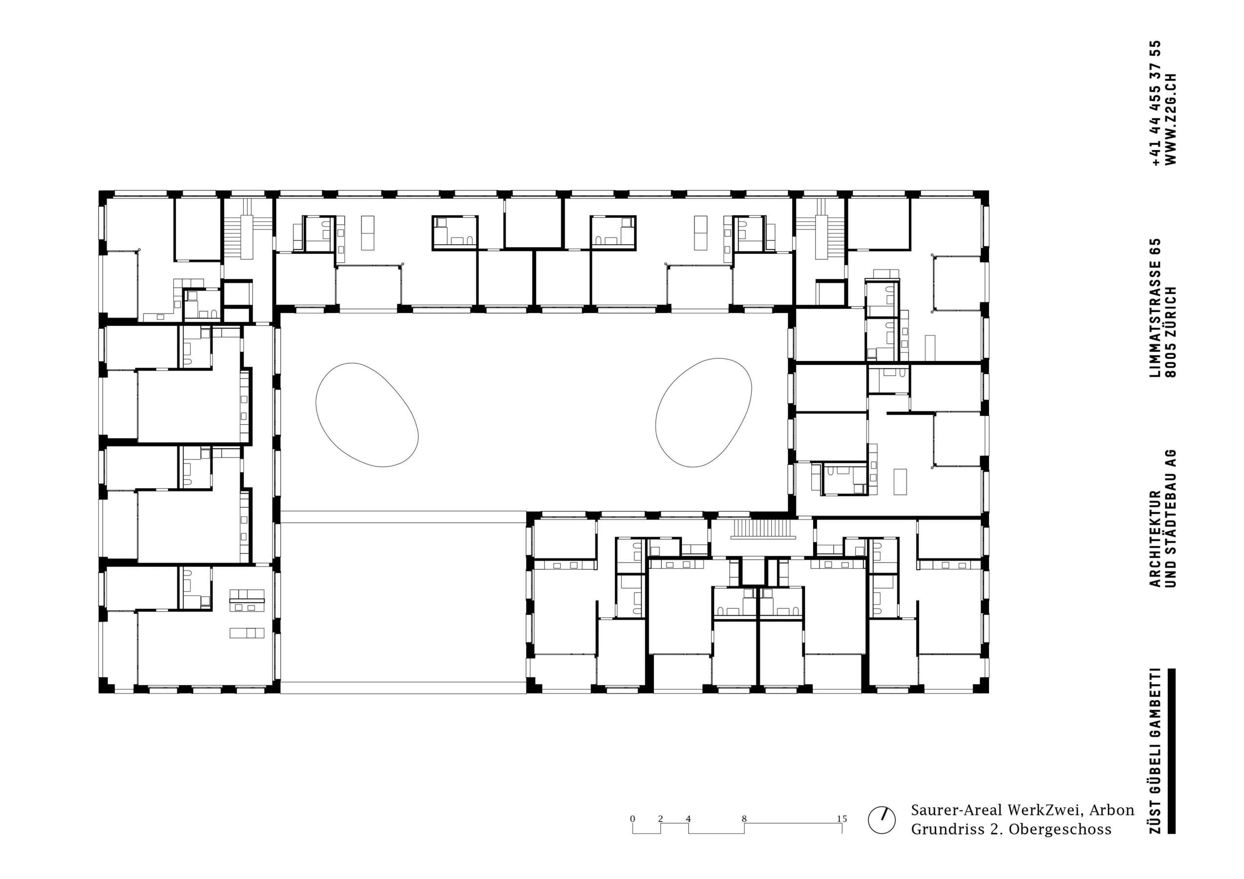
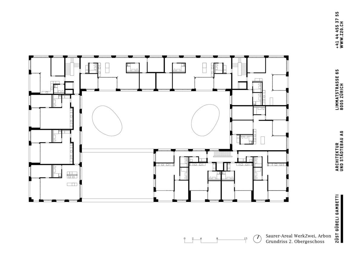
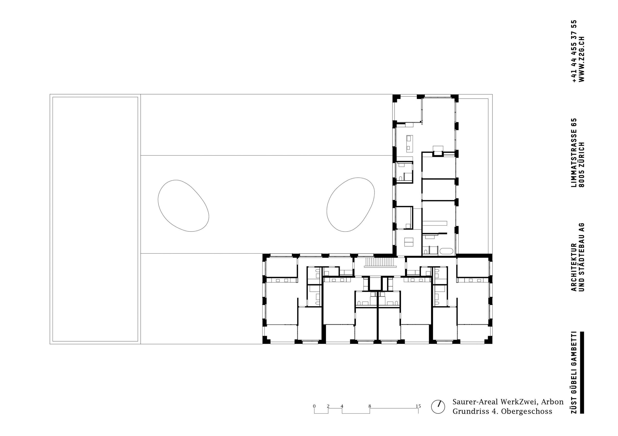
Den Auftakt am Hamel-Platz macht ein sorgsam modellierter Backsteinbau, der genossenschaftliches Wohnen beherbergt. Aus seinem Körper erwächst ein gewichtiger Kopf, der im Dialog mit dem Hamel-Gebäude die Skyline am Bahnhof bestimmt. Als abgestufter Blockrand fasst er in seiner Mitte einen Innenhof, dessen gewerbliche wie gemeinschaftliche Einrichtungen im Erdgeschoss für Belebung sorgen. Das nachfolgende, völlig ausgeweidete «Presswerk» dient als Kulturzentrum. Im Westen zum Park schafft so dann der Winkelbau «Wohnen Plus» eine öffnende Geste und soziale Durchmischung, die auch älteren Menschen ein angenehmes Umfeld bieten will.

Daten
Bauherrschaft
HRS Real Estate AG / Genossenschaft Baufreunde
Auftragsart
Ersatzneubau (Teil von Baufeld A mit Umnutzung "Presswerk" / Neubau "Wohnen Plus" im begleiteten Verfahren)
Planungsdauer
04/2018 — 05/2020
Fertigstellung
04/2021
Adresse
Hamelstrasse 1/3, Hamelplatz 2, 9320 Arbon
Nutzungen
Wohnen, Gemeinschaftsraum, Gewerbe, Bistro, Einstellhalle
Grundstücksfläche
2'316 m2
Geschossfläche
6'605 m2 o.i. | 926 m2 u.i.
Bauvolumen
31'576 m3
Wohnungen
40 Mietwohnungen
Gewerbe
1'445 m2
Baumanagement
HRS Real Estate AG
Totalunternehmer
HRS Real Estate AG
Statik
Innoplan Bauingenieure AG
Bauphysik
Studer + Strauss AG
Elektro
PS Prieto Stüdli engineering GmbH
HLKS
Edwin Keller + Partner AG
Landschaft
Krebs und Herde GmbH / Alge Landschaftsarchitekten
Brandschutz
PS Prieto Stüdli engineering GmbH
Fotografie
Roger Frei
2780