Sanierung und Dachausbau Gründerzeithaus Gotthardstrasse, Zürich

Kategorie
Wohnen
Umbau & Sanierung
Ort
Zürich
Auftragsart
Machbarkeitsstudie
Projektierung
Ausführung
Jahr
2014—2017
Status
Gebautes
Zurück in die Zukunft
Die Transformation eines denkmalgeschützten Hauses diente seiner Erhaltung wie auch der Anpassung an heutige Komfortansprüche. Obendrein entstand im Dachgeschoss neuer Wohnraum.

Gründerzeithäuser haben eine besondere Anziehungskraft: Offenbar wurden damals Massstäbe gesetzt, nach denen heute noch geurteilt wird und die breit verständlich sind. So auch das 1893 erstellte Stadthaus im Enge-Quartier, das als Teil einer Blockrandbebauung von bürgerlicher Wohnkultur und vergangener Handwerkskunst erzählt. Züst Gübeli Gambetti haben dem denkmalgeschützten Haus mittels einer rekonstruierenden Gesamtsanierung und wenigen umformenden Eingriffen zu neuer Würde verholfen.

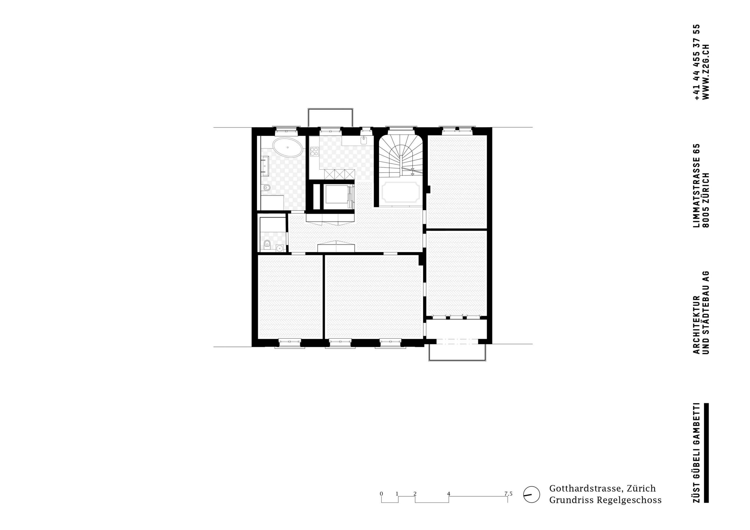
Die Anpassung an heutige Komfortansprüche löste eine tiefgreifende Auseinandersetzung mit der Bausubstanz aus. Die Herausforderung bestand darin, die limitierenden Vorschriften durch Feuerpolizei und Statik in Einklang zubringen mit den Vorstellungen der Denkmalpflege. Das charakteristische Kammersystem des Grundrisses und die Verbindungen zwischen den Zimmern blieben im Prinzip erhalten. Die Zusammenlegung zweier Räume erlaubte den Einbau eines Lifts, der sich selbstverständlich zwischen historische Einbauten und die Küche fügt. Zudem erhielt jede Wohnung ein grosses Bad mit Tageslicht.

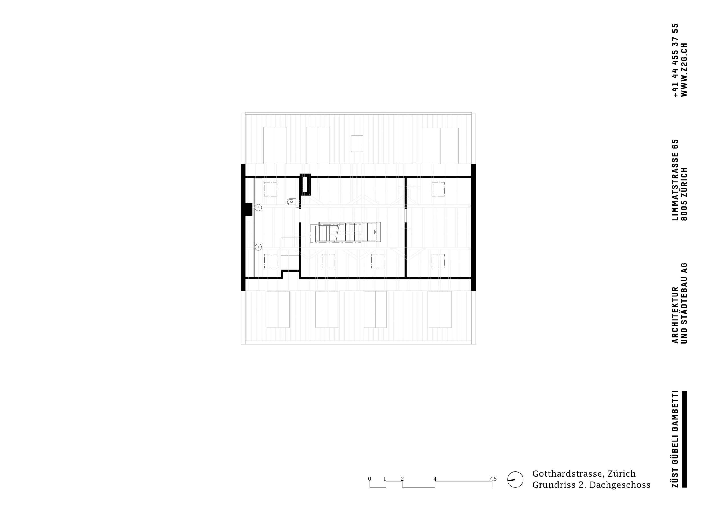
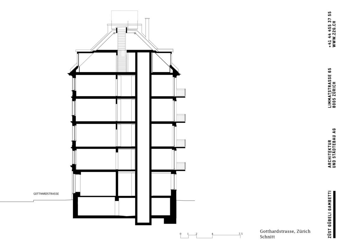
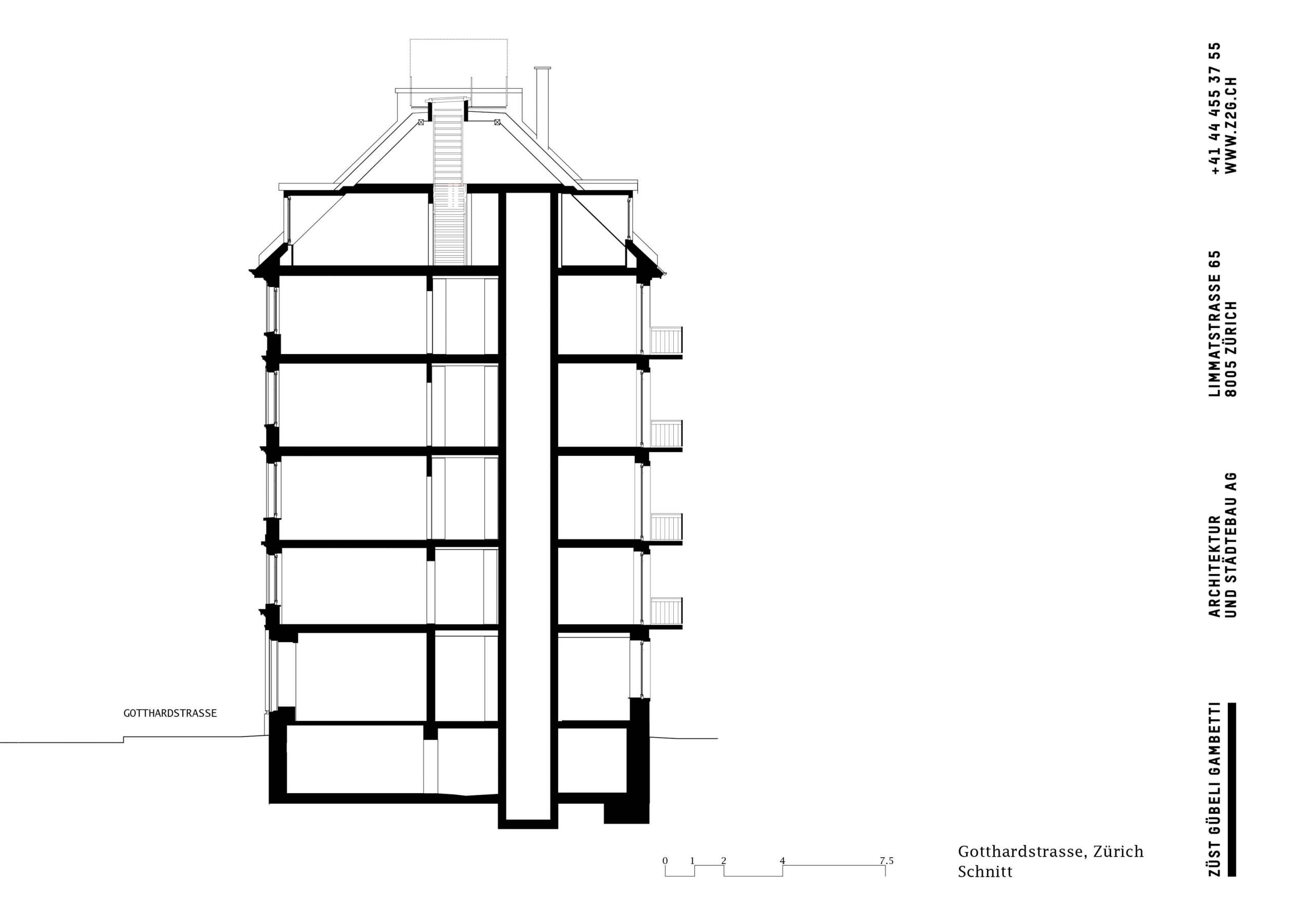
Dramatischer zeigte sich die Aufwertung des Dachgeschosses zu einer Maisonette-Wohnung: Die Konstruktion des Dachstuhls liess kaum Spielraum für den Einbau einer bequemen Treppe und musste mit einer Stütze gestärkt werden. Ebenso galt es, Dachschrägen und sichtbare Holzträger in ein angemessenes, wohlproportioniertes Raumsystem zu überführen. Die Gestaltung des Neuen folgte dabei dem feingliedrigen Charakter des Alten. Desgleichen erfuhren die Sichtbacksteinfassade im Neo-Renaissancestil wie auch die reich profilierten Täfer, Türen und Holzeinbauten im Inneren eine respektvolle Auffrischung, die der alten Handwerkskunst Rechnung trägt. (mc)

 

Daten
Bauherrschaft
ibc Innova Baumanagement & Consulting AG
Auftragsart
Machbarkeitsstudien, Kernsanierung, Dachausbau
Planungsdauer
02/2014-12/2016
Fertigstellung
06/2017
Adresse
Gotthardstrasse 51, 8002 Zürich
Nutzungen
Wohnen
Geschossfläche
1'118 m2 o.i. | 135 m2 u.i.
Bauvolumen
3784 m3
Besonderes
Denkmalschutz
Generalunternehmer
ibc Innova Baumanagement & Consulting AG
Statik
Stefan Ehrhardt
Bauphysik
Kugucak Bauphysik
Elektro
re.com elektroanlagen AG
HLKS
Hans Brun AG
Fotografie
Roger Frei
2330