Revitalisierung Hochhaus «Oerlikon One», Zürich

Kategorie
Wohnen
Mixed Use
Hotel & Gastronomie
Umbau & Sanierung
Ort
Zürich
Auftragsart
Projektentwicklung
Machbarkeitsstudie
Projektierung
Ausführung
Jahr
2019–2025
Status
Gebautes
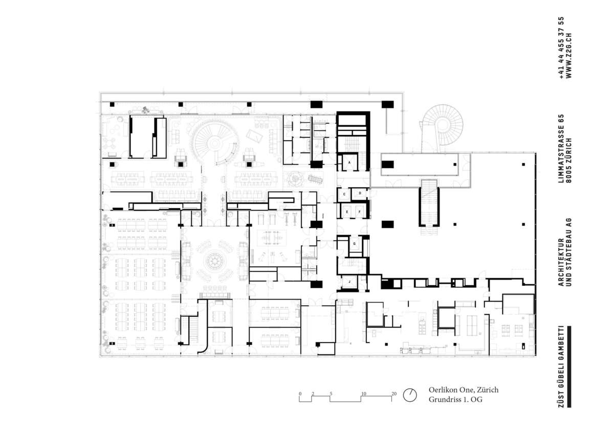
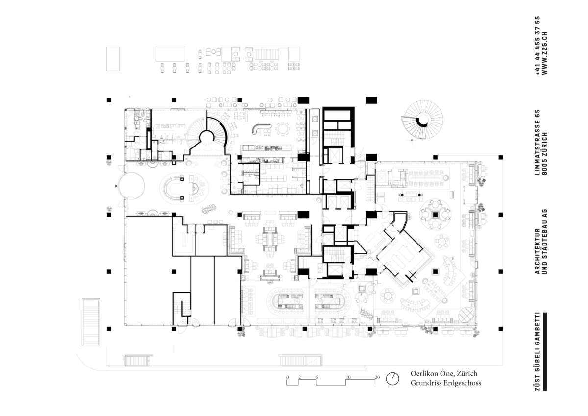
Stadtbalkon für Oerlikon
Ein neues Konzept soll die Bau-Ikone künftig für weitere Nutzerkreise öffnen und mittels eines «Stadtbalkons» auch Mehrwert für die Bevölkerung schaffen.

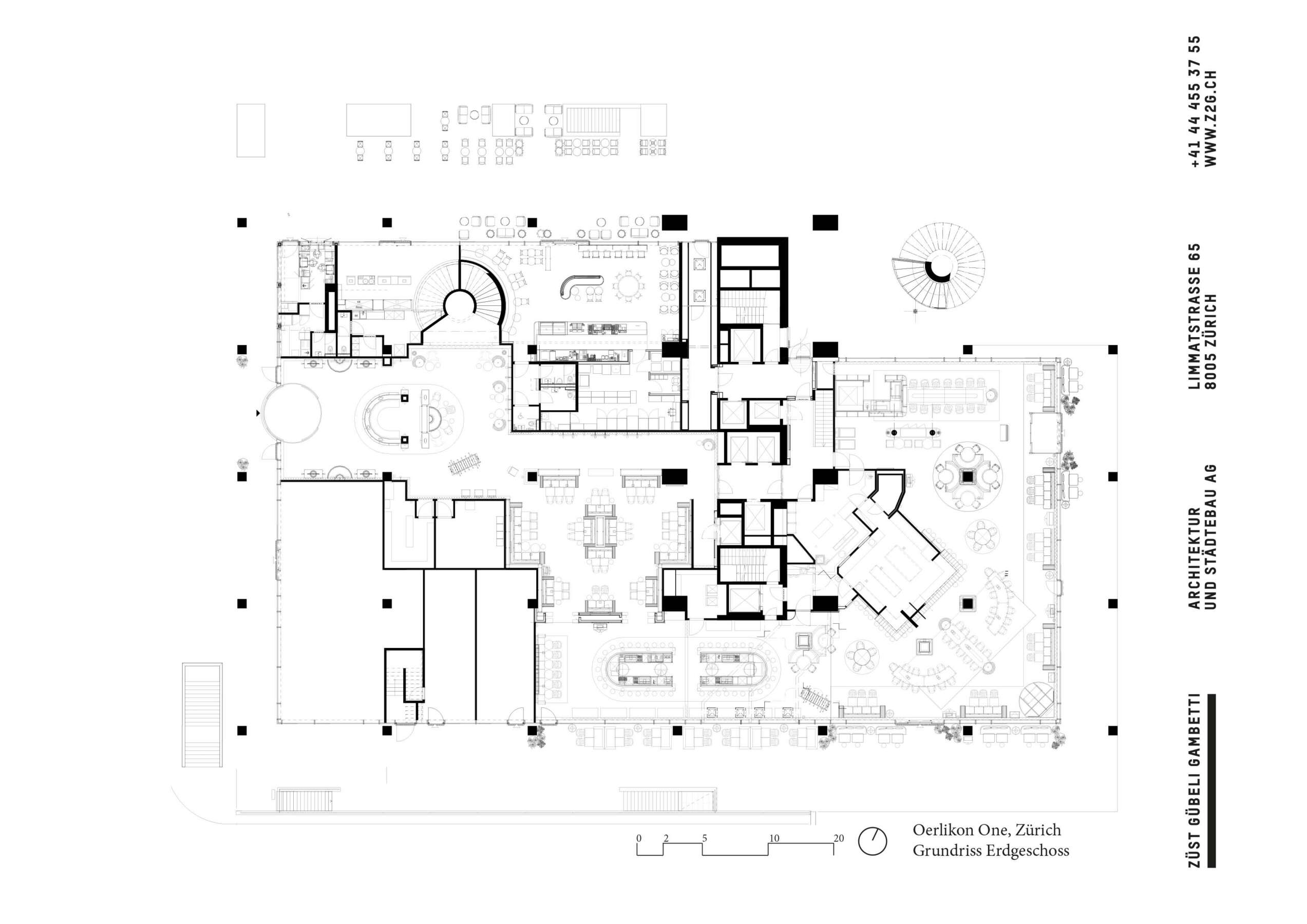
Ein Monument. Eine Bettenhochburg mit 348 Zimmern, die die Bewohner über einen breiten Sockel einsaugt. 1972 unter dem Namen «Hotel International» als höchstes Gebäude der Stadt eröffnet, steht das Swissôtel seit Jahrzehnten unverändert als Markstein des Béton brut da, der aus der Skyline Oerlikons nicht mehr wegzudenken ist. Nach knapp fünfzig Jahren Betrieb ist eine Revitalisierung erforderlich: Es stellte sich die Frage, wie sich Komfort und Funktion verbessern lassen, um veränderten Nutzerbedürfnissen und dem Strukturwandel zu begegnen, der durch die Corona-Krise noch forciert wurde.

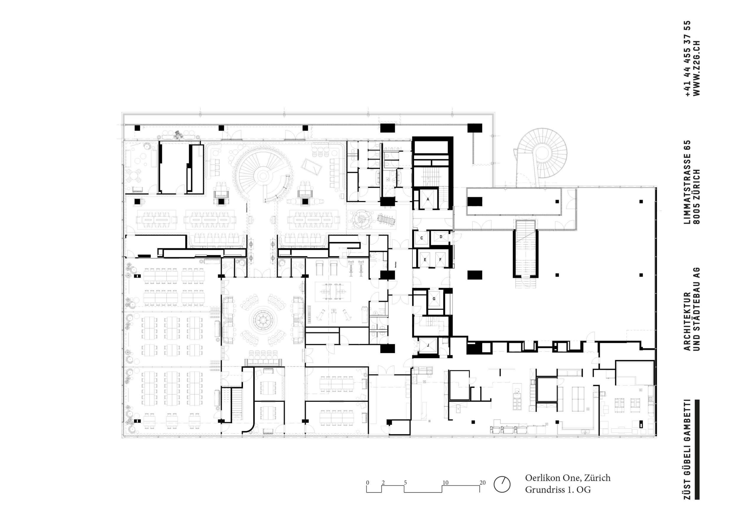
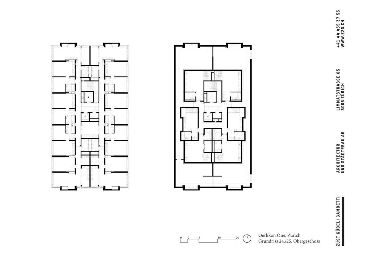
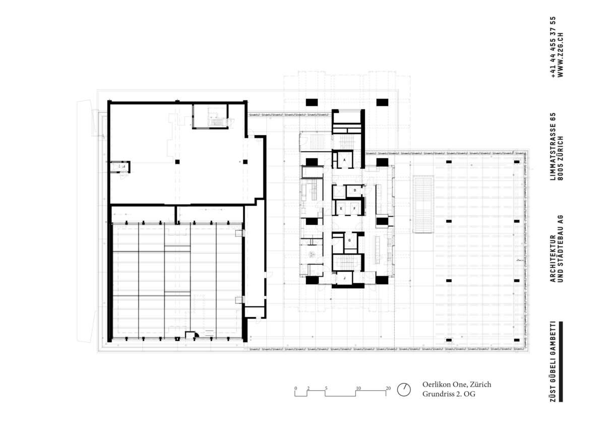
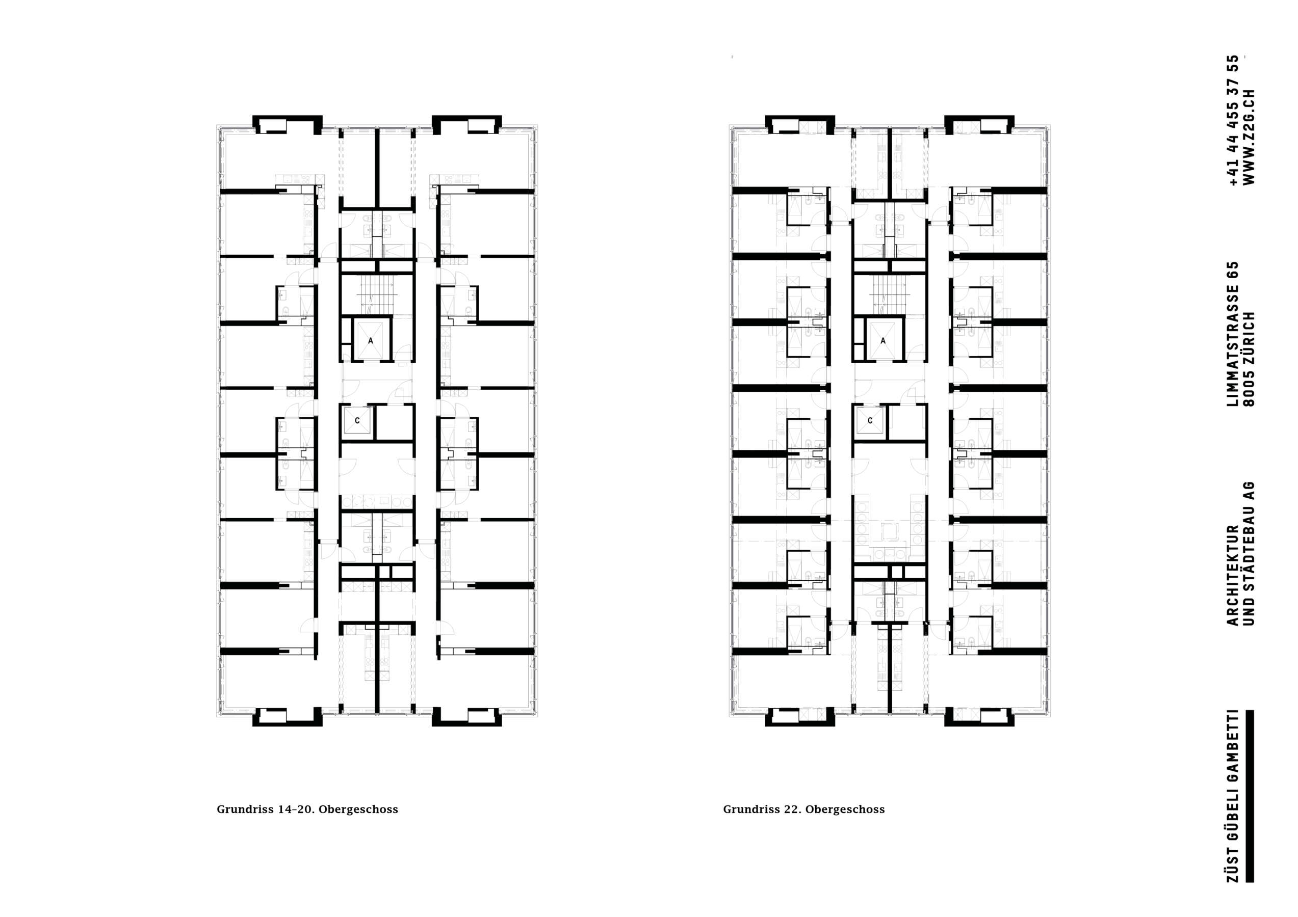
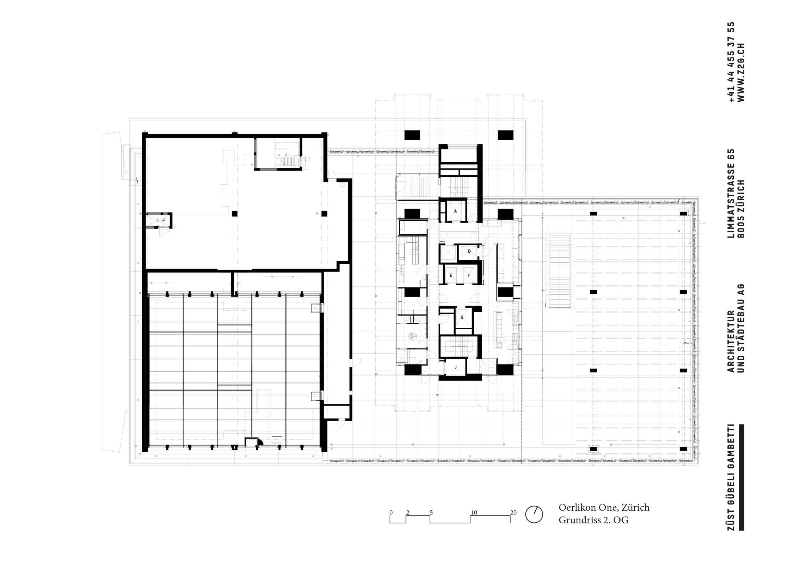
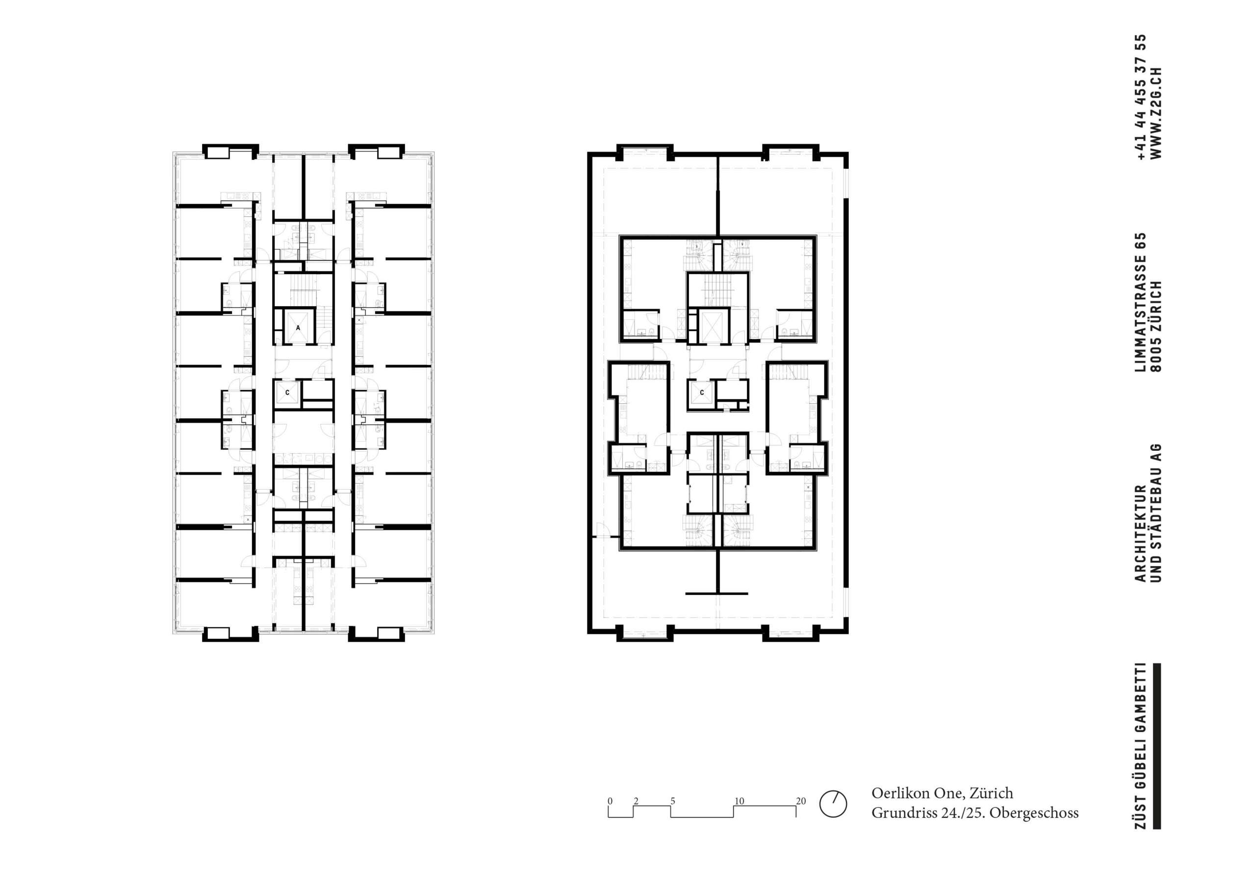
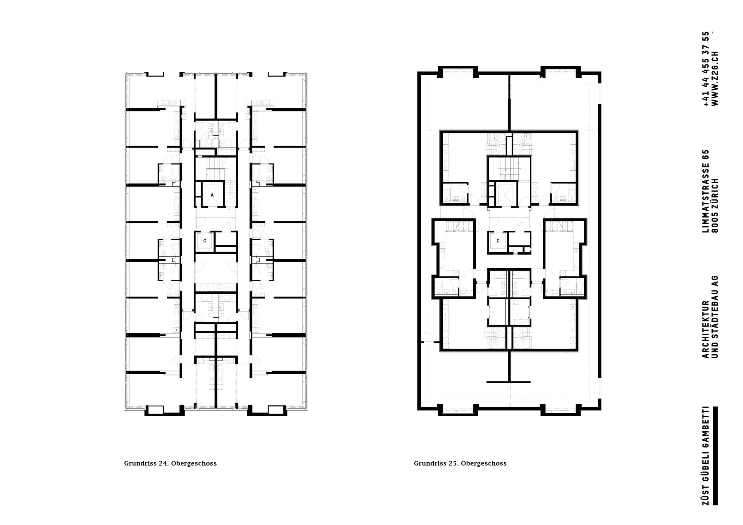
Um tragfähige Strategien zu entwickeln, spannte der Bereich Development von Credit Suisse Asset Managment Global Real Estate mit Halter und Züst Gübeli Gambetti zusammen, wobei die Inventarisierung der Denkmalpflege die Grenzen des Eingriffs absteckte. Das Revitalisierungsprojekt erfindet die Bau-Ikone mittels zweier Leitideen neu: Zum einen soll eine «innere Verdichtung» stattfinden, die das Haus mit weiteren Nutzungen anreichert. Der Hotelbetrieb sowie daran gekoppelte Mischnutzungen im Sockel wie Tagungsräume, Restaurant und Läden bleiben bestehen, wenn auch in reduziertem Umfang. Neu befinden sich ab der 13. Etage 124 kleinere Mietwohnungen – mehrheitlich 1,5- und 2,5-Zimmerwohnungen, Mini Lofts und Triplex-Wohnungen – die für einen breiten Bewohnermix sorgen.

Ein Programm, das sonst mehrere Bauten braucht, ist so in einem einzigen Gebäude vereint. Dabei kann das Nebeneinander zum Miteinander werden – etwa in diversen Gemeinschaftsräumen oder auf dem «Stadtbalkon», wo sich Hotelgäste, Bewohner und Besucher eine imposante Aussichtsterrasse teilen. Die Bevölkerung erhält direkt vom Bahnhofsplatz aus über eine einladende Treppe via Loggia im ersten Stock Zutritt zum «Stadtbalkon», der mit einer gedeckten Pergola auch für Anlässe offensteht. Die Fassade sowie dreibündige Grundrissanlage bleiben indes als «hervorragende Zeugen der Nachkriegsmoderne» im originalen Erscheinungsbild erhalten. (mc)

Daten
Bauherrschaft
UBS Fund Management (Switzerland) AG
Auftraggeber
Halter AG, Renovationen
Architektur Bestand
Fred A. Widmer
Realisierung Bestand
Karl Steiner AG
Auftragsart
Machbarkeitsstudie, Projektentwicklung, Umbau und Umnutzung
Planung
04/2019–06/2024
Ausführung
03/2022–07/2025
Adresse
Schulstrasse 44 & Hofwiesenstrasse 360, 8050 Zürich-Oerlikon
Nutzungen
Hotel, Seminar, Verkauf, Restaurant, Wohnen, Gemeinschaftsräume
Grundstücksfläche
3‘429 m2
Geschossfläche
18‘500 m2
Nutzfläche
12'600 m2
Wohnungen
124 Micro-, Loft-, Spezial- und Triplexwohnungen
Hotelzimmer
178
Projektentwicklung/TU
Halter AG, Renovationen
Bauingenieur
Henauer Gugler AG
Bauphysik
aundb bauphysik gmbh
HLKS
HL-Technik AG
Gewerbliche Kälte
Baumgartner Kühlanlagen AG
Elektro
Alpha-Plan AG
Brandschutz RDA
Jomos Brandschutz AG
Brandschutz QS
Brandschutzpartner GmbH
Schadstoffsanierung
Carbotec AG
Signaletik
Neuzeichen AG
Türplaner
Plan B Konzept GmbH
Verwaltung
Wincasa
Hotelbetreiber
Mama Shelter
Fotografie
Roland Bernath
5000