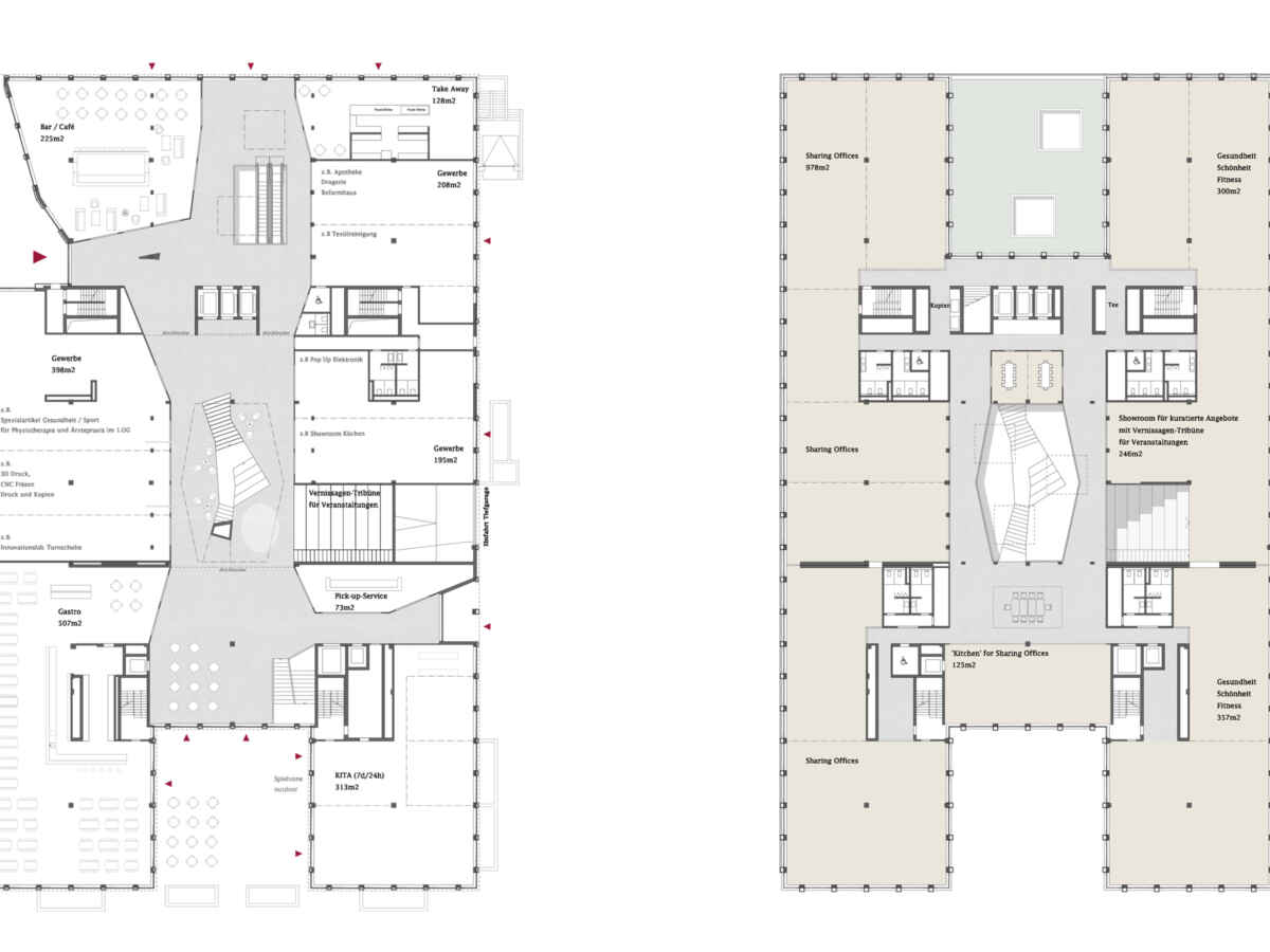
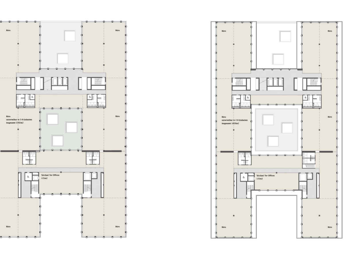
Revitalisierung Bürohaus Zürichstrasse, Dübendorf

Kategorie
Mixed Use
Umbau & Sanierung
Ort
Dübendorf
Auftragsart
Studienauftrag
Jahr
2019
Status
Wettbewerb