Oederlin-Areal, Rieden bei Baden

Kategorie
Städtebau
Wohnen
Ort
Rieden bei Baden
Auftragsart
Studienauftrag
2. Rang
Jahr
2015
Status
Wettbewerb

Unser Beitrag zum Projektwettbewerb Oederlin-Areal in Baden wurde leider im letzten Rundgang ausgeschieden, das Preisgericht würdigt aber die Qualitäten des Projekts:
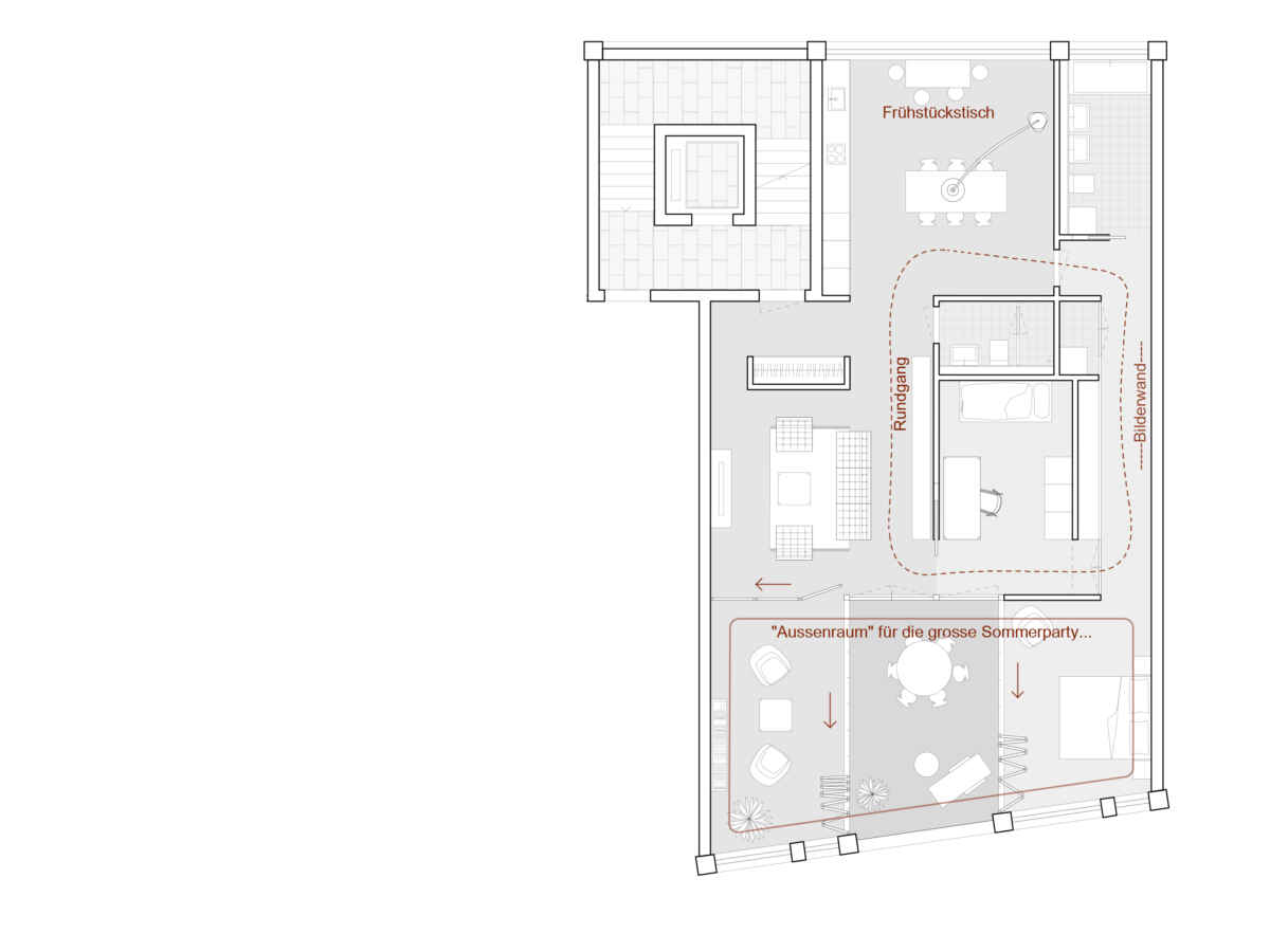
“Die beiden Häuser entlang der Landstrasse haben wohltuend eine identische, somit nicht hierarchisierende Gebäudehöhe. Aus der Not – der grossen Schallimmissionen durch die Landstrasse – machen die Verfasser eine Tugend. Bei der inneren Wohnungsorganisation nehmen sie diese Randbedingung zum Anlass, um eine «Erfindung» zu wagen. Alle Zimmer und ein Anteil des Wohnraumes sind nach Süden ausgerichtet. Das führt dazu, dass bis vier Zimmer über eine Loggia belichtet werden. Die östlichen und westlichen Abschlüsse zwischen Zimmer und Loggia können geöffnet und so die Wohnung flexibel aufgeteilt werden. Vervollständigt wird die Disposition durch einen Rundlauf mit «Bilderwand». Wahrhaft spezielle, auch attraktive Räume.»

«Erscheinung und Materialisierung der beiden Baubereiche sind sehr angemessen und gut vorstellbar. Die rückwärtig liegenden Volumen bilden den Hintergrund für die Flussfront, die eher einem industriellen Gestus zugeordnet ist. Zur Fabrikstrasse
bilden die beiden grossen Häuser einen eingeschossigen Sockel mit dem Öffentlichkeitsgrad entsprechender Nutzung. Insgesamt ist die Erscheinung der Bebauung glaubwürdig und angemessen, die Grundrisslösungen zeugen von einem erfrischend unkonventionellen Umgang mit den ortsspezifischen Eigenschaften und Randbedingungen.»