Ersatzneubau Attenhoferstrasse, Zürich

Kategorie
Wohnen
Ort
Zürich
Auftragsart
Machbarkeitsstudie
Generalplanung
Projektierung
Ausführung
Jahr
2017—2022
Status
Gebautes
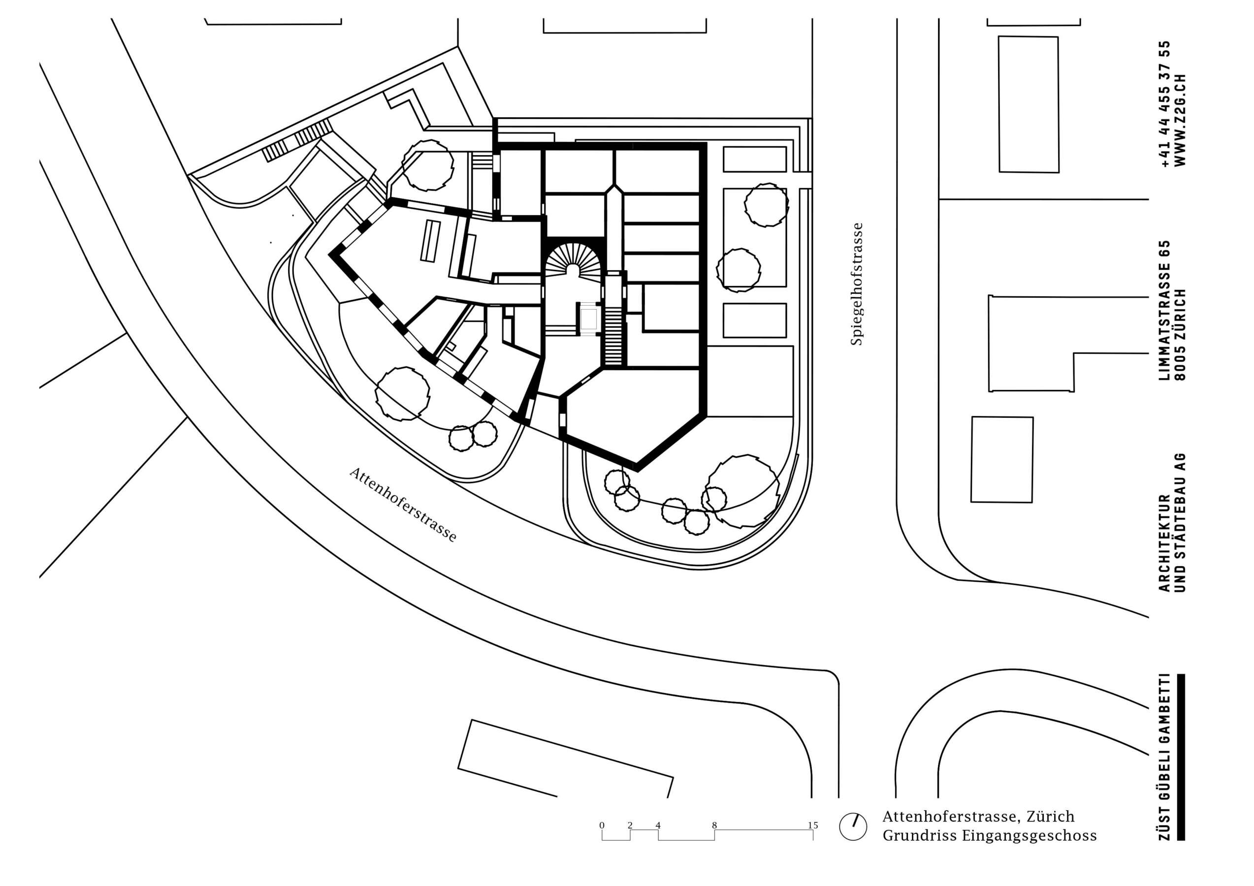
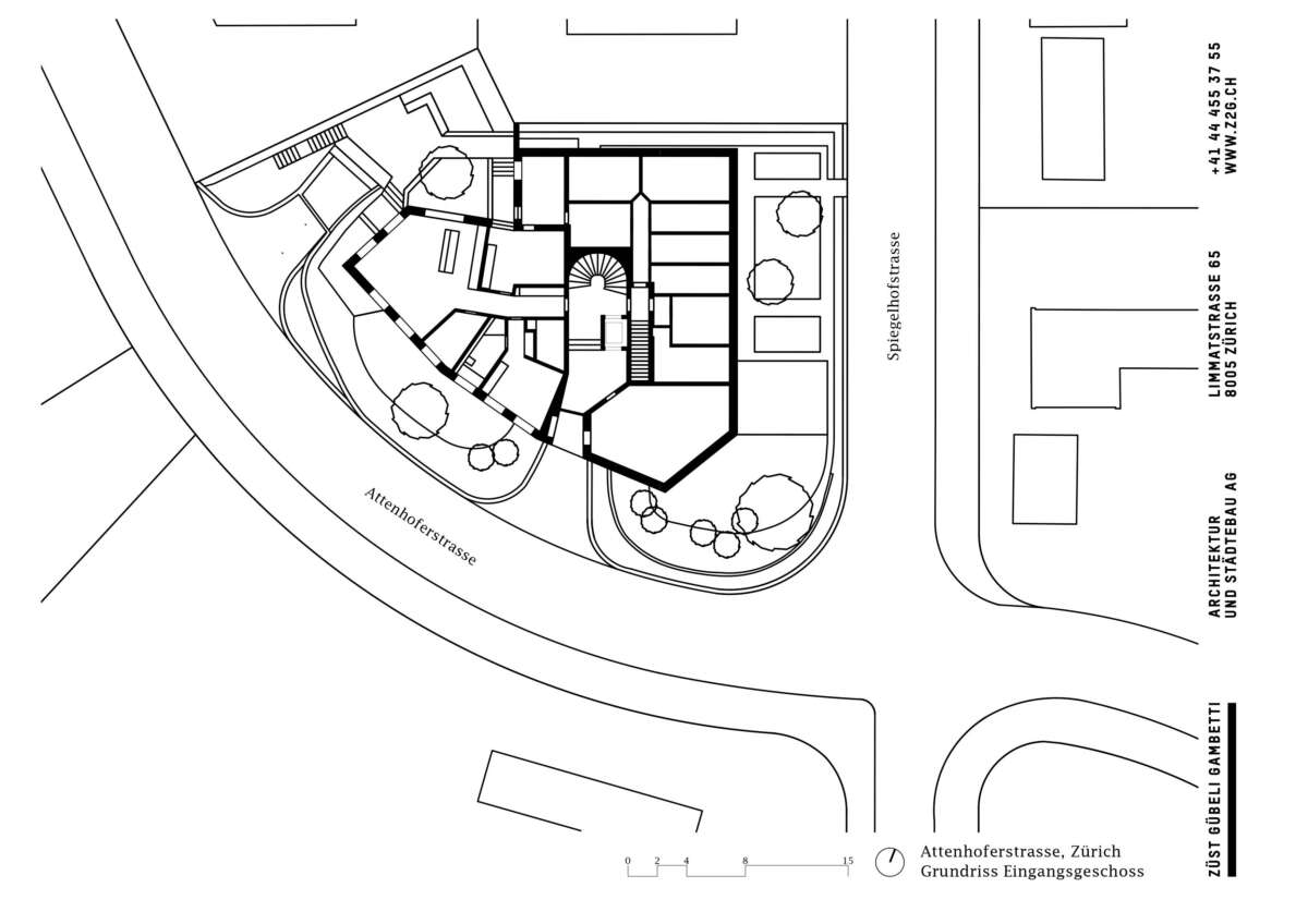
Zaungast am Zürichberg
Die gestaffelte Kontur des Stadthauses folgt dem Strassenverlauf, um mittels kraftvoller Geste die Situation am Kreisel zu überblicken. Innen finden sieben Wohnungen spezieller Prägung Platz.

Fluntern ist geprägt von Gründerzeitvillen und Mehrfamilienhäusern des 20. Jahrhunderts: viel Grün und Weitsicht machen seinen Reiz aus. Neuerdings wird die Kreuzung oberhalb des Kinderspitals von einem eigenwilligen Backsteinbau besetzt. Er ersetzt ein baufälliges Dreifamilienhaus aus den 1930ern. Dem geschwungenen Strassenverlauf folgend, drängt sich der neue Zaungast mal schmal-, mal breitseitig ins Blickfeld, um am Kreisel besondere Präsenz zu markieren. Ein Staffelgeschoss schöpft den Spielraum in der Höhe aus: Das Haus ist baurechtlich aus zwei Teilen modelliert, die – um ein Geschoss versetzt – sich die Hangkante zunutze machen.

Tatsächlich fügt sich die freie Figur wie ein Passstück in die lockere Bebauung ein. Erkerartig vorspringende Loggien schaffen einen allseitigen Bezug zur Nachbarschaft. Ebenso entstehen Aussenbereiche auf unterschiedlichen Niveaus. Den Auftakt ins Innere macht eine hohe Eingangshalle, in die man via Breitseite gelangt. Die beiden durch die Treppe verwobenen Hausteile beherbergen insgesamt sieben Wohnungen spezieller Prägung. Dabei bringt die polygonale Grundform in Kombination mit einem sorgsam assemblierten Kammersystem und offenen Zonen spannende Raumkonstellationen hervor.

Die den Wohnräumen teils vorgelagerten, teils eingeschriebenen Logenplätze offerieren nicht nur bildhafte Aussichten, sondern auch Diskretion. Punktuelle Blumengitter werden sie bald in lauschige Lauben verwandeln und an die beschauliche Wohnarchitektur der 1950er erinnern. Überhaupt bediente man sich Aussen bewusst einer traditionellen Sprache: Angesichts der heterogenen Nachbarschaft verhält sich der Baukörper changierend, nicht nur, was die Vagheit seiner Kontur anbelangt. In seiner Erscheinung greift er zurück auf vertraute Elemente wie Lochfassade, tektonische Gliederung, Erker sowie dauerhaften Klinkerstein. (mc)

Daten
Bauherrschaft
FG Promotion VIII AG
Auftragsart
Machbarkeitsstudie, Ersatzneubau
Planungsdauer
12/2016-11/2021
Fertigstellung
05/2022
Adresse
Attenhoferstrasse 21, 8032 Zürich
Nutzungen
Wohnen, Einstellhalle
Grundstücksfläche m2
1'106 m2
Geschossfläche m2
1‘408 m2 o.i. | 741 m2 u.i.
Bauvolumen
6'523 m3
Wohnungen
7 Eigentumswohnungen
Bauherrenvertretung
Fundamenta Group (Schweiz) AG
Generalplanung
Züst Gübeli Gambetti Generalplanung AG
Baumanagement
Befair partners AG
Landschaft
Hager Partner AG
Bauphysik
EK Energiekonzepte AG
Statik
Marti + Dietschweiler AG
Elektro
Phase Grün Elektroplanung GmbH
HLKS
VC Engineering AG
Brandschutz
Müller+Müller AG
Verkehr
Enz & Partner GmbH
Farbe & Material Whg 2.1
good interiors gmbh
Fotografie
Roger Frei
3810