Lycée Français de Zurich, Dübendorf

Kategorie
Bildung & Forschung
Hotel & Gastronomie
Ort
Dübendorf
Auftragsart
Projektentwicklung
Studien
Gestaltungsplan
Projektierung
Ausführung
Jahr
2012—2016
Status
Gebautes
Viel Schule für wenig Geld
Das Grundstück erwies sich als knapp, ebenso waren es die Finanzen der privaten Tagesschule. Dennoch galt es einen Neubau für 1000 Schüler zwischen drei und achtzehn Jahren zu realisieren.

Um es vorweg zu nehmen: Am Ende kostete der Minergie-Eco-Bau pro Kind knapp die Hälfte der durchschnittlichen Gebäudekosten öffentlicher Schulen.* Zweidrittel der Minderkosten sind dabei den gesenkten Standards geschuldet. Ein Drittel dem optimierten Zusammenwirken aller Planer. Speziell war auch der Einbezug der Nutzer: Ein engagiertes Elternkomitee und Rektorat sowie Kinder und Lehrer haben am Entwurfsprozess mitgewirkt. Dies machte ihn zwar zeitaufwändiger, aber umso schöner, wenn sich am Schluss alle mit ihrer Schule identifizieren.

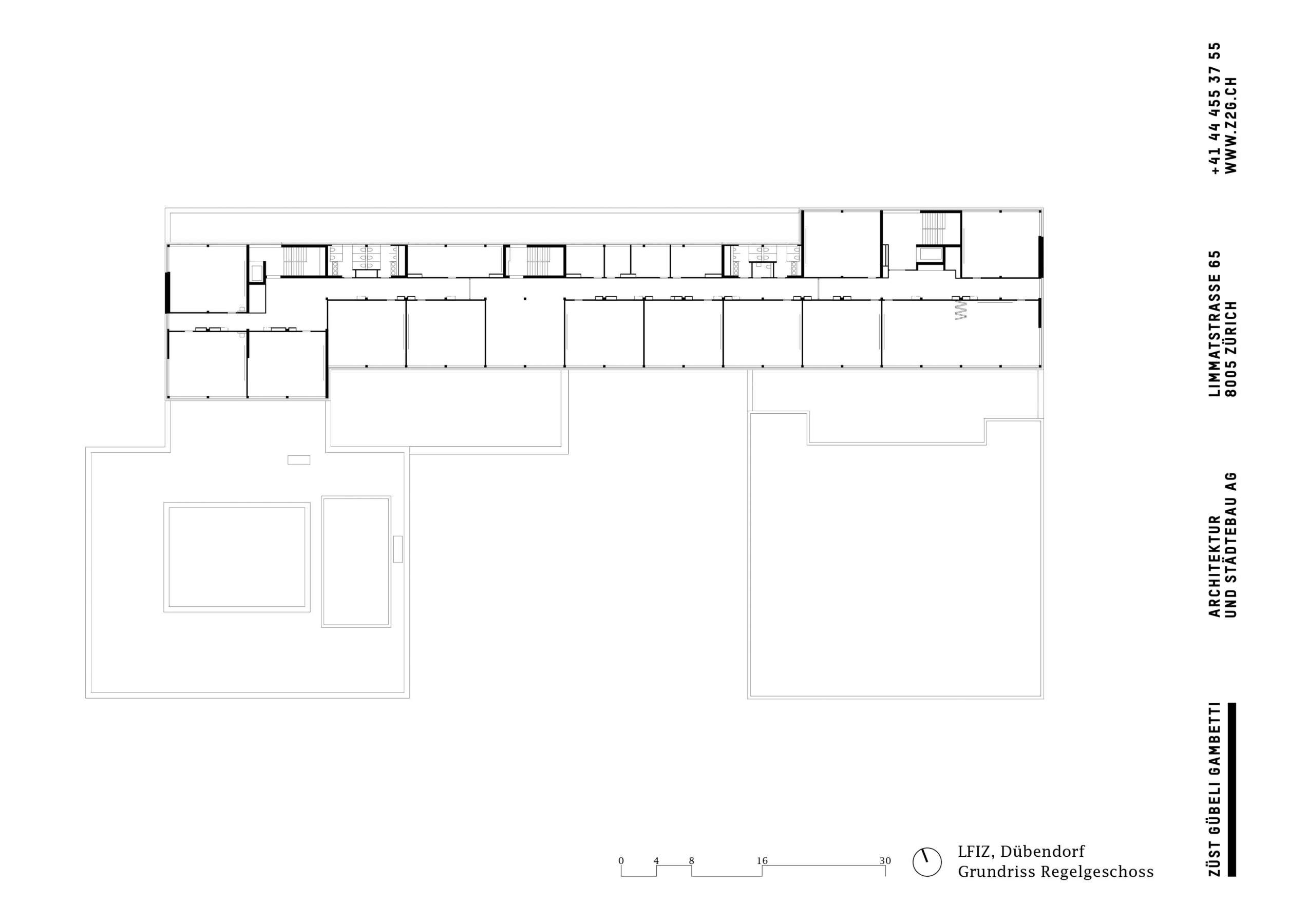
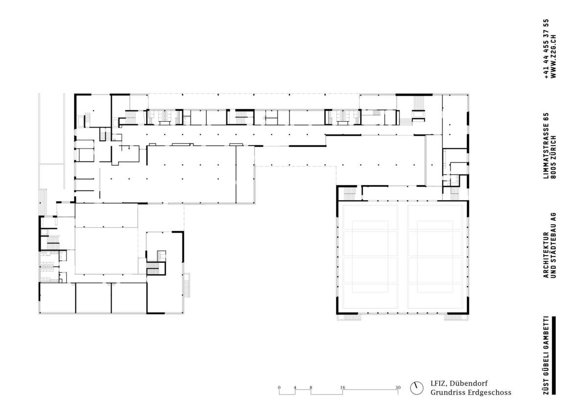
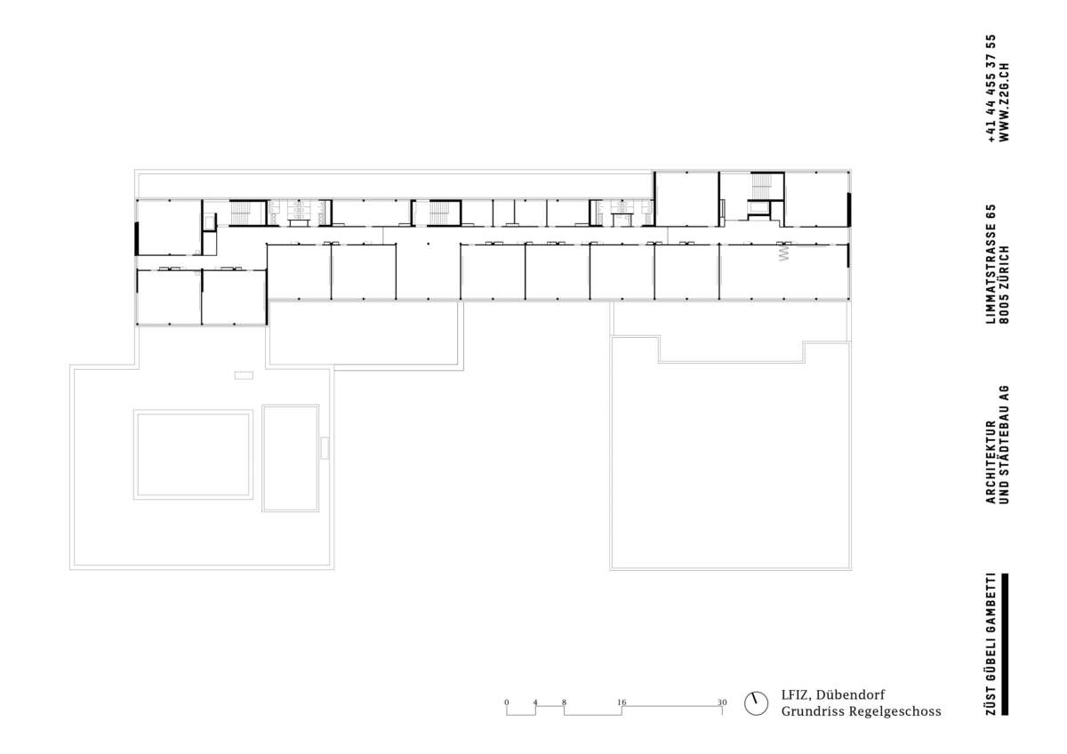
Die volumetrische Lösung für das stattliche Raumprogramm – es umfasst Kindergarten bis Gymnasium sowie Mensa und Doppelturnhalle – lag in seiner Fügung und Schichtung zu einer Hufeisenform. Entstanden ist ein Ensemble, aus dessen Höhenspiel und Verschränkungen sich vielseitige Freiräume auf unterschiedlichen Niveaus ergeben. Gleichzeitig wird der Massstab des stattlichen Baus gebrochen, ohne aber seine Rolle zu schmälern. Dafür sorgt auch die Kopfausbildung des Mittelbaus, die an der Ecke des Kreisverkehrs städtebauliche Präsenz markiert.

Das dreiteilige Raumgefüge umarmt einen zentralen Aussenraum, der zwischen den einzelnen Bereichen vermittelt. Während in den oberen Etagen des fünfgeschossigen Mitteltrakts die Klassenzimmer zweibündig untergebracht sind, finden sich im Erdgeschoss alle übergeordneten Einrichtungen sowie Foyer und Mensa. Letztere wird im Südwesten vom Kindergarten flankiert. In Reminiszenz an ein Kloster mit Innenhof und Wandelhalle bietet er den Kleinsten eine überschaubare eigene Welt. Sein volumetrisches Äquivalent findet er in der Doppelturnhalle vis-à-vis, die dank separatem Zugang auch den örtlichen Vereinen offen steht. (mc)

 

*Basis: Basler + Hofmann: Kostenklarheit 2011, Benchmarkstudie Schulen/Betreuung (BKP 2/Schüler)
Daten
Bauherrschaft
Lycée Français de Zurich
Auftraggeber
Losinger Marazzi AG
Auftragsart
Projektentwicklung, Neubau
Planungsdauer
2012-2015
Fertigstellung
06/2016
Adresse
Zukunftstrasse 1, 8600 Dübendorf
Nutzungen
Bildung, Sport, Gastronomie, Einstellhalle
Geschossfläche
15'700 m2
Nachhaltigkeit
Minergie Eco
Totalunternehmer
Losinger Marazzi AG
Statik
BG Ingenieure + Berater AG
Bauphysik
Mühlebach Partner AG
Elektro
Thomas Lüem Partner AG
HLKS
Kalt + Halbeisen Ingenieurbüro AG
Landschaft
w+s Landschaftsarchitekten AG
Fotografie
Roger Frei
1410