Kernsanierung Bürogebäude Genferstrasse, Zürich

Kategorie
Arbeiten
Umbau & Sanierung
Ort
Zürich
Auftragsart
Machbarkeitsstudie
Projektierung
Ausführung
Jahr
2013—2018
Status
Gebautes
Wahlverwandtschaften
Um den Charakter des Ursprünglichen beizubehalten, wurden die notwendigen Anpassungen zweier Bauten im zeittypischen Geist, aber unter vermittelnden Gesten zum Kontext ausgeführt.

Seit kurzem reihen sich zwei Zeitzeugen der Moderne mit neu erstarktem Selbstbewusstsein in den Gründerzeitkontext des Weissen Schlosses ein. Es galt, eine nüchterne Lochfassade aus den 1940ern sowie einen von Werner Stücheli 1970 erstellten Anbau mit funktionalistischer Bandfassade zu einer repräsentativen Einheit zusammenzuführen. Seit längerem hatten Unregelmässigkeiten der Grundrisse eine effiziente Nutzung der in die Jahre gekommenen Bausubstanz erschwert.

Zusammen mit dem technischen Erneuerungsbedarf drängte dies die Eigentümerschaft, Züst Gübeli Gambetti verschiedene Szenarien zur Sanierung der Häuser erarbeiten zu lassen. Aufgrund der neuen BZO, die die Konturen des ganzen Blockrandensembles als schützenswert einstufte sowie angesichts der ökonomischen Realität, die bei einem Ersatzneubau nur mehr eine mindere Geschossigkeit erlaubte, fiel der Entscheid auf eine Gesamtsanierung. Dabei sollte der jeweils typische Charakter der Bauten sichtbar bleiben.

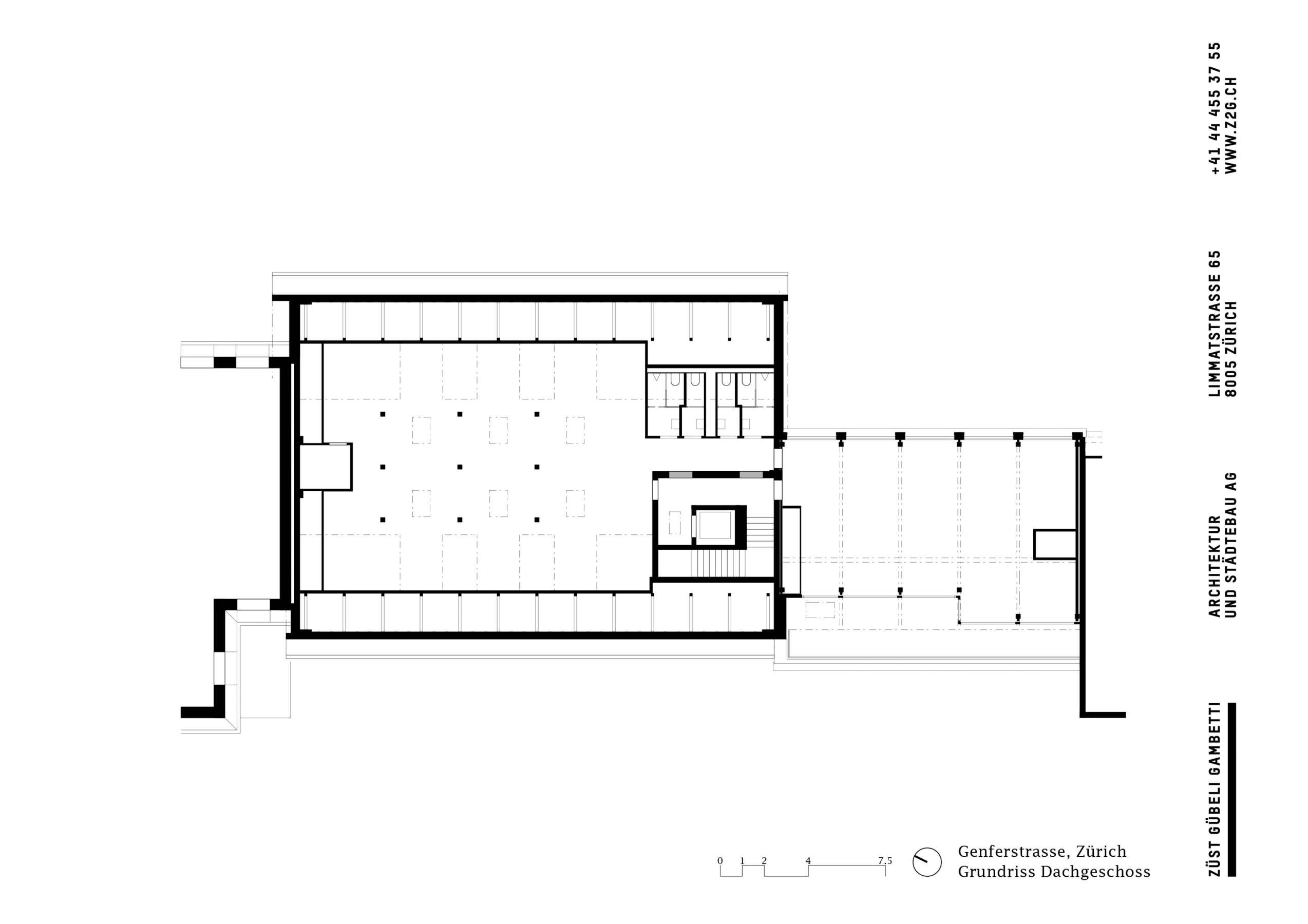
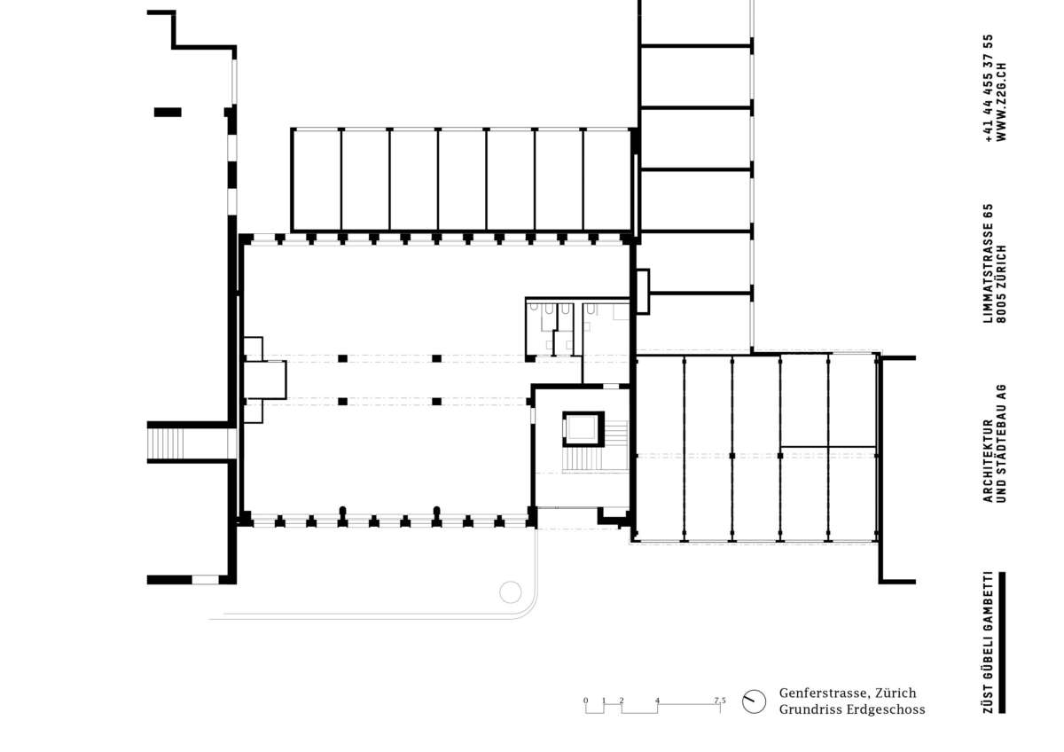
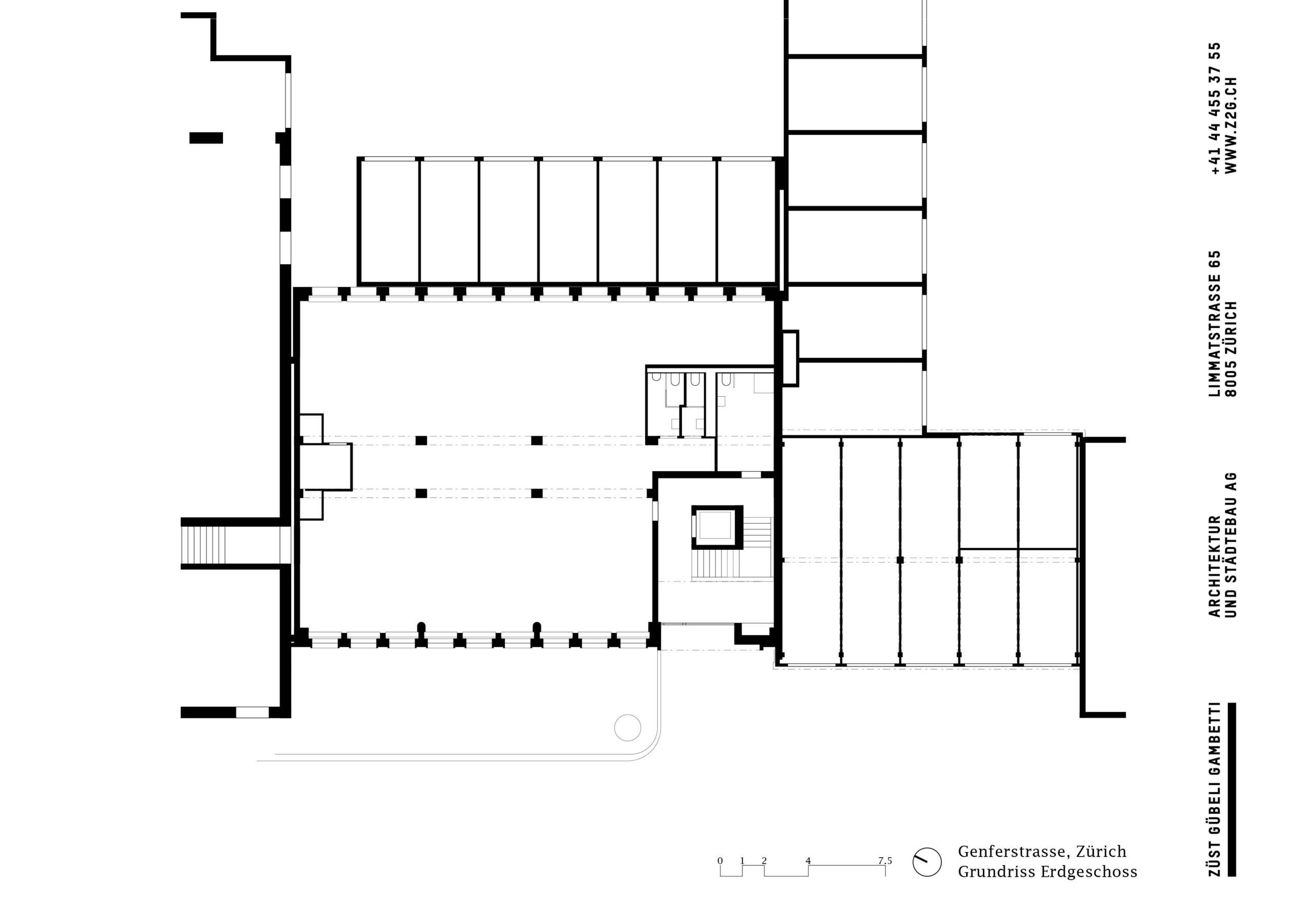
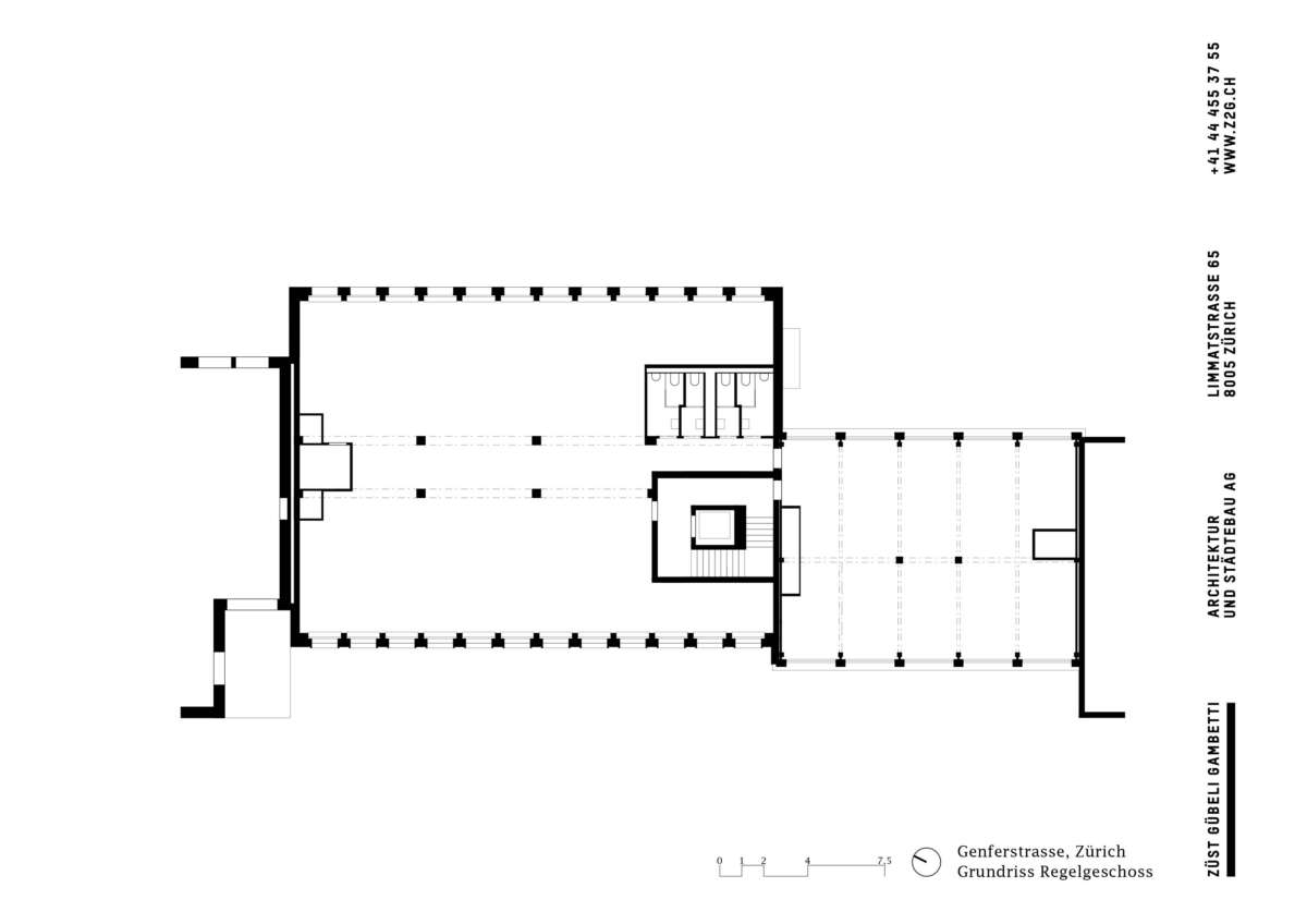
Ihre innere Entrümpelung ging einher mit der Verlegung der Treppe an die Nahtstelle der beiden Häuser. Neu gibt es eine zentrale Halle, die sich als sorgfältig materialisierte Bewegungsachse vertikal über zwei Etagen öffnet. Durch diesen Kniff sowie neu eingeführte Gesimse gelingt es, eine optische Einheit der Gebäude zu erwirken. Darüber hinaus wird mit der Überhöhung der Eingangspartie der klassische Sockel paraphrasiert, um sich im illustren Umfeld zu behaupten. Loch- und Bandfassade erfahren auch über ihre Materialisierung eine interpretierende Angleichung. So entsteht bei aller Verschiedenartigkeit eine elegante neue Hülle, die zugleich zur bildhaft-formalen Einbettung in die Umgebung beiträgt. (mc)

Daten
Bauherrschaft
Zürich Lebensversicherungs-Gesellschaft AG, vertreten durch Zurich Invest AG
Auftragsart
Machbarkeitsstudie, Direktauftrag
Planungsdauer
06/2013-06/2018
Fertigstellung
06/2018
Adresse
Genferstrasse 6, 8002 Zürich
Nutzungen
Büro
Grundstücksfläche
1'260 m2
Geschossfläche
3'781 m2 o.i. | 354 m2 u.i.
Bauvolumen
11'831 m3
Nachhaltigkeit
Minergie
Baumanagement
Coneco AG
Statik
Ernst Basler + Partner AG
Bauphysik
EK Energiekonzepte AG
Elektro
Thomas Lüem Partner AG
HLKS
Polke, Ziege, von Moos AG
Fotografie
Roger Frei / Z2G Archiv
1970