Gretag-Areal, Regensdorf

Kategorie
Städtebau
Mixed Use
Ort
Regensdorf
Auftragsart
Wettbewerb
2. Rang
Jahr
2014
Status
Wettbewerb

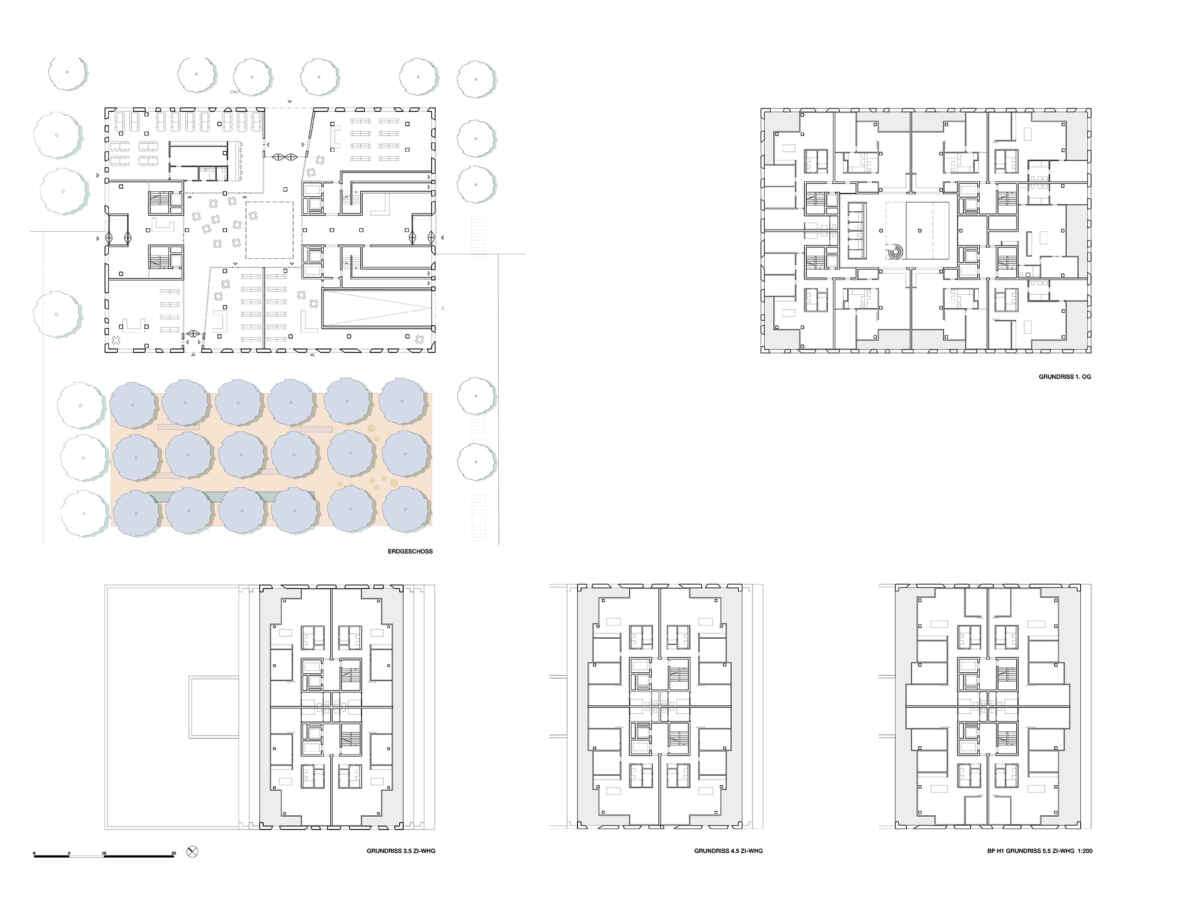
Unser Konzept arbeitet bildhaft mit starken Formen: Ein Hof, ein Mäander und ein Hochhaus. Es sind einfache und reine Typologien wie aus der Hand des Bildhauers. Die Klarheit des Bebauungskonzeptes mit drei unterschiedlichen Typologien unterstützt das städtebauliche Konzept der Baufelder entlang des „Parkways“. Die Unterschiedlichkeit schafft eine starke Identität für jedes Baufeld innerhalb des neuen Gebietes und trägt dazu bei, einen belebten, vielfältigen und flexiblen Stadtteil zu erschaffen.

Die Häuser widerspiegeln die gewählten Wohnkonzepte. Beim lärmbelasteten Standort vom Baufeld G wird das Wohnen um einen gemeinsamen ruhigen Innenhof organisiert. Eine grüne und ruhige Oase bildet ein herausragendes Qualitätsmerkmal des Wohnens. Jeder einzelne Raum partizipiert am introvertierten Hof oder am grünen „Parkway“.

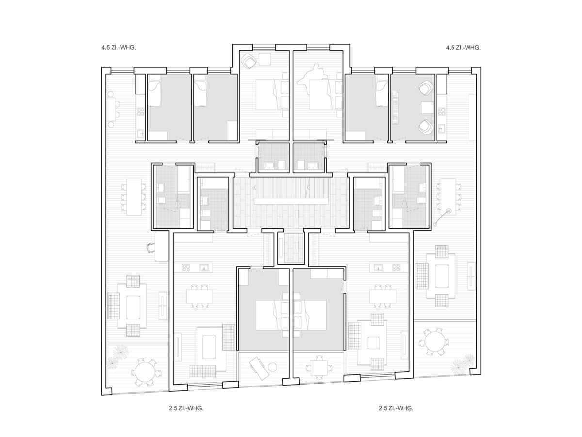
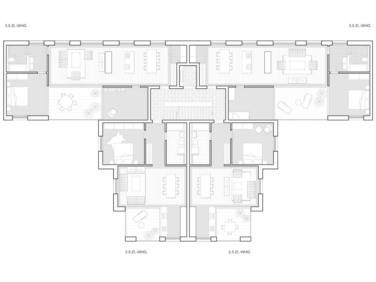
Beim Baufeld F definiert ein Mäander zusammen mit dem Bestand zwei Längshöfe in der Dimension der Strassen. Diese sind untereinander vernetzt mit grosszügigen Durchbrüchen und Durchgängen. Das Wohnen orientiert sich jeweils mehrheitlich auf beiden Längsseiten mit grossen durchgehenden Wohnungen und einseitig orientierten Wohnungen mit grosser Fassadenabwicklung. Das Wohnen lebt von der Qualität der unterschiedlichen Längsräumen, unterstützt von der guten Ost-West- Orientierung.
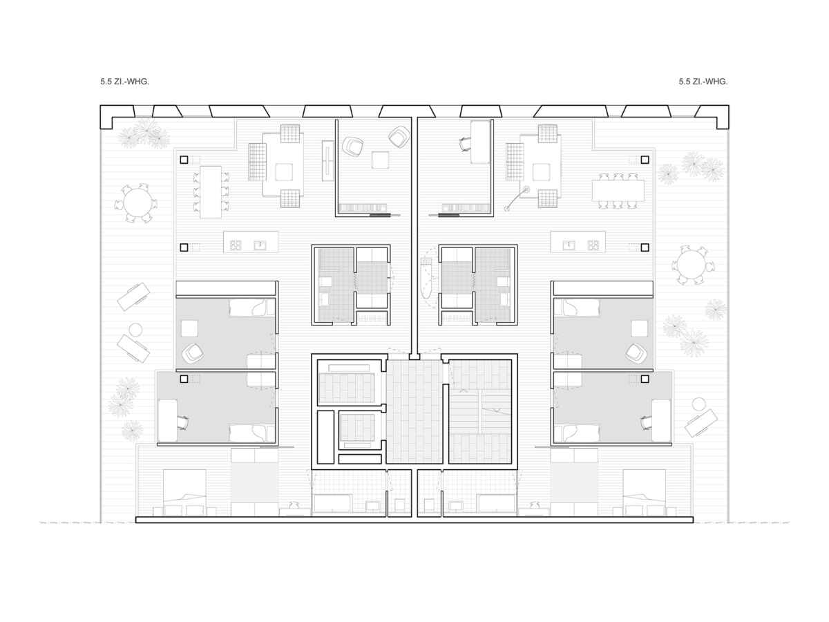
Beim Hochhaus wird das Wohnkonzept radikal umgesetzt. Das extrovertierte Wohnen in der Höhe lebt von der Weit- und Fernsicht gepaart mit einem grosszügigen privaten Aussenraum. Genau die Wahl des Terrassenwohnens im Hochhaus bildet eine einmalige Qualität. Das Hochhaus wird nicht nur volumetrisch zum Attraktor sondern auch die Wohnungen werden eine hohe Anziehungskraft bieten.

Die Stufung des Hochhauses bildet eine unverwechselbare und wohl proportionierte Silhouette. Der symmetrische Aufbau des Hochhauses unterstützt die Idee der Gleichwertigkeit der Baufelder. Die Lage und Höhe innerhalb des Gretag-Areals markiert die Wichtigkeit des Broadways und schafft eine Landmark mit Fernwirkung als Initialzündung für den neu entstehenden Stadtteil. Die Verdichtung der Baumasse in der Höhe schafft viel Raum beim Übergang zum Bestand im Süden.
Die Baufelder F und G bilden mit Ihrer Höhe von 8 Geschossen den neuen Höhenspiegel des neuen Stadtteils ab. Das Hochhaus auf Baufeld H1 überragt mit seiner Höhe von 90m die ganze Stadt und markiert die Wichtigkeit des neuen Quartiers für die ganze Entwicklung von Regensdorf.

Die lärmexponierte Lage des Baufeldes G erfordert teilweise sehr dünne Baukörper, nur so kann qualitativ hochwertiges Wohnen ermöglicht werden. Das Baufeld konsumiert 37% des möglichen Neubauvolumens und bietet Wohnungen für die Zielgruppen „Moderne Arbeiter“ und „Improvisierte Alternative“.
Beim achtgeschossigen Mäander auf Baufeld F sind die Gebäudetiefen optimiert und ausgereizt. 31% des Neubauvolumens bietet hier Platz für die Zielgruppen „Moderne Arbeiter“ und „Improvisierte Alternative“ im unteren bis mittleren Preissegment.

Unser städtebaulicher Ansatz schlägt verdichtetes Bauen an bester Lage innerhalb des Gretag-Areals und des neuen Stadtquartiers entlang des Parkways auf Baufeld H1 vor. Das Hochhaus konsumiert 32% des Neubauvolumens für hochwertigen Wohnraum der Zielgruppen „Bildungsorientierte Oberschicht“ und „Urbane Avantgarde“. Die nicht konsumierte Baumasse der Baufelder G und F werden auf das Baufeld H1 transferiert.
Obwohl der Transfer zu Baufeld H1 mit 75% deutlich höher ist als die Vorgabe des Programms und des Gestaltungsplans, wirkt der städtebauliche Ansatz sehr ausgewogen. Die Reinheit der Typologien, die Qualität des angebotenen Wohnraumes, die wohlproportionierten Aussenräumen mit unterschiedlichen räumlichen Qualitäten  und die städtebaulich richtige Lage des Hochhauses begründen diese Ausnahme.

Daten
Bauherrschaft
Peach Property Group AG
Auftragsart
Eingeladener Wettbewerb, 2. Platz
Planungsdauer
2014
Adresse
Regensdorf
Nutzungen
Wohnen, Gewerbe
Geschossfläche
108'927 m2
Wohnungen
636
Modellbauer
Gruber.Forster
Visualisierungen
Edburg Architekturvisualisierungen