Ersatzneubauten Allenmoosstrasse, Zürich

Kategorie
Wohnen
1. Rang
Ort
Zürich
Auftragsart
Gesamtleistungswettbewerb
Projektierung
Ausführung
1. Rang
Jahr
2019—2024
Status
Gebautes
Strichpunkte statt Zeilen
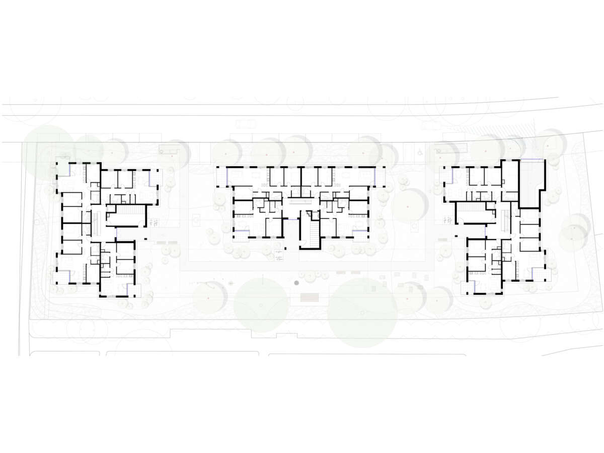
Drei gestaffelte Ersatzneubauten nutzen das Gebot zur Verdichtung im Gartenstadtquartier. Sie erhalten die Porosität und werten einstiges Abstandsgrün zum gemeinschaftlichen Freiraum auf.

Vis-à-vis der ikonischen Badi Allenmoos fallen drei Neubauten auf, die jede hermetische Geste meiden. Sie liegen an der Nahtstelle zwischen kleinteiliger Punkt- und aufgelockerter Zeilenbebauung, deren ausgeprägte Durchgrünung den Reiz des Quartiers ausmachen. Zuvor war mittels Gesamtleistungswettbewerb ein erfahrener Partner gesucht: Es galt, für vier Zürcher Standorte die «richtige» Objektstrategie zu finden – und so das Verdichtungspotential für dringend benötigten Wohnraum auszuloten. Tatsächlich zeigte sich für drei in die Jahre gekommene 1940er-Zeilen eine eklatante Möglichkeit sowie die Chance, das Abstandsgrün zum Gemeinschaftsraum zu transformieren.

Nun liefern die in die Länge gezogenen, gestaffelten Punktbauten unter allseits vermittelnden Gesten eine Antwort auf die sich wandelnde Gartenstadt. Dies bringt den Vorteil, dass trotz sportlicher Dichte die Porosität gewahrt wird. Vor allem aber ergibt das Zusammenspiel von Gebäudestaffelungen und dem Schulpavillon jenseits der Parzellengrenze einen gefassten, gleichwohl «fliessenden» Grünraum, der sich bestens in den Ort einbettet. Bewusst aus diesem Binnenraum heraus werden auch Ankommende von attraktiven Eingangspartien begrüsst, auf die die Wegführung hinzielt. Zur Strasse strahlt das Ensemble Ruhe aus, was, zusammen mit der sorgfältigen Freiraumgestaltung, die Adressbildung befördert.

Innen ermöglichen effizient organisierte, aufgefächerte Fünfspänner, dass fast alle Wohnungen von einer dreiseitigen Ausrichtung profitieren.Raumabfolgen und Diagonalbezüge gliedern jede Einheit in unterschiedliche Bereiche: Die gestaffelte Grundfigur verschafft mehrseitige Blickbezüge und – dank einer vorgelagerten Übereck-Loggia – die Erweiterung der Wohnräume ins Grüne. Aussen resultiert die plastische Versatzstruktur und das Wechselspiel aus emporstrebenden Klinkerflächen und stehenden Fensterformaten in einem Eindruck vertikaler Bänderung. Sie unterlaufen die Grösse der Bauten und verleihen ihnen einen Ausdruck kraftvoller Ruhe. (mc)

Daten
Bauherrschaft
Swiss Life Asset Management AG
Auftragsart
Gesamtleistungswettbewerb 1. Rang
Planungsdauer
2019–2023
Ausführung
2022–2024
Adresse
Allenmoosstrasse 50/56/60, 8057 Zürich
Nutzungen
Wohnen
Grundstücksfl.
5'056 m2
Geschossfl.
7'430 m2 o.i. | 2693 m2 u.i.
Bauvolumen
10'123 m3
Wohnungen
71 Mietwohnungen
Nachhaltigkeit
SNBS Silber
Generalplanung
Gross Generalunternehmung AG
Baumanagement
Gross Generalunternehmung AG
Landschaft
SKK Landschaftsarchitekten AG, Wettingen
Statik
WaltGalmarini AG
Bauphysik
Steigmeier Akustik + Bauphysik GmbH
Elektro
GODE AG
HLKS
Getec AG
Brandschutz
Brandschutz Gerber GmbH
Umwelt SNBS
EK Energiekonzepte AG
BIM-Fachkoordination
Singular AG
Fotograf Aussen- / Innenaufnahmen
Roger Frei Architekturfotografie
5750