Ersatzneubau Weihersteig, Zürich

Kategorie
Wohnen
Ort
Zürich
Auftragsart
Potentialstudie
Projektierung
Ausführung
Jahr
2017—2021
Status
Gebautes
Futteral 4.0
Am Käferberg inszeniert ein Ersatzneubau die private Bühne des Lebens neu: Als ein zeitgemässes «Gehäuse» mit Nischen, Einbaumöbeln, Sitzgelegenheiten und Truhen.

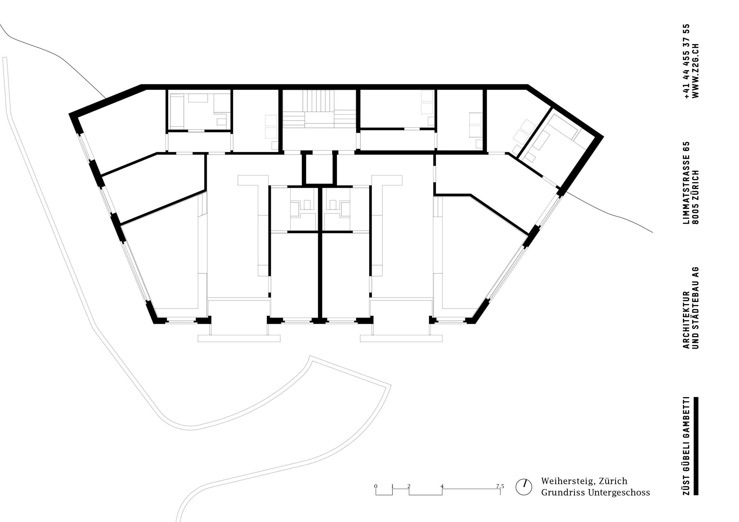
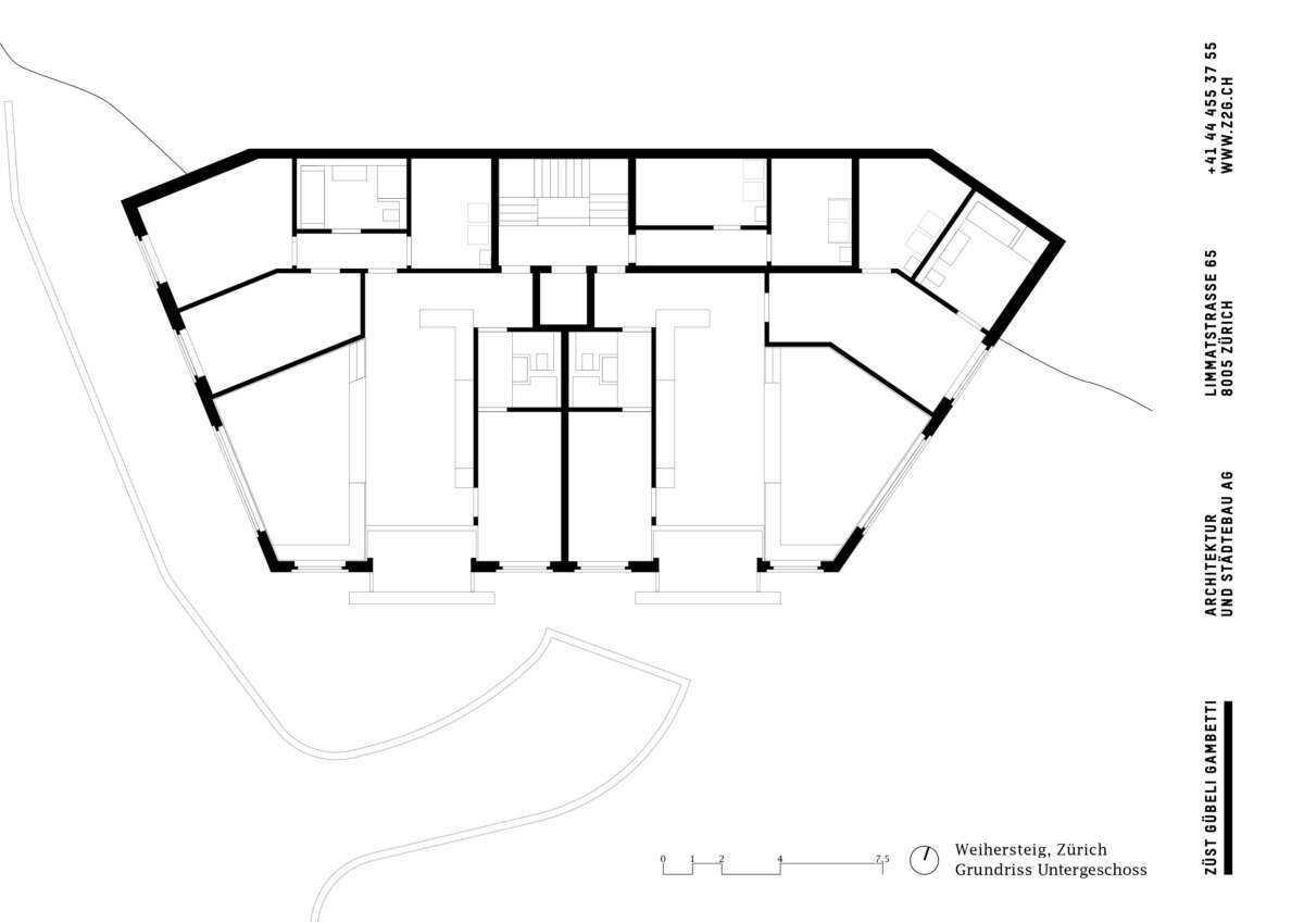
Im Rücken die stark befahrene Tièche-Strasse, hangabwärts das beinahe dörfliche Bild aus Punkthäusern und einer Kirche, im Westen der kolossale Riegel einer Genossenschaft: Der Ersatzneubau von Züst Gübeli Gambetti ist umringt von einer denkbar gemischten Nachbarschaft. Seine polygonale Form ist der Parzellenform geschuldet, deren baurechtliche Möglichkeiten er ausreizt. Zugleich passt er sich bestens in das heterogene Umfeld ein. Die Hauptrolle kommt indes einer wuchtigen Rotbuche zu; von der Strasse her ist zunächst nur die Krone sichtbar, dann schiebt sich der eigens für den Baum zurückversetzte Backsteinbau ins Sichtfeld.

Der Dreigeschosser mit Attika nimmt sieben Wohnungen in sich auf, wobei sich seine wahre Grösse erst Richtung Stadt offenbart. Innen herrschen individuelle Wohnungszuschnitte statt gestapelter Kammerspiele. Dank der speziellen Grundform unterscheidet sich die Raumwirkung in jeder Wohnung. Im Grundtyp sorgt sie für Offenheit und – dank deckenhoher Schiebetüren – für Durchblicke von Fassade zu Fassade. Äussere Raumschichten nehmen Schlafkammern und Bäder auf. Dazwischen schieben sich trichterförmige Wohnräume, deren Fenster, Erker und Loggien das Aussen wie Bilder rahmen.

Es sind Innenräume die bergen, ohne zu beengen; Räume, in denen man sich selbst ohne Möbel zuhause fühlt. Dafür sorgen plastische Nischen und Holzeinbauten. In den Wohnräumen der unteren Etagen entwickeln sich aus Raummöbeln Sitzbänke, die die teils tieferliegenden «Wohnwannen» auch als aufklappbare Truhen begleiten. Dramaturgien, die den nomadischen Alltag der Bewohner erleichtern und die Bewohner in ein neuzeitliches Futteral betten. Dabei ersetzen Beton, Eiche und der Blick auf üppiges Grün die einlullende Gemütlichkeit der Gründerzeit, sie wirken stimulierend. Allein das Aussen des Baus setzt einen Kontrapunkt, sein trutziger Ausdruck zeugt vom Pendeln zwischen den Welten. (mc)

 

zum Artikel: Das Ideale Heim, November 2023

Daten
Bauherrschaft
Privat
Auftragsart
Potentialstudie, Ersatzneubau
Planungsdauer
01/2017 - 01/2021
Fertigstellung
07/2021
Adresse
Weihersteig 16, 8037 Zürich
Nutzungen
Wohnen, Einstellhalle
Grundstücksfläche
1'107 m2
Geschossfläche
3‘922 m2 o.i. | 1‘858 m2 u.i.
Bauvolumen
5'780 m3
Wohnungen
9 Mietwohnungen
Baumanagement
Caretta + Gitz AG
Landschaft
Noa Landschaftsarchitektur
Bauphysik
Michael Wichser + Partner AG
Statik
Marti + Dietschweiler AG
Elektro
Gutknecht Elektroplanung AG
HLKS
Frei + Partner GmbH
Fotografie
Roger Frei
3890