Ersatzneubau Frauentalweg, Zürich

Kategorie
Wohnen
Ort
Zürich
Auftragsart
Machbarkeitsstudie
Projektierung
Ausführung
Jahr
2021—2025
Status
Gebautes
Guckkasten
Geometrische Sonderformen, Split-Level und eine 45-Grad-Drehung der Treppe sind die Zutaten für einen Bau, der aus dem Spannungsfeld von Baurecht, Weitsicht und Privatheit schöpft.

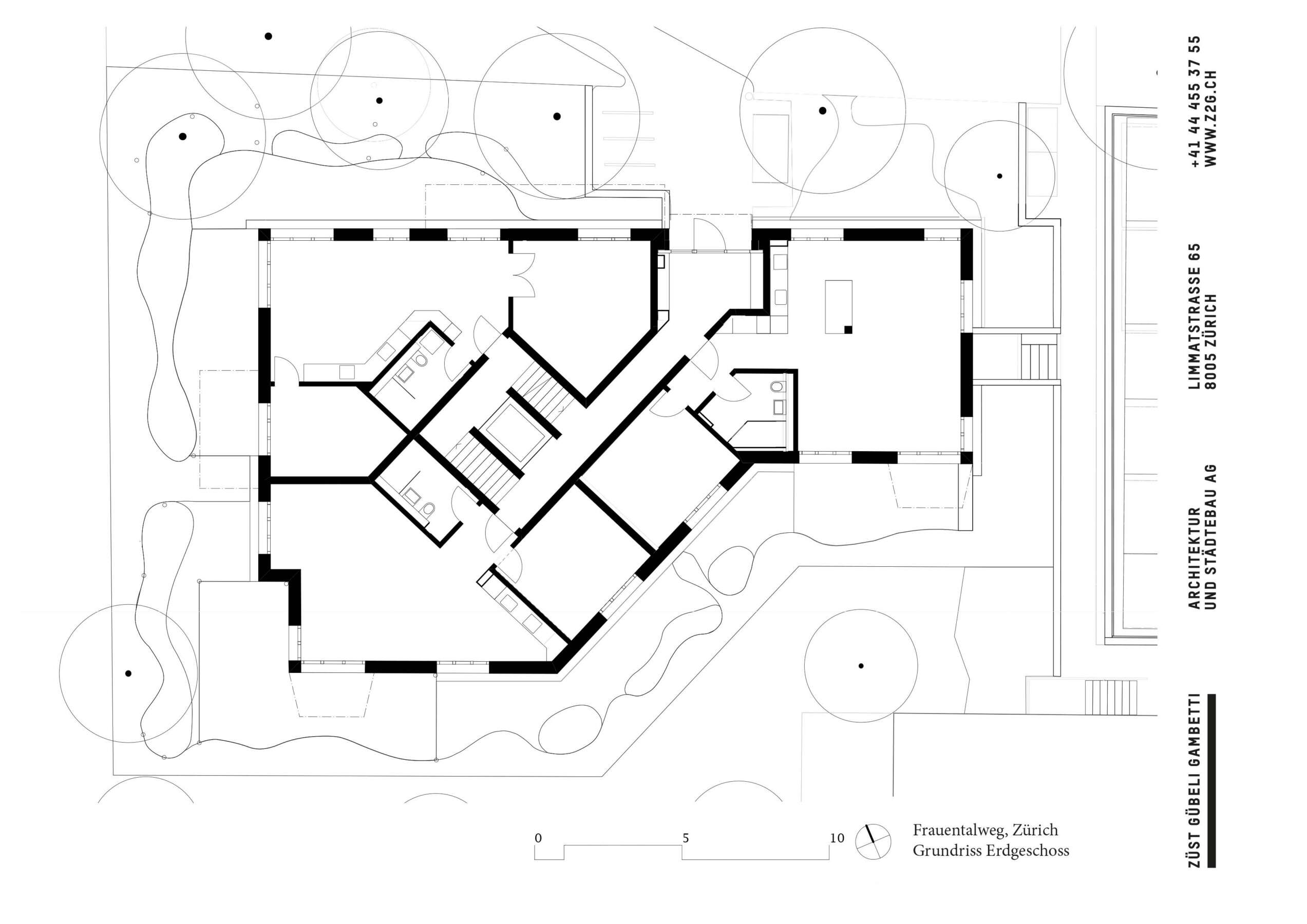
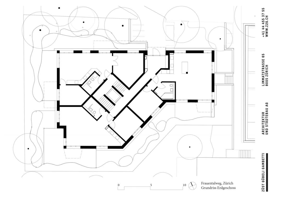
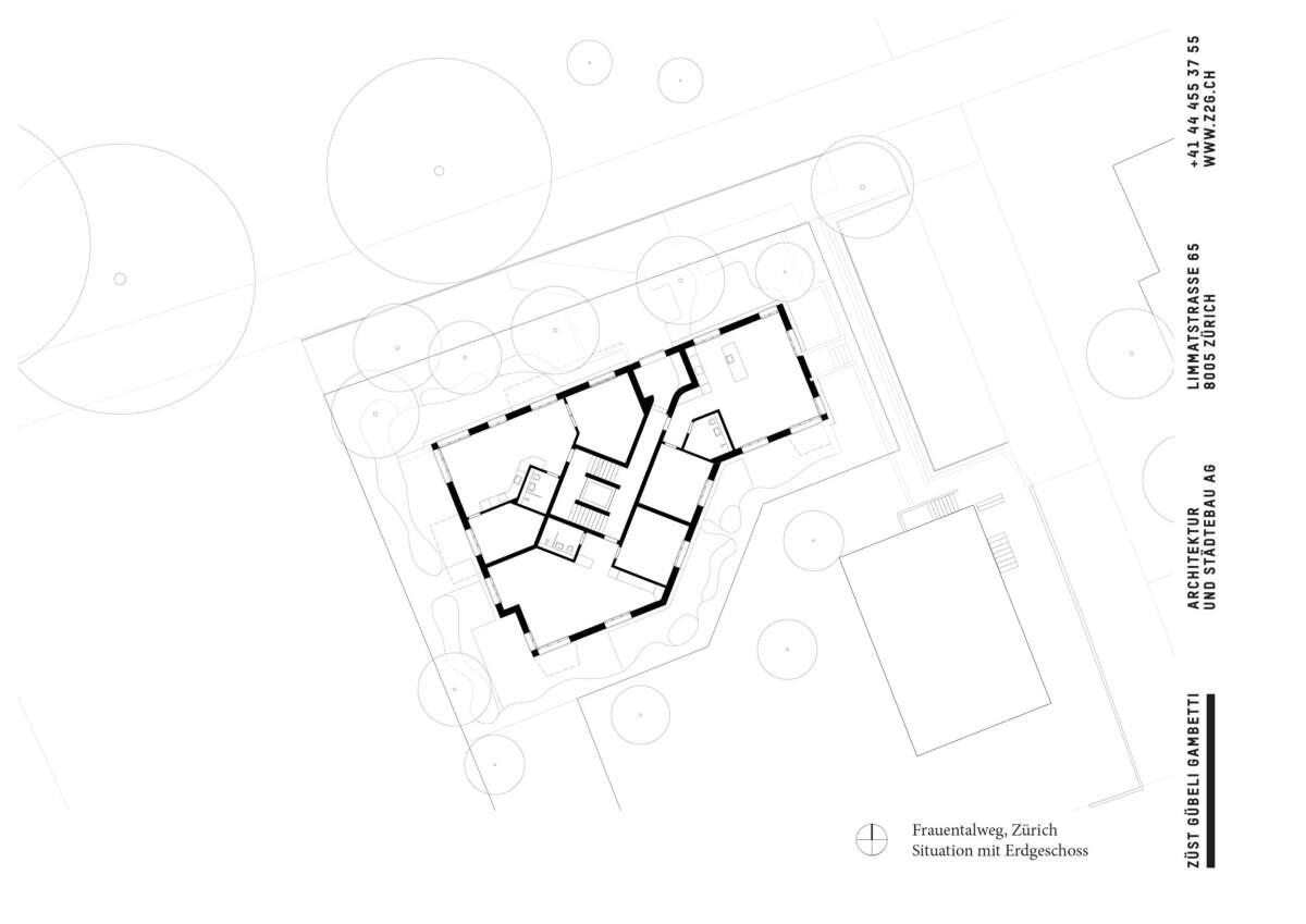
Auch am Friesenberg stehen die Zeichen auf Innenentwicklung und Verdichtung: Längst hat ein neuer städtischer Massstab das artig gestaffelte, von genossenschaftlichen Bauzeilen geprägte Gartenstadtquartier erfasst. Anstelle eines Bungalows aus den 1960ern markiert neuerdings ein vielgestaltiger Bau mit 11 Mietwohnungen einen vorläufigen, augenfälligen Schlusspunkt am Frauentalweg. Der abgetreppte Baukörper liegt in idyllischer Ecklage und mit grandioser Weitsicht rundherum. Zur Strasse sowie im Rücken von Tennisanlagen flankiert, besetzt er ein stark abfallendes, polygonales Grundstück in unmittelbarer Nähe zum Albisgüetli.

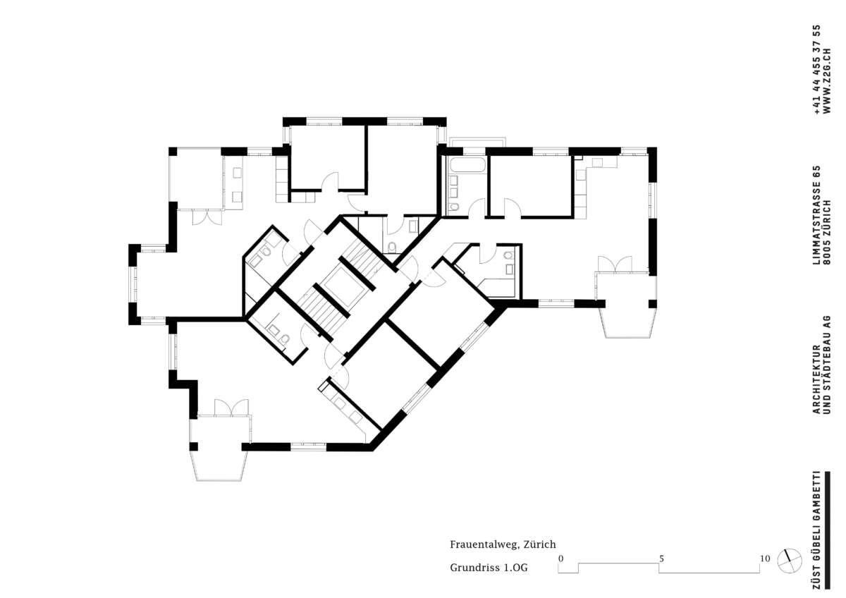
Seine stark modulierte Gestalt entspringt zum einen baurechtlichen Vorgaben und dem Ziel der optimalen Bodenverwertung. Zum anderen resultiert sie aus einer interessanten Schnittlösung, die das Haus eng an den Hang schmiegen lässt. Halbgeschossig versetzt durch Split-Level-Etagen, benötigt es nur ein Treppenhaus. Überhaupt mindert die gewandt gestufte, unregelmässige Gebäudeform die Masse zu allen Seiten. Ein weiterer Vorteil des allseitig orientierten Baus liegt darin, dass jede Wohnung Weitsicht geniesst, während Vor- und Rücksprünge, Staffelungen, Knicke und Erker die Privatsphäre wahren. Speziell am Grundriss ist die 45-Grad-Drehung der Treppe, die im Inneren die Flächen organisiert.

Dank dem Zusammenwirken von Split-Level und polygonaler Grundform unterscheiden sich die Raumwirkungen in allen Wohnungen deutlich – die Vielfalt der eher klein geschnittenen Einheiten könnte kaum grösser sein. Ihre gestaffelten Wohn-Essbereiche strecken sich Übereck oder gar zu drei Seiten; halb eingeschriebene Balkon-Loggien rahmen Ausblicke auf Stadt, See, Grün oder in knorrige Baumkronen. Nachdem Innen wie Aussen volumetrisch bereits «viel passiert», wurde in dem mit Besenstrich verputzten Haus nur ein einziger Fenstertyp eingesetzt, und zwar aus zwei oder drei stehenden Elementen. Mit einer Ausnahme: Da und dort übernehmen grosse Bullaugen die Blickregie im Raum. (mc)

Daten
Bauherrschaft
re3 invest AG
Auftragsart
Studie, Direktauftrag
Planungsdauer
05/21 – 02/23
Ausführung
02/23 - 01/25
Adresse
Frauentalweg 119, 8045 Zürich
Nutzung
Wohnen
Grundstücksfläche
818 m2
Geschossfläche
1'036 m2 o.i. | 285 m2 u.i.
Bauvolumen
4'048 m3
Wohnungen
11 Mietwohnungen
Baumanagement
Righetti Partner Group AG
Landschaft
USUS Landschaftsarchitektur AG
Statik
Urech Bärtschi Maurer AG
Bauphysik
Kopitsis Bauphysik AG
Elektro
3-Plan Haustechnik AG
HLKS
3-Plan Haustechnik AG
Brandschutz
Brandschutz Konzepte AG,
Beleuchtung
3-Plan Haustechnik AG
Fotografie
Roger Frei Architekturfotografie / Z2G Archiv
5420