Ersatzneubau Bergstrasse, Küsnacht
Kategorie
Wohnen
Ort
Küsnacht
Auftragsart
Ausführung
Machbarkeitsstudie
Projektierung
Machbarkeitsstudie
Projektierung
Jahr
2024–2026
Status
Zukünftiges
Daten
Bauherrschaft
ibc Innova Baumanagement & Consulting AG
Auftragsart
Machbarkeitsstudie, Ersatzneubau
Planung
04/24–10/25
Ausführung
04/24–10/25
Adresse
Bergstrasse 56, 8700, Küsnacht
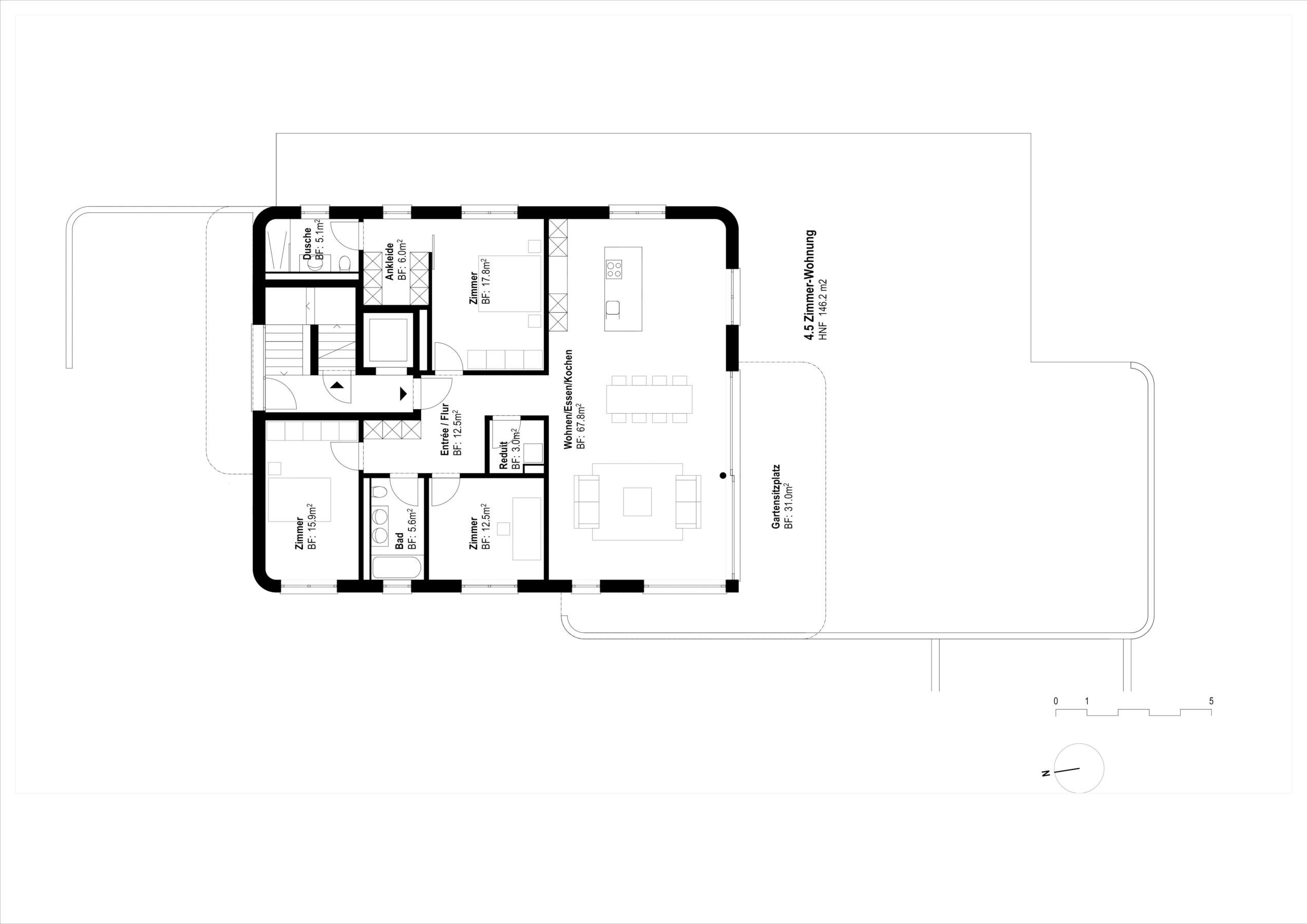
Nutzungen
Wohnen
Geschossfläche
525 m2 o.i. | 374 m2 u.i.
Bauvolumen
2'901 m3
Wohnungen
3 Eigentumswohnungen
Bauherrenvertretung / Baumanagement
Gloor Gottardo Baumanagement GmbH
Landschaft
Noa Landschaftsarchitektur
Statik
bba Ingenieure AG
HLKS
PLANERwerk GmbH
Elektro
Erdin Elektroplanung GmbH
Bauphysik
bba Ingenieure AG
Brandschutz
BH Brandschutz Bruno Häseli