Erlenmatt-Areal West (Baufeld E), Basel

Kategorie
Städtebau
Wohnen
Mixed Use
1. Rang
Ort
Basel
Auftragsart
Studienauftrag
Testplanung
Projektierung
Ausführung
1. Rang
Jahr
2011—2015
Status
Gebautes
Auge in Auge mit Basel-Stadt
Auf dem Basler Erlenmatt-Areal werden die ehrgeizigen Ziele der 2000-Watt-Gesellschaft verfolgt. Zürcher Architekten lieferten einen Stadtbaustein dazu, der vitalisierend wirkt.

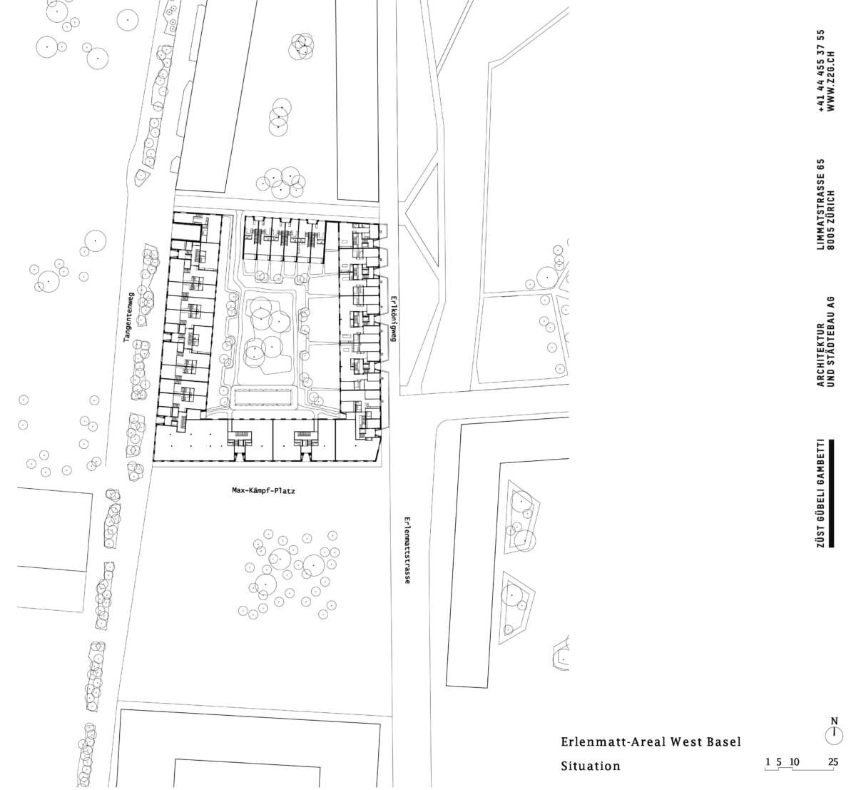
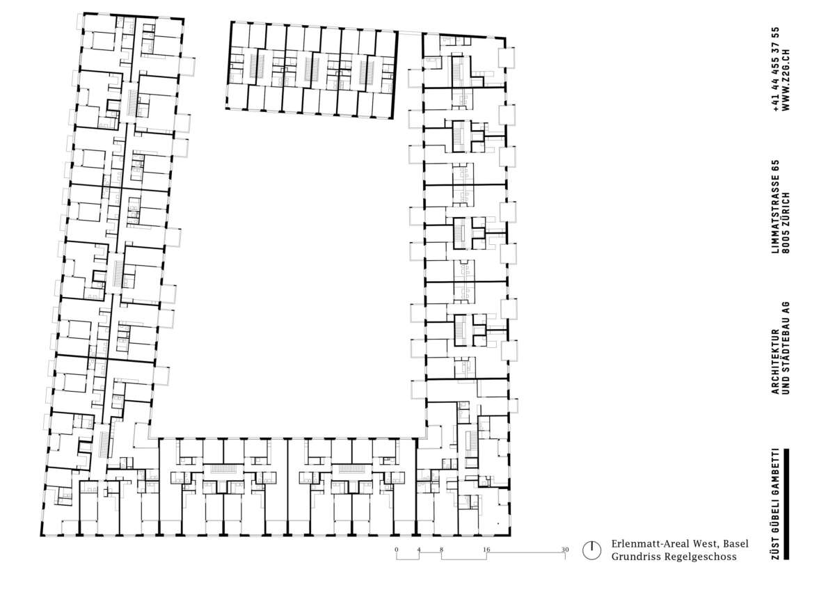
Mit dem Wegzug der Deutschen Bahn ergab sich auf dem Erlenmatt-Areal die Chance für ein neues Stadtviertel, das die angrenzenden Kleinbasler Quartiere entlasten soll. Und für Züst Gübeli Gambetti die Möglichkeit, mittels einer Testplanung den Beitrag der «Westscholle» auszuloten. Entstanden ist daraus ein Stadtbaustein mit räumlichem und sozialem Potenzial, der den Dialog sucht. Mit der umliegenden Stadt, vor allem aber mit Passanten und Bewohnern.

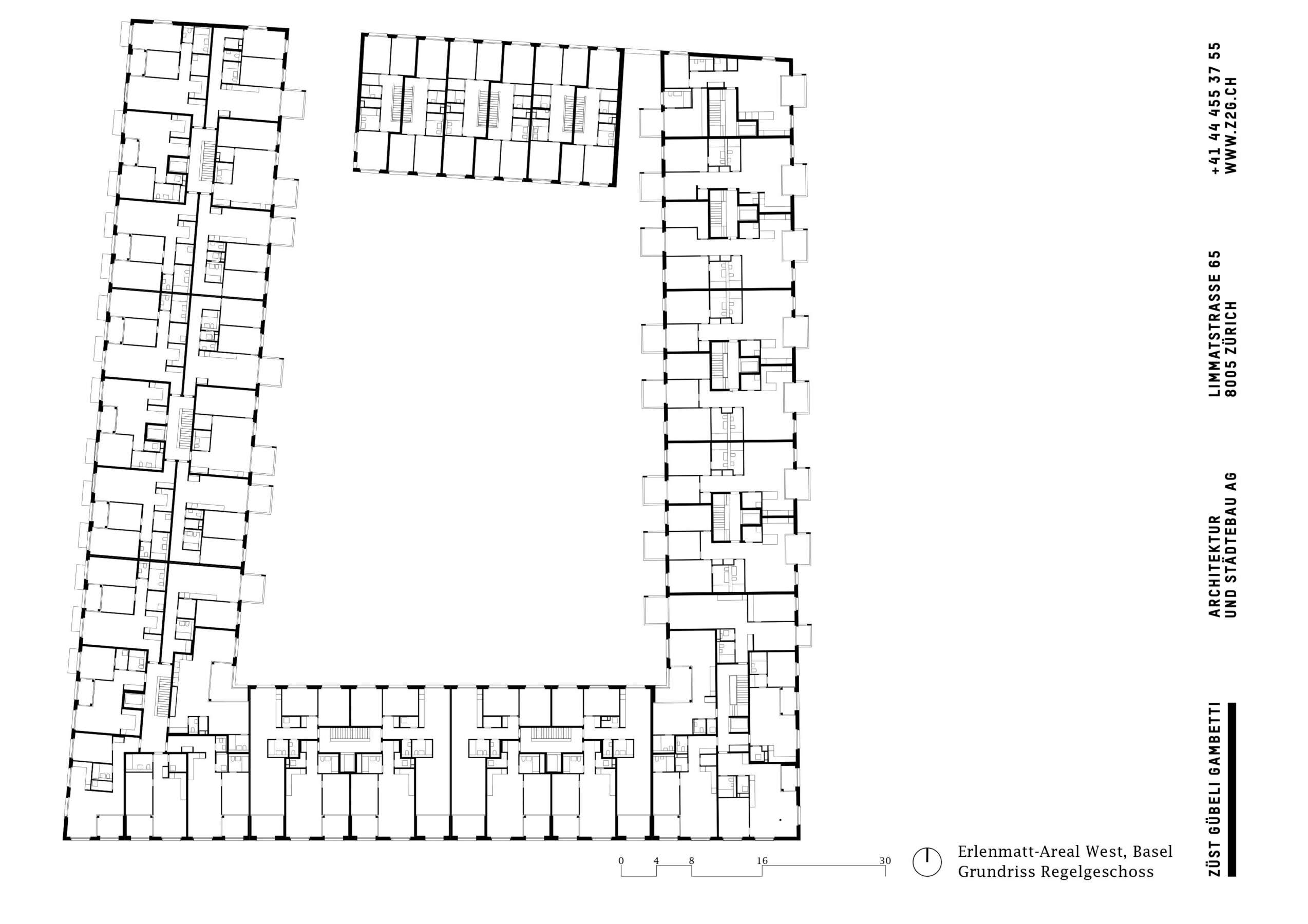
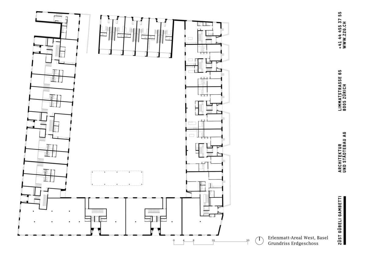
Ziel war es, einem offenen Blockrand städtisches Leben einzuhauchen. Das Erdgeschoss ist dabei jener Wahrnehmungsraum, wo man der Stadt Auge in Auge gegenüber tritt. Und dessen Ausgestaltung darüber entscheidet, ob «Urbanität» entsteht. Mit seinem kleinteiligen Mix aus Gewerbe und einer Palette von Wohnformen bringt der Stadtbaustein eine programmatische Qualität ins Quartier. Die hybride Typologie ist deshalb nicht nur dem Dialog mit der heterogenen Umgebung geschuldet. Sie begünstigt auch die soziale Durchmischung.

Die Verknüpfung mit dem Leben beginnt am Platz. Hier etabliert die Anlage eine städtische Front und beschirmte Ladenpassage. Im Sockel des Westflügels sind Ateliers mit Split-Level untergebracht. Darin kann man wohnen, arbeiten, verkaufen – oder alles miteinander. Dank Überhöhe und eigenen Zugängen geben sie Raum für Pioniernutzer, die das Haus nachhaltig in der Stadt verankern sollen. Der Ostflügel zum Park umfasst Eigentumswohnungen. Stadtauswärts im Hof wird die Dichte von Reihenhäusern gebrochen. Eine für Basel traditionelle Wohnform, die der Nachbarschaft unerhörte Fernsicht beschert. Markante Eingänge und Bezugspunkte, die jeweils das Besondere der Situation unterstreichen, stärken die Identifikation der Bewohner mit ihrem Quartier. (mc)

Daten
Bauherrschaft
Losinger Marazzi AG
Auftragsart
Testplanung (Baufeld E-G), Studienauftrag 1. Preis (Baufeld E), Neubau
Planungsdauer
05/2011-11/2014
Fertigstellung
12/2015
Adresse
Max-Kämpf-Platz 1-2, Tangentenweg 30-36, Erlkönigweg 1-19, 4058 Basel
Nutzungen
Wohnen, Ateliers, Gewerbe, Einstellhalle
Grundstücksfläche
8'430 m2
Geschossfläche
22'730 m2 (o.i.) | 7'230 m2 (u.i.)
Bauvolumen
100'000 m3
Wohnungen
172 Mietwohnungen, 48 Eigentumswohnungen
Gewerbe
930 m2 Ateliers, 960 m2 Gewerbefläche
Nachhaltigkeit
2000-Watt-Areal
Baumanagement
Losinger Marazzi AG
Totalunternehmer
Losinger Marazzi AG
Landschaft
ASP Landschaftsarchitekten AG
Statik
Wismer+Partner AG
Bauphysik
Losinger Marazzi AG
Elektro
Triplan Gebäudetechnik AG
HLKS
Triplan Gebäudetechnik AG
Brandschutz
P. Berger Consulting GmbH
Fotografie
Roger Frei
280