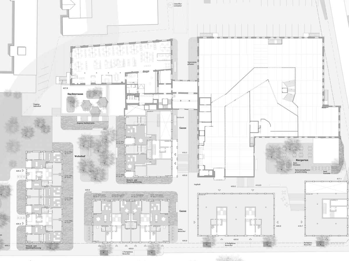
Entwicklung Gessner-Areal, Wädenswil

Kategorie
Städtebau
Mixed Use
Ort
Wädenswil
Auftragsart
Studienauftrag
2. Rang
Jahr
2018
Status
Wettbewerb