Einfamilien-Reihenhäuser Hubring, Bassersdorf

Kategorie
Wohnen
Ort
Bassersdorf
Auftragsart
Direktauftrag
Machbarkeitsstudie
Vorprojekt
Baueingabe
Jahr
2024–
Status
Zukünftiges
Hangschmeichler
Am nördlichen Rand von Bassersdorf entstehen zwei neue Baukörper, die sich mittels Abstufung raffiniert in die Topografie einschmiegen. Die Setzung folgt dem Hang; gestaffelte Höhen, präzise Einschnitte und Terrassen öffnen Blickbeziehungen in die umliegende Weite der Landschaft.

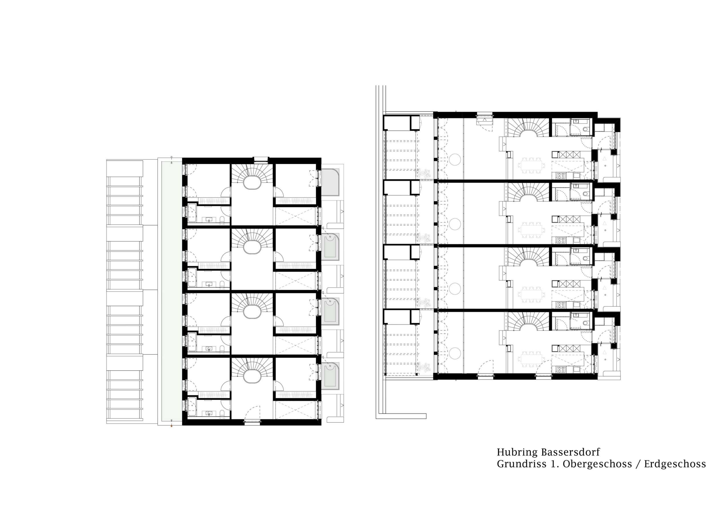
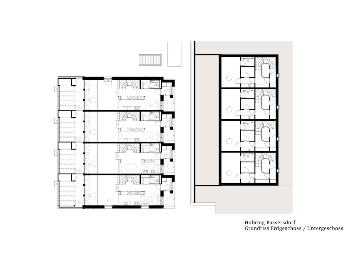
Die beiden Reihenhauszeilen bestehend aus zwei mal vier Hausteilen sind als kleine Nachbarschaft konzipiert: Die einzelnen Wohneinheiten bleiben eigenständig in Adresse und Grundriss, profitieren aber gleichzeitig von der gemeinschaftlichen Nutzung und Atmosphäre. Verbindende Wege und Freiräume sowie das geteilte Gewächshaus fördern Austausch, ohne Privatheit aufzugeben. Das Ensemble versteht sich als Dialog von Architektur und Landschaft – mit klarer Orientierung nach Süd und Südwest.

Die terrassierte Typologie schafft private Außenräume auf jeder Ebene. Ein überhoher Bereich mit grossformatiger Verglasung bildet das helle Zentrum. In der Mittelzone organisiert eine gewendelte Treppe die Vertikalerschliessung; gegenüber liegen Küche und Essbereich als kommunikatives Herzstück. Nach Süden schliesst von hier ein um drei Stufen abgesenkter Wohnbereich an, der mit Überhöhe und grossflächiger Verglasung Weite erzeugt. Darüber sind im 1. Obergeschoss die Schlafzimmer untergebracht. Im Dachgeschoss öffnet sich jeweils ein weiterer Wohnbereich inklusive vorgelagerter Terasse mit Pergola, die von ihrer südwestlich vorgelagerten Ausrichtung mit Weitblick in die umliegende Landschaft profitieren. Mineralische Oberflächen, warme Holztöne und die rankende Fassadenbegrünung prägen die atmosphärische Qualität des Ensembles.

Im Osten schmiegt sich das gemeinschaftlich genutzte Gewächshaus als Treff- und Aufenthaltsort in den Hang: Halb Garten – halb Salon, dehnt es die Nutzungsdauer des Aussenraums über die Jahreszeiten aus und bildet den identitätsstiftenden, biodiversen Mittelpunkt eines neu entstandenen Mikrokosmos.

Daten
Bauherrschaft
SI Specogna Immobilien AG
Auftragsart
Machbarkeitsstudie, Direktauftrag
Planungsdauer
2024–
Adresse
Hubring 36, 8303 Bassersdorf
Nutzungen
Wohnen
Wohnungen
8 Mietwohnungen, 1 Gemeinschaftspavillon
Baumanagement
Baustudio GmbH