Aufstockung LOKwerk, Winterthur

Kategorie
Wohnen
Umbau & Sanierung
Ort
Winterthur
Auftragsart
Gesamtleistungswettbewerb
Jahr
2016
Status
Wettbewerb
Pas de Deux
Die Ausreizung des technisch wie wirtschaftlich Machbaren führte bei einer Aufstockung zu einer Verschmelzung von Architektur und Statik. Und zu einer adäquaten Antwort für den speziellen Ort.

Auf den ehemaligen Arealen von Sulzer und SLM entwickelt sich seit geraumer Zeit mittels punktueller Eingriffe ein neues Quartier. Diese Strategie der kleinen Schritte ist von der Absicht geleitet, den industriellen Charakter zu erhalten. Das LOKwerk ist einer der repräsentativen Backsteinbauten an der Zürcherstrasse. Hinter seiner denkmalgeschützten Fassade verbirgt sich ein Einkaufscenter, das um einen Wohnbau aufgestockt werden soll. Man erhofft sich von vier weiteren Etagen nicht nur räumliche Verdichtung, sondern auch Synergien.

Züst Gübeli Gambetti entwickelte ein Konzept, das maximale Ausnutzung, Flächeneffizienz, Realisierbarkeit bei laufendem Betrieb und Wirtschaftlichkeit garantiert und dabei ein Wohnerlebnis bietet, das dem speziellen Ort Rechnung trägt. Städtebaulich lag der Anspruch nicht in einem «spektakulären» Gebäude, sondern darin, das Bewusstsein für die Bindung an seinen Träger zu schärfen. Statisch bedingt muss die Aufstockung auf eigenen Beinen stehen, weshalb «Stützenhilfe» von oben erfolgt: Das Center erhält über Deckenbohrungen schlanke Stahlstützen zur Seite gestellt. Die Holzbaukonstruktion des Neubaus steht auf einem Stahlrost.

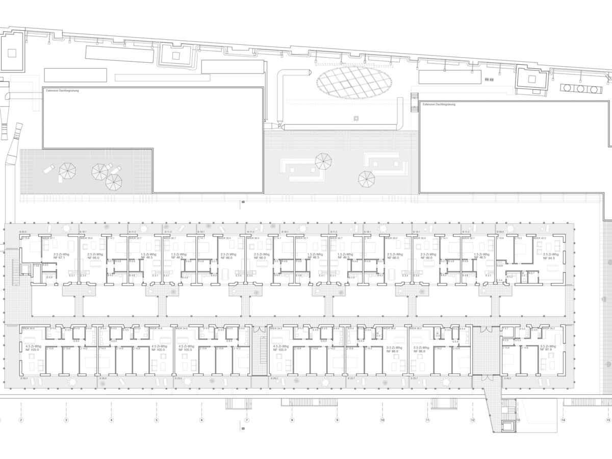
Die Statik wird auch als visuelle Kraft genutzt. Mit seinem umlaufenden Stützenwerk zeigt der domestizierte Überbau eine klare Differenzierung vom Bestand. Von fern erscheinen sie als Einheit. Sowieso wird effektiver Anschluss gesucht: Aus der Centerdisposition ergibt sich die Lage der Zugänge. Zudem wird ein neuer Treppenturm positioniert, um die Südseite aufzuwerten. Bei der Planung der 75 Wohnungen bestand der Kunstgriff in der Kombination zweier bewährter Typologien: der Block mit zentralem Hofraum und die von Laubengängen erschlossene Zeile. Daraus ergibt sich eine eigene Art urbaner Häuslichkeit. (mc)

Daten
Bauherrschaft
CS Funds AG
Auftragsart
Gesamtleistungswettbewerb
Planungsdauer
2016
Adresse
Zürcherstrasse 51, 8406 Winterthur
Nutzungen
Wohnen
Geschossfläche
6'680 m2
Wohnungen
75
Nachhaltigkeit
Minergie
Totalunternehmer
Strabag AG
Landschaft
Hager Partner AG
Statik
Hunziker Betatech AG
Holzbau
Holzbaubüro Reusser GmbH
Bauphysik
Mühlebach Partner AG
Elektro
Hefti Hess Martignoni St. Gallen AG
HLKS
Oekoplan AG
Brandschutz
Hunziker Betatech AG