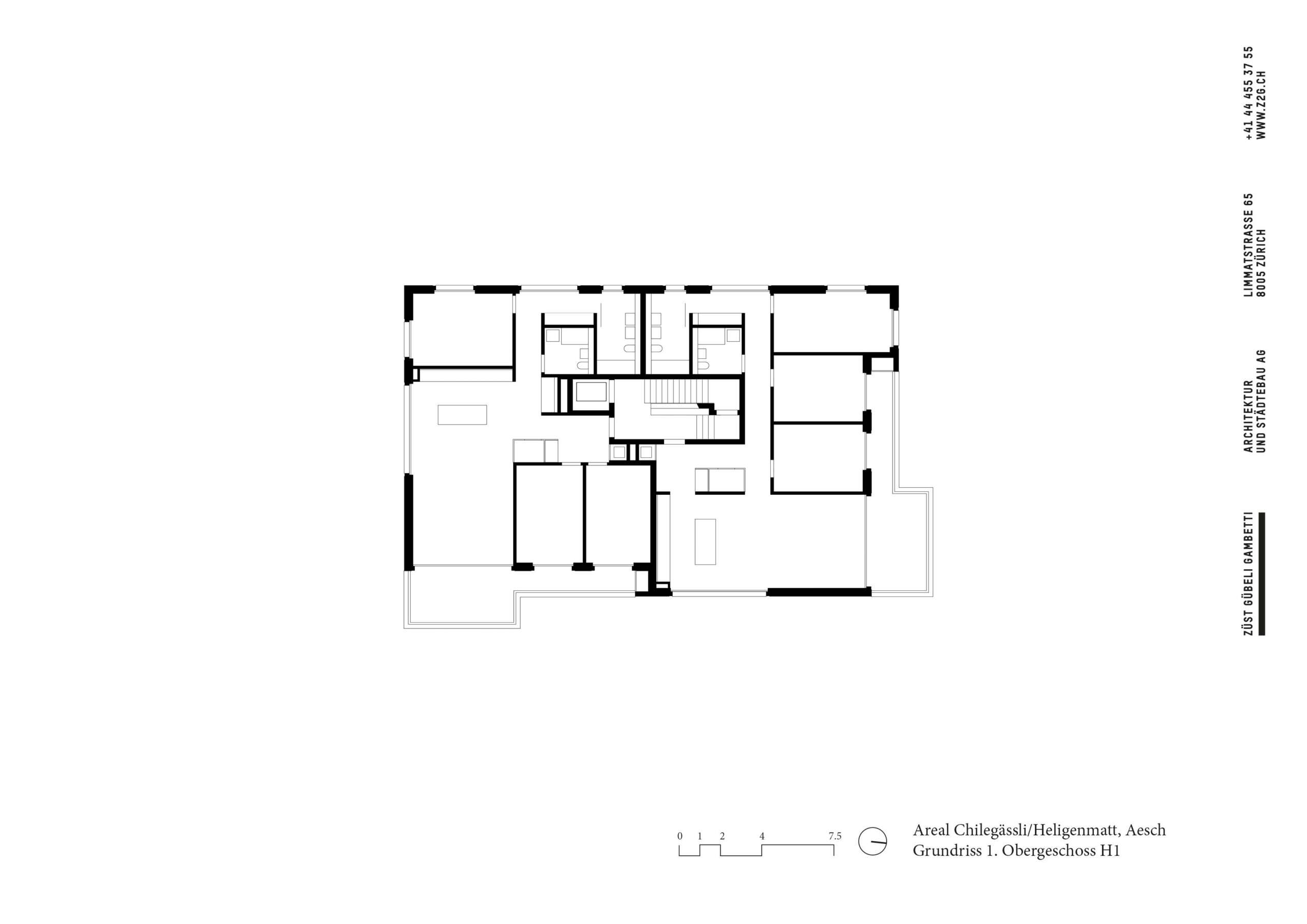
Arealentwicklung Chilegässli/Heligenmatt, Aesch (ZH)

Kategorie
Städtebau
Wohnen
Ort
Aesch (ZH)
Auftragsart
Projektentwicklung
Studie
Projektierung
Ausführung
Jahr
2011—2018
Status
Gebautes
Drei in einem
Ein neues Quartier im ländlichen Aesch will zwischen Dorfkern und Landwirtschaftszone räumlich vermitteln. Und zeigt dabei auch einen erfinderischen Umgang mit traditionellen Bildern.

Das idyllische 1200-Seelen-Dorf liegt im westlichsten Zipfel des Kantons und doch nahe an Zürich. Unter dem Eindruck neuer Entwicklungen und einer langfristig angepeilten Bevölkerungszunahme um 50% geht es auch hier um Identitätsfragen. Wie lässt sich der Charakter wahren, trotz Zwang zum Wandel und zur ökonomischen Dichte? Züst Gübeli Gambetti suchte mit einer Quartierentwicklung für 300 neue Einwohner nach Antworten. Aufgeteilt auf drei Baufelder, schufen sie ein differenziertes Ensemble, das räumlich wie architektonisch zwischen Dorfkern und Landwirtschaftszone vermittelt.

An der unter Ortsbildschutz stehenden urbanistischen Frontlinie gehen fünf Baukörper auf Tuchfühlung mit der Kernzone. Mit Stellung und Kubatur machen sie den Abschluss zum «Chilegässli». Siedlungsintern schaffen sie ein vielgestaltiges Gefüge aus Wegen, Plätzen und durch Hecken abgetrennte, private Aussenräume. Erst auf den zweiten Blick realisiert man die besondere Erfindung: Ein längs aufgesetzter «Doppelgiebel» zerlegt jedes der Häuser optisch in zwei. Unterstützt von Knicken, die den Massstab zusätzlich brechen, passen sie sich so der kleinteiligen Nachbarschaft an.

In Abkehr von dieser engen Kontextbezogenheit sind die Bauten der Heligenmatt als begrünte Flachdachbauten gestaltet; mit grossen Fenstern und Balkonen für extensive Ausblicke in die ländliche Umgebung. In der «Dorfwies» stehen die sechs Volumen rechtwinklig zueinander: Einzeln oder als Paare leicht gegeneinander versetzt, immer die beste Aussicht und Geländeintegration im Visier. Die vier Bauten der «Südwies» sind um 90 Grad gedreht – ihrer Randlage mit Blick in die unverbaubare Landschaft geschuldet. Ein Aspekt, der mittels einer fliessenden Geländemodulation weiter unterstrichen wird. (mc)

Daten
Bauherrschaft
Kastanien Immobilien AG
Auftragsart
Überbauungsstudien, Neubau
Planungsdauer
03/2012-11/2017
Fertigstellung
04/2018
Adresse
Chilegässli 12a-e | Heligenmattstrasse 10-17, 19, 21, 8904 Aesch
Nutzungen
Wohnen, Tiefgarage
Grundstücksfläche
21'624 m2
Geschossfläche
14'500 m2 o.i. | 11'000 m2 u.i
Gebäudevolumen
83‘800 m3
Wohnungen
82 (30 Mietwohnungen, 52 Eigentumswohnungen)
Nachhaltigkeit
Minergie (Heligenmatt)
Totalunternehmer
Allco AG
Bauherrenvertretung
Consero AG
Landschaft
ASP Landschaftsarchitekten AG
Vermarktung
smeyers AG
Statik
Henauer Gugler AG
Bauphysik
Kopitsis Bauphysik AG
Elektro
HEP AG
HLKS
CM Engineering GmbH
Fotografie
Roger Frei
810