Areal Musikvertrieb, Zürich

Kategorie
Städtebau
Wohnen
Mixed Use
1. Rang
Ort
Zürich
Auftragsart
Studienauftrag 1. Rang
Generalplanung
Projektierung
Baueingabe
Jahr
2015—2022
Status
Wettbewerb

Die vier Grundstücke der Bauherrschaft können klar als zusammenhängendes Areal gelesen werden. Auf dem Areal sind Ansätze einer Hofbebauung ersichtlich. Eine Gesamtplanung ermöglicht gegenüber der Stadt Zürich konsequent auftreten zu können. Es kann dadurch im grösseren Massstab dargelegt werden, warum z.B. ein kleines Hochhaus Sinn machen würde. Schaut man sich das bauliche Potential an – die vermietbare Fläche kann von heute 4500m2 auf 8900m2 angehoben werden, ein plus von 98% – so drängt sich die Arealplanung ganz klar auf. Wird das gesamte Areal auch noch in einem Schritt bebaut, so können ca. 15% Baukosten gespart werden.
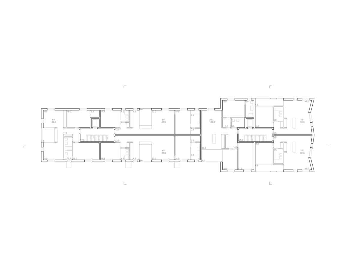
Das Grundstück stösst mit der Schmalseite an die Badenerstrasse an. Um die nötige Präsenz aufbauen zu können, wird eine expressive Kopfausbildung vorgeschlagen. Das Gebäude kann durch nur zwei Treppenkerne erschlossen werden. An jedem Kern werden – sehr wirtschaftlich – 3 Wohnungen angegliedert. Im Erdgeschoss werden Wohnungstypen angeboten, welche auch zum Arbeiten geeignet sind. Sie haben einen direkten Zugang von Aussen, eine spezielle Raumhöhe von 2.80m und einen privaten PP direkt vor ihrem Garten. In den fünf Obergeschossen plus Attika sind sehr eigenständige, wirtschaftliche Wohntypologien untergebracht. Die Attika ist loftartig konzipiert und hat im Bereich zur Badenerstrasse ebenfalls eine räumliche Überhöhe als Akzent.

Wir gliedern das Haus traditionell in Sockel, Mittelteil und Abschluss. Der Sockel wir mit einem eloxierten Aluminiumvorhang ausgebildet. Er erinnert an die feinen Materialisierungen der 50er Jahre. Der Mittelteil wird in sich nochmals geteilt in einen zwei- und dreigeschossigen Bereich. Vertikale, konvexe Putzstreifen bilden das edle aber günstige Kleid des Mittelteils. Die Attika wird entmaterialisiert. Glas bestimmt den Ausdruck und gibt den Blick über die Dächer frei.