Areal Oberdorf, Horgen

Kategorie
Städtebau
Mixed Use
Ort
Horgen
Auftragsart
Studienauftrag
2. Rang
Jahr
2017
Status
Wettbewerb
Brückenschlag
In Horgen dienten Bestand und Kontext eines Industrieareals auf vielen Ebenen als Inspirationsquelle. Vor allem aber wurde seine Neuanlage von den Freiräumen her gedacht.

Der Überbauungsvorschlag sucht die Anbindung und Vernetzung mit dem Quartier – räumlich wie auch im übertragenen Sinn. Er knüpft an die industrielle Vergangenheit des Ortes an, nimmt Bezug auf vertraute Architektur- und Landschaftselemente und stellt sich die Frage nach einer sinnfälligen programmatischen Akupunktur der Bauten an den «richtigen» Stellen. Züst Gübeli Gambettis übergeordnetes Ziel ist dabei so simpel wie elementar: höchstmögliche Lebensqualität für alle Bewohner und ein friedvolles Nebeneinander schaffen.

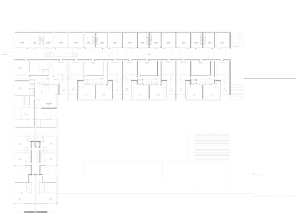
Die Ingredienzen: Eine Vielfalt an identitätsstiftenden Orten sowie nuancierte Übergänge zwischen privat und öffentlich, die das Miteinander von Wohn- und Arbeitswelten regeln. Indes sorgt die sorgfältig angelegte Dramaturgie unterschiedlicher Stadträume aus gedecktem Entrée, Platz, Gasse, Passagen und Brücken nicht nur für atmosphärischen Reichtum, sondern auch für ein überschaubares, fast dörfliches Ambiente. Ebenso sind Modulationen und Staffelungen der Baukörper nicht nur terrainbedingt oder städtebaulich motiviert. In ihrem Inneren bergen sie vielgestaltige Typologien, die auf einen breiten Bewohner- und Nutzermix zielen.

Insgesamt ist die Siedlungsanlage vor allem vom Freiraum her gedacht. Eine partielle Konzentration der Baumasse zeitigt in ihrem Gesamtergebnis über beide Baufelder hinweg fein austarierte und miteinander vernetzte Freiräume statt unzusammenhängender «Restflächen» und Abstandsgrün. Die Gestaltung der Häuser referenziert wiederum die besondere Geschichte des Ortes. So bleibt die Überbauung über ihre Formsprache, die spezielle Öffnungsart der Fenster sowie die solide Materialisierung aus Betonfertigelementen, Klinkerplatten und eloxiertem Aluminium vielschichtig mit der industriellen Vergangenheit verknüpft. (mc)

Daten
Bauherrschaft
Realstone SA
Auftragsart
Studienauftrag 2. Rang, Ersatzneubau
Planungsdauer
2017
Nutzungen
Wohnen, Gewerbe
Geschossfläche
13'361 m2
Wohnungen
83 (Baufeld A), 148 (Baufeld C)