Überbauung «Areal Gärbi», Dübendorf

Kategorie
Städtebau
Wohnen
Mixed Use
1. Rang
Ort
Dübendorf
Auftragsart
Studienauftrag 1. Rang
Jahr
2024—
Status
Wettbewerb
Zukünftiges
Transformator mit Bodenhaftung
Ein neuer Stadtbaustein mit Wohnturm und intensivem Boden- wie Grünraumbezug zeigt sich je nach Lage als Protagonist oder Hintergrundrauschen in der sich wandelnden Stadtlandschaft.

Östlich des boomenden Hochbord-Quartiers im Scharnier zum ruhigen Wohngebiet liegt eine 5‘800m2-Brache. Sie soll in einen hochwertigen Stadtbaustein mit hohem Wohnanteil überführt werden, der zugleich die Identität sowie den für das Quartier wichtigen Grünraum an der Glatt stärkt. Städtebauliche Antwort ist eine L-förmige Gebäudeanlage, aus deren Winkel ein Wohnturm ragt. Er nutzt die Verdichtung in die Höhe, um einen grossen Hof freizuspielen und vielfältige Schwellenräume anzubieten. Ebenso übernimmt die austarierte Gebäudekonfiguration eine Mittlerrolle zwischen den hohen Solitären in der Nachbarschaft und dem angrenzenden Wohngebiet.

 

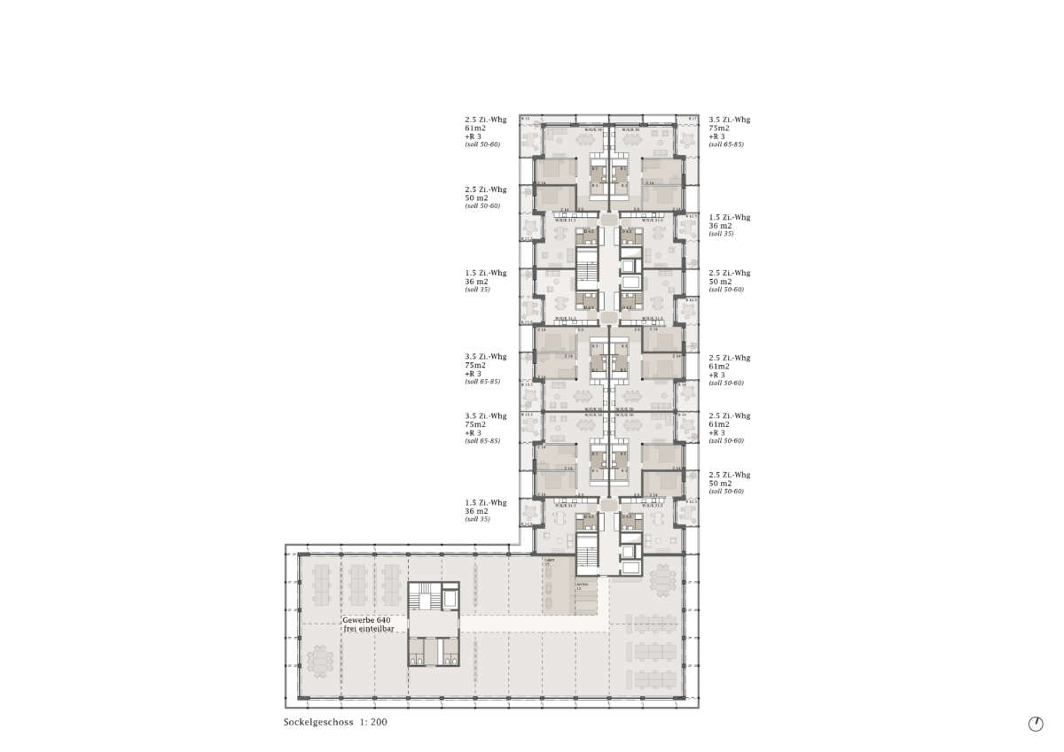
Seine Basis gibt die Haltung zum öffentlichen Raum preis: An der Neugutstrasse verleiht sie als Gewerbefront der Überbauung ein markiges Gesicht. Auf Augenhöhe angesiedelt sind Verkaufsflächen sowie ein einladender Durchstich in den Hof und rückwärtigen Park. Letzterer ergiesst sich bis zur Glatt und setzt mittels massiver Baumbepflanzung der Gebäudemasse einen Kontrapunkt. Im zum Breitibach abgedrehten Schenkel konzentrieren sich kleinteilige Coworking-Einheiten und soziale Einrichtungen. Darüber wird gewohnt. Die oberste Sockeletage zeichnet mit Pergola-artigem Ausdruck den Übergang zum Hochhaus und steht dank Dachterrasse, Bar, Party- und Fitnessraum sowie Waschsalon im Dienst der Gemeinschaft.

 

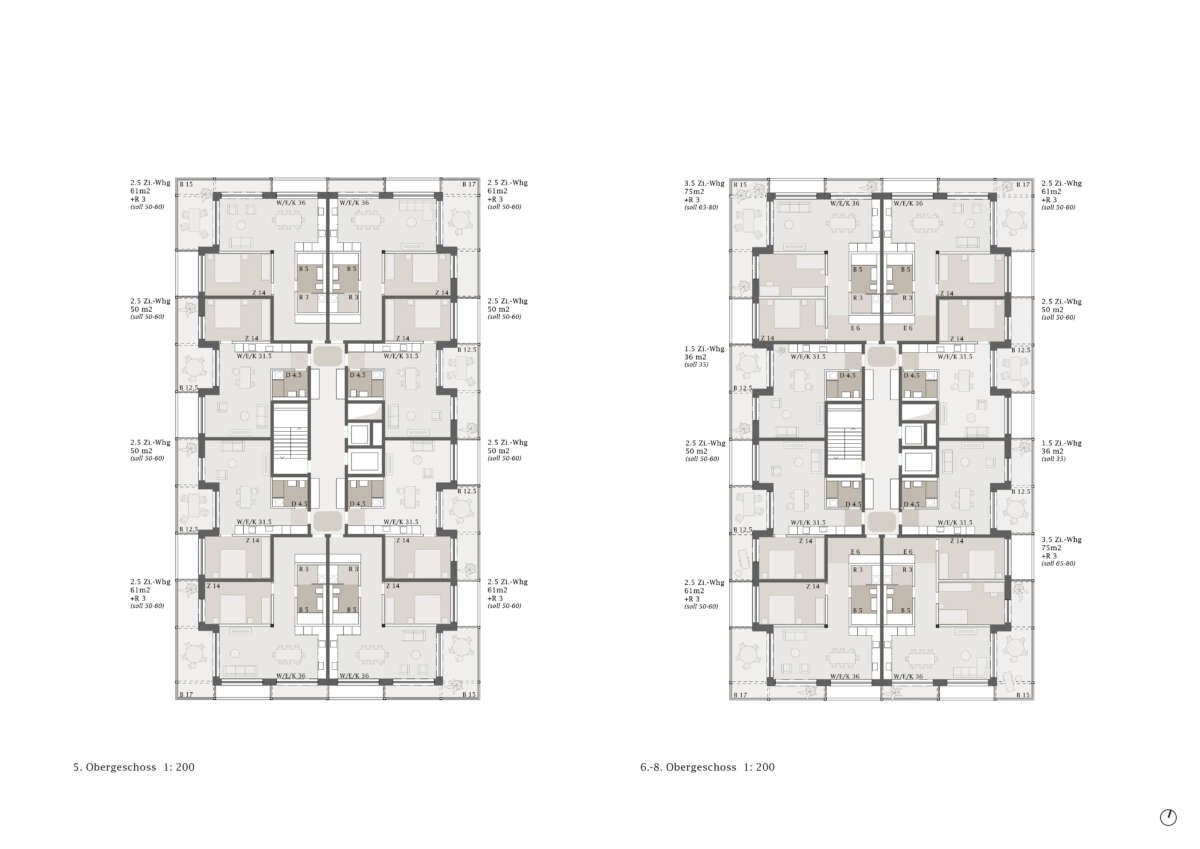
Im 17-geschossigen Wohnturm befinden sich pro Geschoss bis zu acht Wohnungen. Dabei teilen sich je vier Einheiten einen indirekt belichteten Vorbereich. Durch geschickt angeordnete Schaltzimmer lässt sich der Wohnungsmix auch anders adaptieren. Allen Wohnungen gemein ist eine der Fassade vorgelagerte, filigran wirkende Raumstruktur, die eine umlaufende, unterschiedlich tiefe bzw. hohe Balkonschicht ausbildet. Teils mit doppelgeschossigen Lufträumen versehen, befördern diese eine Raumerweiterung ins Aussen, eine optimierte Belichtung sowie als Bilder gerahmte Aussichten. Im Attika bieten in die Wohnungen eingeschriebene, nach oben offenen Atrien ein zusätzliches Wohnerlebnis. (mc)

Daten
Bauherrschaft
Neugut Immobilien und Verwaltungs AG
Auftragsart
Studienauftrag 1. Preis
Planungsdauer
11/2023- (Studienauftrag)
Adresse
Neugutstrasse 58, 8400 Dübendorf
Nutzungen
Wohnen, Gewerbe, Büro, Gemeinschaftsräume, Einstellhalle
Grundstücksfl.
5'774 m2
Geschossfläche
14'860 m2
Bauvolumen
50'620 m3
Wohnungen
120 Mietwohnungen
Landschaft
Böe Studio
7380