«Libellenhof» Areal Dietlimoos-Moos (Baufeld B1), Adliswil

Kategorie
Städtebau
Wohnen
Mixed Use
1. Rang
Ort
Adliswil
Auftragsart
Studienauftrag 1. Rang
Projektierung
Ausführung
Jahr
2015–2022
Status
Gebautes
Kluger Winkelzug
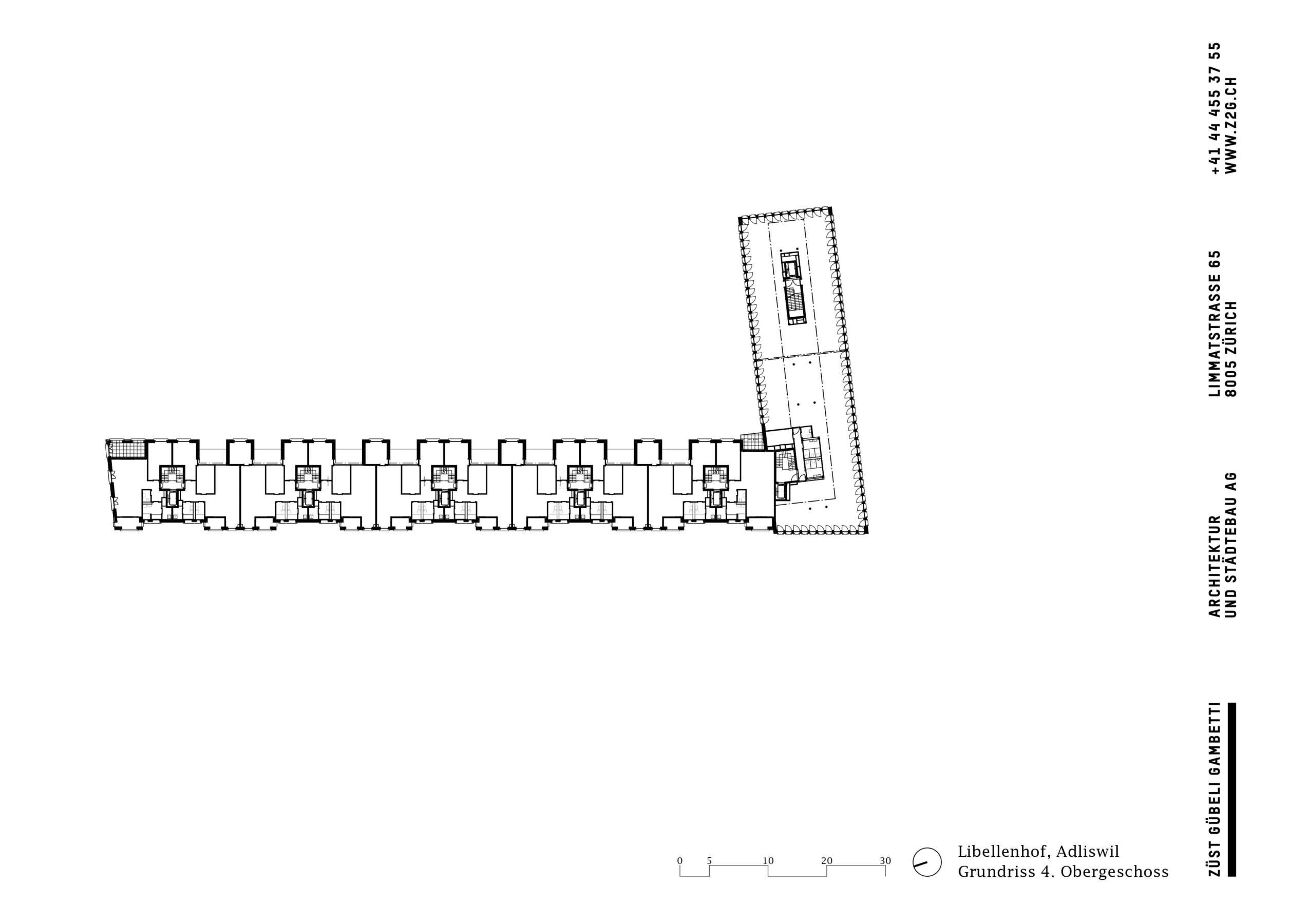
Dietlimoos liegt in Zürichs Vorgarten, wo es wie so oft um Identitätsfragen geht. Ein Winkelbau fungiert als neuer Auftakt und offeriert im Inneren eine aus der Lärmabwehr geborene Vielfalt.

Neue Erschliessungen an der Stadtgrenze sowie ein grosser Bevölkerungszuwachs begünstigten in Adliswil über die Jahre einen wilden Flickenteppich, dessen Teile oft ohne Anker auskommen mussten. Das 5,4-Hektaren-Areal Dietlimoos-Moos liegt im Norden der Gemeinde zwischen Autobahn und Zürichstrasse. Für das von Züst Gübeli Gambetti bearbeitete Baufeld bedeutete dies eine erhebliche Lärmbelastung vor den künftigen Haustüren sowie ein durchgrüntes Wohnquartier im Rücken. Eine Zweiseitigkeit, die den Entwurf prägt.

Dank eines L-förmigen Baus ist städtebaulich der richtige Schritt getan, um dem neuen Quartier ein Gesicht zu verleihen und auf den lang ersehnten Platz einzulenken. Der Gewerbekopf sorgt für ein einprägsames Signet und beschirmte Ladenflächen. Auch der Wohnriegel an der Strasse bildet eine klare Kante aus. Seine Vor- und Rücksprünge sind eine prononcierte Antwort auf den Grüt-Park vis-à-vis und helfen, Massstab wie Schall zu brechen. Rückseits entsteht im Dialog mit der künftigen Nachbarschaft ein grüner Hinterhof, der das Hermetische der Fronten relativiert. Ein öffentlicher Zugang seitens des Platzes und ein interner Gebäudedurchgang laden ein, den Hof zu betreten.

Bei der Gestaltung der Wohnungen hatten Raumerlebnis und Lichteinfall Priorität. Aus der Lärmabwehr geborene Schichtungen, Einlagerungen und Ausstülpungen der Räume ergeben ein regelrechtes szenografisches Zusammenspiel. Sogar eine Art Berliner Zimmer gibt es: Einst ein polyvalentes Raumgelenk mit typischem Eckfenster zum Hof, ist es hier ein Beitrag zur inneren Vielfalt. Das Attika des Gewerbekopfs beherbergt Atriumwohnungen mit fliessenden Raumbezügen, die den Aufgang auf private Dachterrassen erlauben. Trotz Mischnutzung bilden Kopf und Rückgrat ein stimmiges Ganzes, wobei ihre scharfkantige Form mit den streng rhythmisierten Klinkerfassaden korrespondiert. (mc)

 

 

 

–> Baufeld A3: «Froschhof» Areal Dietlimoos-Moos, Adliswil

Daten
Bauherrschaft
Merbag Immobilien Invest AG
Auftragsart
Studienauftrag 1. Rang, Neubau
Planungsdauer
03/2015-07/2022
Fertigstellung
07/2022
Adresse
Zürichstrasse 52-62 / Dietlimoosweg 1, 8134 Adliswil
Nutzungen
Wohnen, Gewerbe, Grossverteiler, Kita, Einstellhalle
Grundstückfläche
6'395m2
Geschossfläche
15'036 m2 o.i. | 9'822 m2 u.i.
Bauvolumen
85'446m3
Wohnungen
56 Mietwohnungen
Gewerbe
ca. 3'400 m2 / ca. 200 Arbeitsplätze
Nachhaltigkeit
Minergie-P / Photovoltaik
Baumanagement
Allreal Generalunternehmung AG
Totalunternehmer
Allreal Generalunternehmung AG
Landschaft
Hager Partner AG
Statik
Thomas Böni Ingenieurbüro GmbH
Bauphysik
Basler & Hofmann AG
Elektro
Bhend Elektroplan GmbH
HLKS
Böni Gebäudetechnik AG
Brandschutz
Conti Swiss AG
Fassade
gkp Fassadentechnik AG
Verkehr
Enz & Partner GmbH
Fotografie
Roger Frei
2740