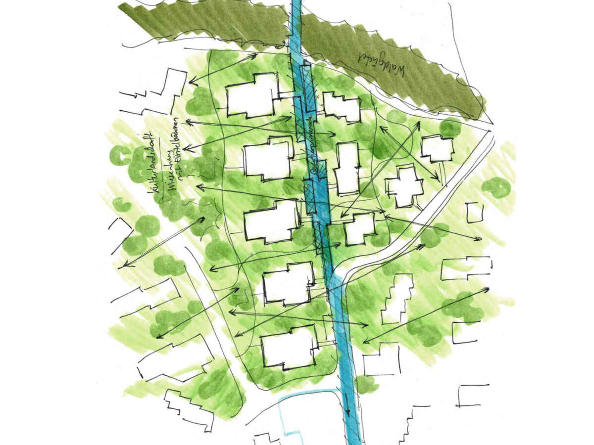
Areal Bernhofstrasse, Adliswil

Kategorie
Städtebau
Wohnen
Ort
Adliswil
Auftragsart
Studienauftrag
Jahr
2020
Status
Wettbewerb