Sinn und Sinnlichkeit – aus dem Boden gestampft

Fokus «Lehm»

Gesundes Raumklima, sinnliches Wohnerlebnis, konsequente Kreislaufwirtschaft und biologische Abbaubarkeit? Was sich anhört wie ein Superbaustoff aus der Zukunft, ist in Tat und Wahrheit seit Jahrtausenden bekannt – Lehm wird als neues altes Baumaterial gerade wiederentdeckt.

Nicht nur, weil in der Wahl des «richtigen» Materials ein wichtiger Beitrag zur Co2-Reduktion liegt. Anders als Beton ist Lehm überall lokal verfügbar und weist eine hervorragende Energiebilanz auf. Dennoch landet er als Aushub auf Deponien. Das Problem: Wie so oft krankt es noch an den Kosten.

Fast weitreichender als die prosaische Frage nach der Ressourceneffizienz dürfte indes auch in der atmosphärischen Dichte von Lehm liegen; in seiner Resonanz mit unserem leiblichen Wohlbefinden. Schliesslich achten immer mehr Menschen nicht nur darauf, wo und unter welchen Umständen ein Material gewonnen wird, sondern auch, was ihnen guttut, was sie «nährt».

Es steckt also viel Potenzial in der Lehmbauthematik, aber auch noch viel Forschungsarbeit. Etwa, was eine bessere Tragfähigkeit oder schnellere Produktionszeit anbelangt. Nicht zuletzt, um so die Kosten zu senken. Das Innosuisse-Flagship-Projekt «Think Earth» hat sich unter der Leitung der ETH zum Ziel gesetzt, die Lehm-Hybridbauweise im Dialog von Forschung und Baupraxis weiterzuentwickeln.

Gemeinsam mit einem mutigen Bauherrn und innovativen Holzbauingenieur sind wir an einem der Teilprojekte beteiligt, um in regelmässigen Workshops neue Lösungen für einen zeitgemässen Lehmbau zu finden. Für die Skalierbarkeit und Breitenwirkung ist es wichtig, dass es auch in der Praxis nicht nur bei prestigeträchtigen Bauikonen und Einfamilienhäusern bleibt.

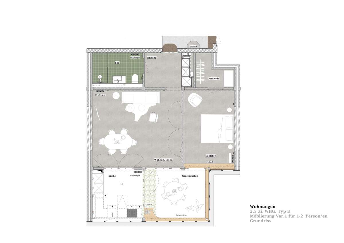
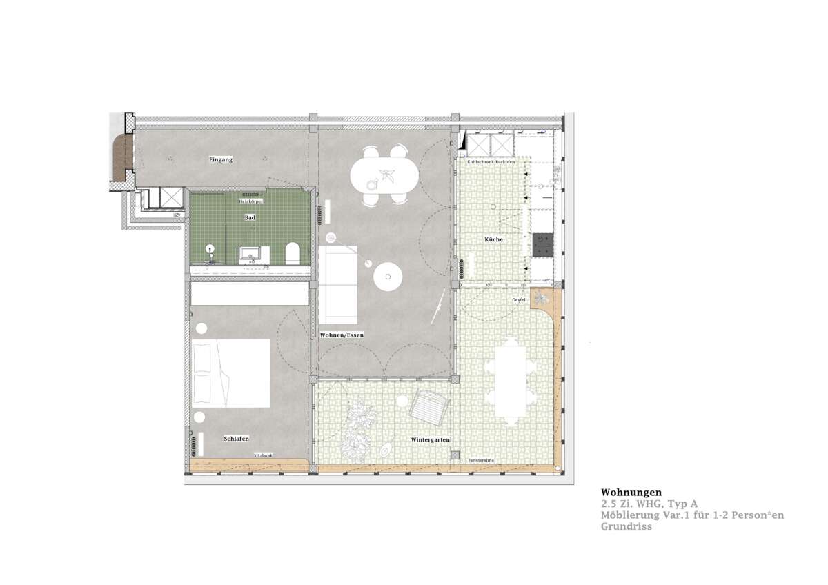
Mit unserem Pilotprojekt für einen mehrgeschossigen Wohnbau mit 23 Einheiten drängt es uns zum gebauten Beweisantritt, dass eine Lehm-Hybridbauweise durchaus auch für einen «normalen» Mietwohnungsbau in einer flughafennahen Gemeinde in Frage kommt – und bezahlbar ist.

Lehm kommt darin gemeinsam mit Holz ausdrucksstark zu Wort. Dabei zeigt sich, wie reizvoll es ist, seinem schöpferischen Potenzial Form zu verleihen: Plötzlich wird sogar die Decke zum eigenen Gestaltungselement. Wände mit ornamentalen Lehmpaneelen verleihen nicht nur Masse, sondern bieten dem Auge gleichsam wie Wandtäfer Struktur und Halt.

Kurzum, Bauen mit Lehm ist inspirierend, das Tüfteln an konstruktiven und sinnlichen Eigenschaften für uns ein spannender Lernprozess. Ebenso mögen es wohl die künftigen Bewohner empfinden: Es fühlt sich ein bisschen an, wie draussen spielen – ein Stück unvermittelte Natur an Wänden und Decke! (mc)

 

Projektpartner:

  • Bauherrschaft: SI Specogna Immobilien AG
  • Baumanagement: Baustudio GmbH
  • Holzbau: IHT Ingenieurbüro für Holz + Technik AG

 

Zum Projekt –> Mehrfamilienhaus Schützenhausstrasse, Embrach