Bauen und andere gute Vorsätze

Aus der Rubrik «Nicht gebaut»

 

Anfang Jahr machten die Kollegen von Meier Hug das Rennen: Herzliche Gratulation an dieser Stelle!

 

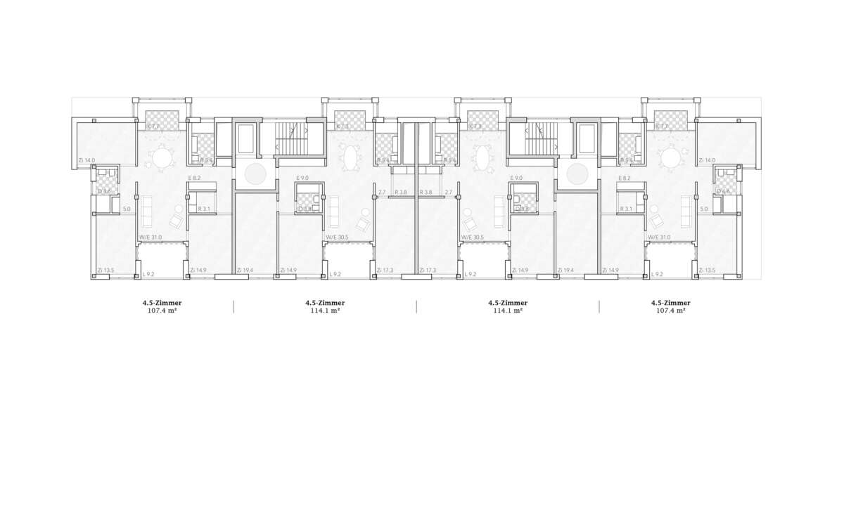
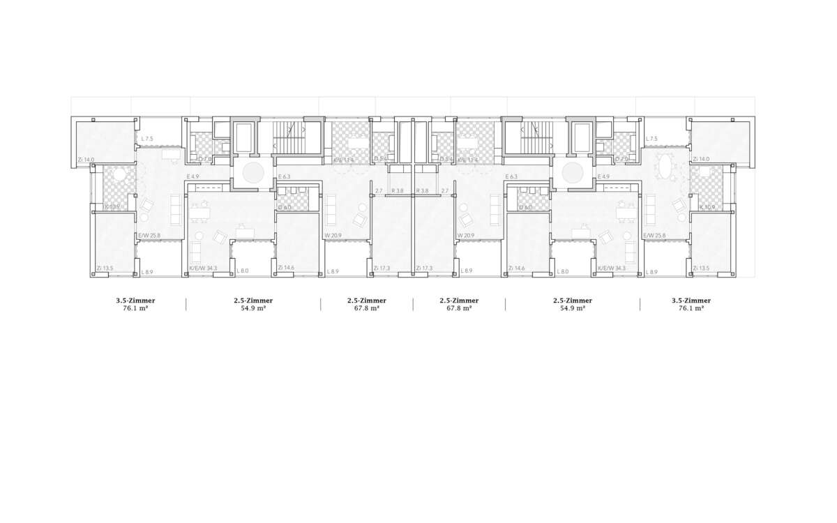
Die Jury schätzt an unserem Beitrag Solaranbeter die «sorgfältige Auseinandersetzung mit der Lärmproblematik und die daraus hervorgehenden Grundrissqualitäten…» Zudem ist es «das einzige Projekt, das einen rechnerisch treibhausfreien Betrieb erreicht». Im Gegenzug erscheinen Materialität, PV-Bänderung und Geschlossenheit in der Fassadengestaltung «etwas Technologie-Affin und wenig ausgereift» (was dem Projekt den städtebaulichen Stecker zieht).

 

Es bleibt es bei der Vision und einem weiteren Eintrag in unserer Rubrik «Nicht gebaut» …